Asunto Oy Turun Herttua
Tervetuloa paikan päälle kokemaan, miltä elämä uudella asuinalueella tuntuu!
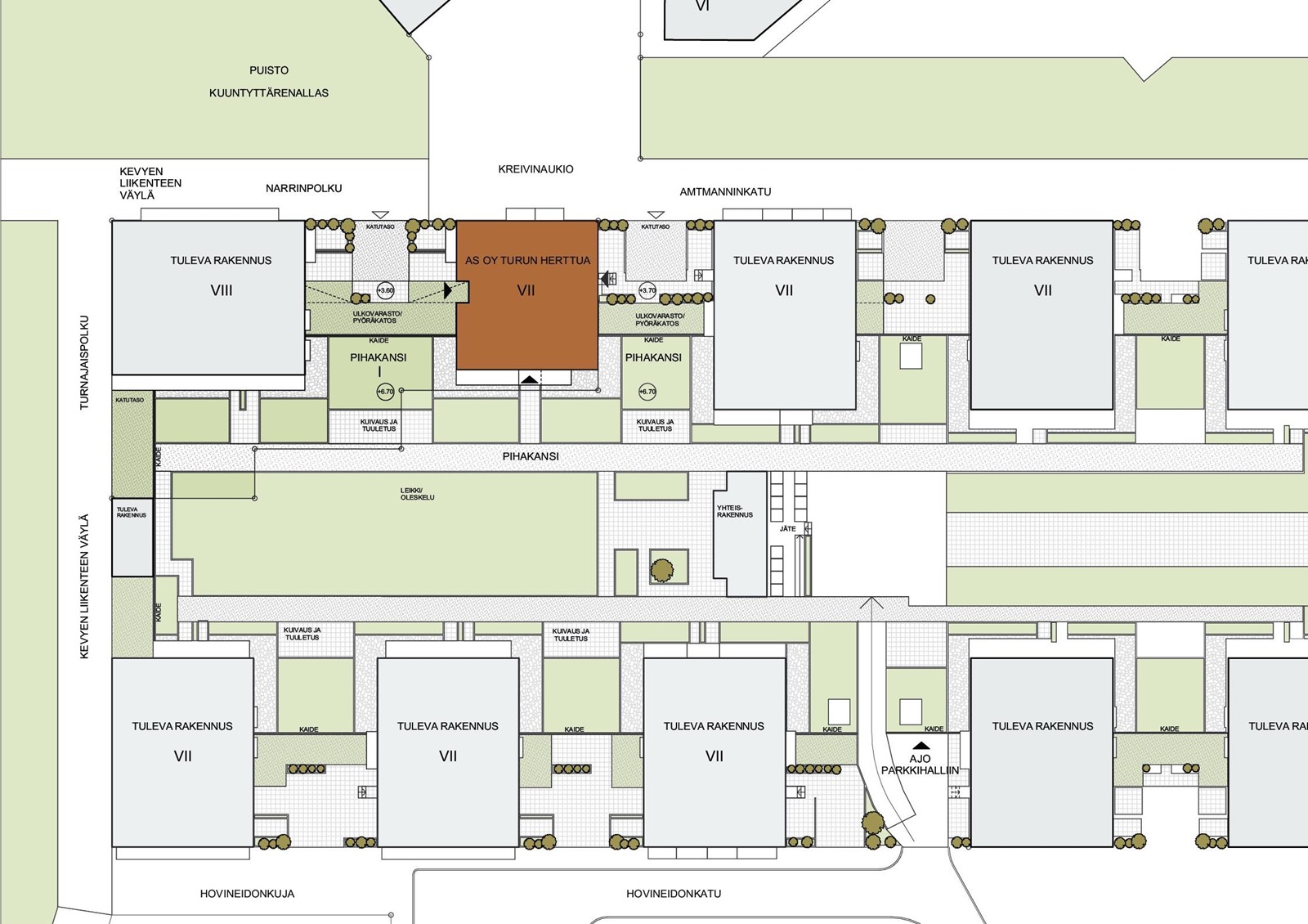
Asunto Oy Turun Herttua on seitsemän kerroksinen kotitalo. Hyvien kulkuyhteyksien päässä niin keskustasta kuin yliopistoltakin on tarjolla vielä muutama koti. Tyylikäs tiiliverhoiltu talon on valmistunut lokakuussa 2023.
Herttuan vankan julkisivun sisältä löytyvät hyvin varustellut kodit, joissa on kaikki kohdallaan viihtyisää elämistä varten. Kaikkiin asuntoihin avaruutta ja valoa tuovat joko ranskalaiset tai avarammat parvekkeet, joista pihan puoleiset on lasitettu. Osassa ylimpien kerroksien asunnoista saadaan nauttia joko Turun linnan näkymistä tai merimaisemasta.
Tulevan Linnakorttelin rakennuksista on Herttua valmistumisjärjestyksessä kolmas ja seuraavatkin yhtiöt ovat jo pitkällä Kahdessa ensimmäisesä yhtiössä asutaan jo.Korttelin suojatulla sisäpihalla sijaitsee mukava ja monikäyttöinen pihatalo, joka on yhteiskäytössä. Pihatalossa on kahden saunan lisäksi kotoisa kerhotila, jossa on mahdollista järjestää vaikka perhejuhlia. Pihan suojaisalla leikkialueella ja monitoimikentällä on turvallista temmeltää tai vaikkapa grillailla kesäiltoina. Pihakannen alta löytyy parkkialue autoille ja runsaat istutukset talojen väleissä sekä viereiset puistoalueet lisäävät viihtyisyyttä.
Asunto Oy Turun Herttua sijaitsee valinnaisella vuokratontilla. Huoneistokohtainen osuus vuokranantajan omistaman tontin määräosan lunastushinnasta ei sisälly huoneiston velattomaan hintaan.
Turun sataman alue kehittyy tulevina vuosina upeaksi uudeksi merelliseksi kaupunginosaksi, Linnakaupungiksi. Kaunis Kuuntyttären altaan pihakatualue on juuri valmistunut. Turun sataman uusien ja kehittyvien kortteleiden tyylit ja toiminnot sekoittuvat yhdeksi suureksi kokonaisuudeksi, vaikka jokaisella alueen korttelilla säilyy oma identiteettinsä.
Hanki nyt oma, uusi kotisi Linnakorttelin Asunto Oy Turun Herttuasta! Vielä ehdit!
Saapumisohje: Ajo on Tukholmankadun puolelta, vieraspysäköinti löytyy pihakannelta.
Herttuan asiantuntijatiimi käytössäsi:
Jukka Hairisto jukka.hairisto@op.fi puh. 050 331 6181 Pasi Pitkänen pasi.pitkanen@op.fi puh. 0500 522 229
Pyydä lisätietoja
Lähettämällä viestin hyväksyt palvelun ehdot.
Vapaat asunnot
Kohteen tiedot
Taloyhtiö
- Taloyhtiön nimi
- Asunto Oy Turun Herttua
- Katuosoite
- Hovineidonkatu 9, Herttuankulma, Turku
- Isännöitsijä
- Asuntopehtoori Isännöinti Oy Tuureporinkatu 6, Turku Markus Kaukovalta p. 050 536 7185
- Asuinhuoneistoja
- 37
- Taloyhtiössä on
- Urheiluvälinevarasto, väestösuoja, lämmin irtaimistovarasto (1 kpl/asunto)
Rakennuksen tiedot
- Rakennusmateriaali
- Betoni. Ulkoseinät betonielementtejä, joissa paikalla muurattu julkisivu.
- Kattotyyppi
- Auma
- Lämmitysjärjestelmä
- Kaukolämpö
- Lämmönjakojärjestelmä
- Lattialämmitys vesi. Pesuhuoneissa ja mahdollisessa saunassa mukavuuslattialämmitys sähköllä (huoneiston sähköstä).
- Ilmanvaihtojärjestelmä
- Koneellinen ilmanvaihto
- Energialuokka
- B 2018
Tontti ja kaavoitus
- Tontin pinta-ala
- 877 m2
- Omistus
- Valinnainen vuokratontti
- Vuokralleantaja
- Ålalandsbanken Tonttirahasto Erikoissijoitusrahast
- Tontin vuokra-aika
- Vuokrasopimus päättyy 08.06.2051
- Kaavoitus
- Asemakaava. Turun kaupunki
Lisätiedot
Autopaikat sijaitsevat talon yhteydessä erillisessä puolilämpimässä autotallissa (myydään erikseen omina osakkeina) Vieraspaikat rakentuvat pihakannelle. Ylimmän kerroksen asunnoissa ilmalämpöpumpulle sähkö- ja reikävaraus. Materiaalit ja laitteet voivat muuttua rakennusaikana tavarantoimittajasta johtuen. Tällöin muutos korvataan vastaavalla tuotteella. Asunto Oy Turun Herttuan hallitsema tontti on valinnainen vuokratontti, kiinteistötunnus 853-61-20-4.
Sijainti
Kuvat



































Kohdetta välittää
Turku OP Koti Varsinais-Suomi Oy LKV Brahenkatu 11 G, TURKU
010 2569 118 Katso puheluhinnat
opkoti.varsinais-suomi@op.fi
Huomaathan, että OP Kodin kohdeilmoituksessa ei ole kaikkia tietoja kohteesta.
Varmista tiedot kohteen virallisesta myyntiesitteestä.