Asunto Oy Jyväskylän Lahjaniitty
Ennakkomarkkinoinnissa arkkitehti Jari Haapalahden suunnittelemia tyylikkäitä rivi- ja paritalokoteja Samulinniemen uudelle Samulinniityn alueelle, Päijänteen rannan tuntumaan!
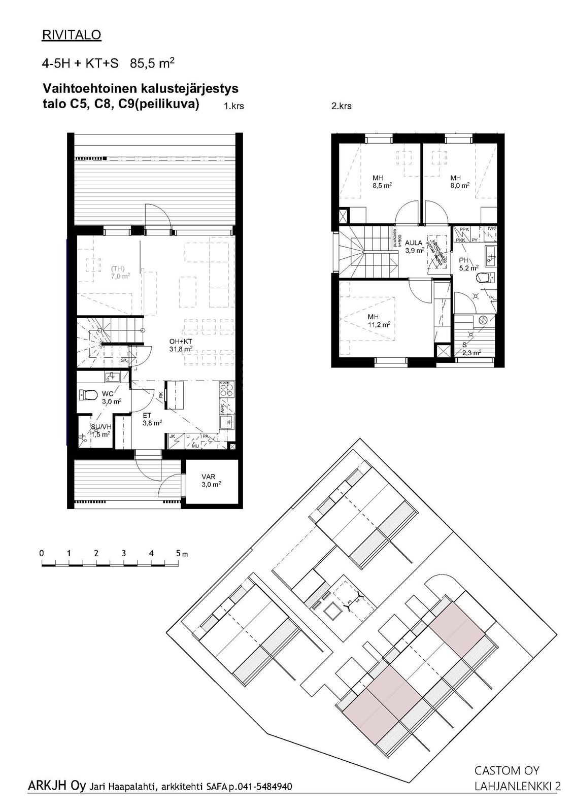
Asunto Oy Jyväskylän Lahjaniittyyn valmistuu yhteensä 9 pari- ja rivitaloasuntoa. Kaksitasoisten asuntojen pohjaratkaisut on suunniteltu selkeiksi ja toimiviksi. Kaikissa asunnoissa on mm. kodinhoitotila ja wc:t molemmissa kerroksissa. Asuntojen pihat suuntautuvat etelään ja kaakkoon, joten valoa riittää runsaasti. Valoa ja avaruutta luovat myös olohuoneen isot ikkunat sekä normaalia korkeampi huonekorkeus.
Lahjaniityn kodit tarjoavat monipuolisesti vaihtoehtoja muokata pohjaratkaisua vastaamaan juuri sinun tarpeitasi. Esimerkiksi A- ja B-talon asunnot ovat saatavissa joko neljän tai viiden huoneen pohjaratkaisulla. Kaikissa asunnoissa on lisäksi käyttöullakkovaraus. Jokaisella asunnolla on oma piha ja tilava terassi. Materiaalivaihtoehdot on valittu huolellisesti. Tarjolla on useita valmiiksi mietittyjä sisustuskokonaisuuksia, jotka pitävät sisällään tyylikkäitä lattia- ja laattavaihtoehtoja, joihin pääset vaikuttamaan rakentamisajan puitteissa sisustusarkkitehdin avustuksella.
Taloyhtiö on suunniteltu ekologisuus, energiatehokkuus ja vastuullisuus huomioiden. Lahjaniityn rakennukset on suunniteltu ekologisesti puurakenteisina ja energiatehokkaina. Asuntokohtainen aurinkopaneelijärjestelmä tuottaa sähköä omaan kulutukseen. Asunnot lämpenevät kaukolämmöllä ja lämmitys jakautuu nykyaikaisesti vesikiertoisella lattialämmityksellä. Taloyhtiö rakentuu Jyväskylän kaupungin vuokratontille, jonka vuokrakulut sisältyvät asunnon hoitovastikkeeseen. Autopaikat myydään erillisinä osakkeina, autokatospaikkoja on yhteensä 10 kpl ja pistokepaikkoja 6 kpl. Paikat varustetaan sähköauton hidaslatausmahdollisuudella.
Samulinniitty sijaitsee noin 5 kilometrin päässä kaupungin keskustasta jonne automatka taittuu alle vartissa. Julkisen liikenteen pysäkki löytyy myös lähistöltä ja melkein kotiovelta pääset astumaan Jyväsjärven rantaa kiertävälle lenkkireitille sekä pienvenesatamaan. Lähialueelta löytyy useampi lähikauppa kävelymatkan päästä. Tämä rauhallinen ja viihtyisä asuinalue on todellakin tutustumisen arvoinen.
Hanke tullaan toteuttamaan RS-kohteena. Asunto Oy Jyväskylän Lahjaniityn arvioitu valmistumisaika on keväällä 2027.
Asuntojen varaaminen on aloitettu, kysy lisätietoja välittäjiltämme!
Pyydä lisätietoja
Lähettämällä viestin hyväksyt palvelun ehdot.
Vapaat asunnot
Kohteen tiedot
Taloyhtiö
- Taloyhtiön nimi
- Asunto Oy Jyväskylän Lahjaniitty
- Katuosoite
- Lahjanlenkki 2, Samulinniemi, Jyväskylä
- Asuinhuoneistoja
- 9
- Taloyhtiössä on
- Urheiluvälinevarasto, kaapeli-TV, tietoliikenneyhteys
Rakennuksen tiedot
- Rakennusmateriaali
- Puu. Talojen perustukset ovat teräsbetonia, perustukset toteutetaan maanvaraisena. Talojen rungot ovat puurakenteisia. Runko valmistetaan suurelementeistä. Alapohja toteutetaan maanvaraisena teräsbetonilla. Välipohjat ovat puurakenteisia.
- Kattotyyppi
- Harja
- Kattomateriaali
- Pelti
- Lämmitysjärjestelmä
- Kaukolämpö. Asuntokohtainen 4 kW aurinkopaneelijärjestelmä.
- Lämmönjakojärjestelmä
- Lattialämmitys vesi
- Ilmanvaihtojärjestelmä
- Huoneistoissa on koneellinen lämmöntalteenotolla varustettu ilmanvaihto.
- Energialuokka
- Ei energiatodistusta
- Lisätietoa energiatodistuksesta
- Uudiskohteella ei ole vielä lain edellyttämää energiatodistusta ja sen vuoksi energialuokka ei ole tiedossa.
Tontti ja kaavoitus
- Omistus
- Vuokrattu
- Vuokralleantaja
- Jyväskylän kaupunki
- Tontin vuokra-aika
- Vuokrasopimus päättyy 2056
- Kaavoitus
- Asemakaava. Jyväskylän kaupunki
Sijainti
Kuvat
















Kohdetta välittää
Jyväskylä OP Koti Sisä-Suomi Oy LKV Kauppakatu 22, JYVÄSKYLÄ
010 256 5950 Katso puheluhinnat
opkoti.keski-suomi@op.fi
Huomaathan, että OP Kodin kohdeilmoituksessa ei ole kaikkia tietoja kohteesta.
Varmista tiedot kohteen virallisesta myyntiesitteestä.