Kalkarintie 19, Kammela, Uusikaupunki
Tilava ja jykevä koti maaseudun rauhassa meren läheisyydessä! Tervetuloa tutustumaan tähän vankkaan, Siporex-rakenteiseen ja tiilivuorattuun omakotitaloon, joka on valmistunut vuonna 1984 ja laajennettu vuonna 2008. Tässä kodissa on tilaa isommallekin perheelle: 5 huonetta, keittiö, kodinhoitohuone, pesuhuone, sauna sekä kaksi wc:tä. Keittiöstä on käynti lasitetulle terassille, jossa voit nauttia vuoden ympäri luonnon rauhasta. Lämmitysmukavuudesta huolehtivat varaava takka, puuliesi sekä ilmalämpöpumppu. Lisäksi mm. erillinen iso autotalli/varastorakennus.
Ota yhteyttä välittäjään
Lähettämällä viestin hyväksyt palvelun ehdot.
Kohteen tiedot
Perustiedot
- Kohdenumero
- 616166
- Kohdetyyppi
- Omakotitalo
- Osoite
- Kalkarintie 19, 23500 UUSIKAUPUNKI
- Omistusmuoto
- Omistus
- Huoneluku
- 5
- Huoneet
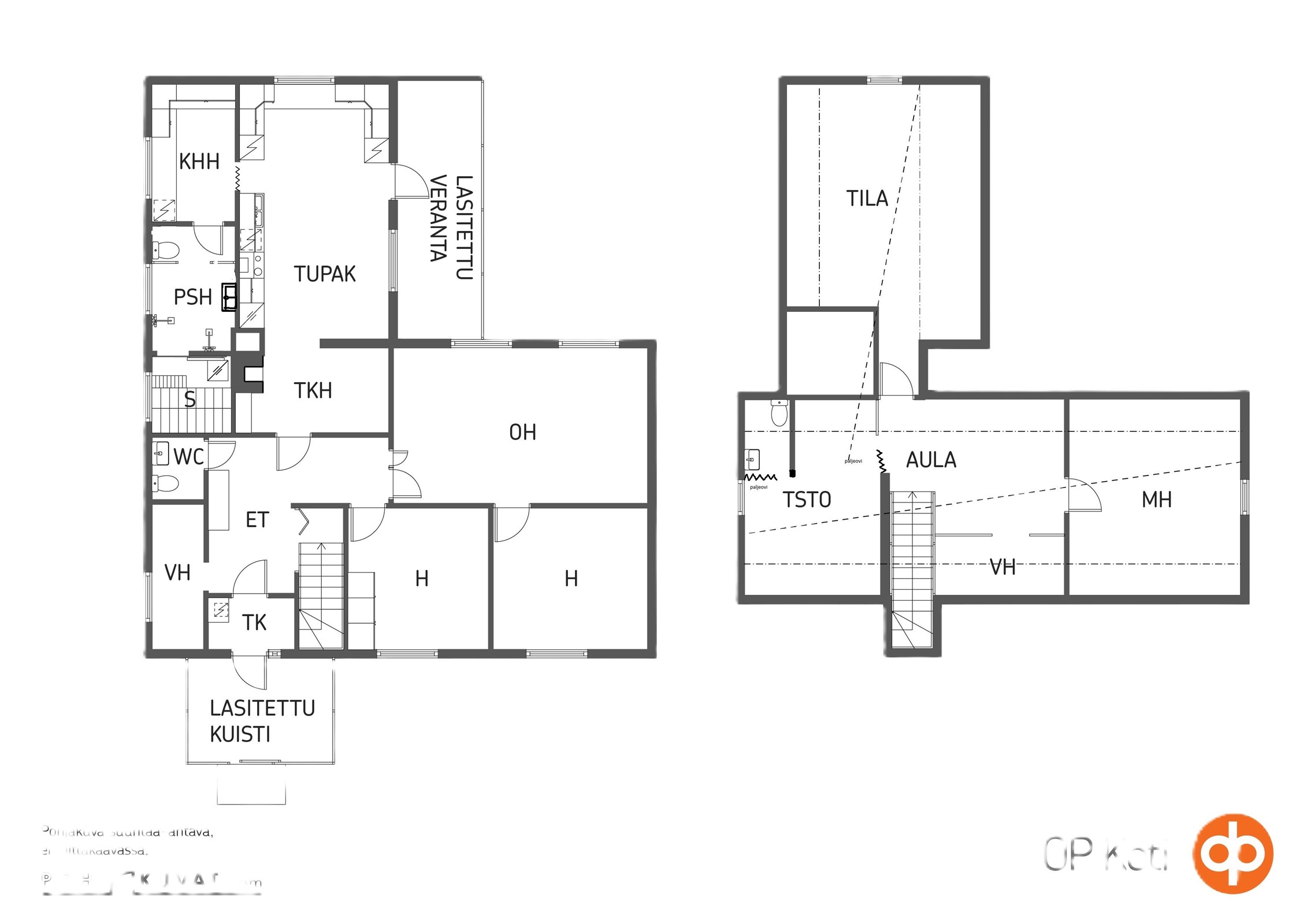
- 5 h, k, khh, ph, s, 3xwc
- Asuinpinta-ala
- 169 m2Pinta-ala tiedot perustuvat rakennuslupapiirustuksiin.
- Kokonaispinta-ala
- 197 m2
- Muu ala
- 28 m2Muita tiloja: tkh, varasto, lasikuisti, lasitettu terassi
- Käyttöönottovuosi
- 1986
- Kerros
- Sauna
- Kyllä
- Vapautuminen
- Sopimuksen mukaan
Hintatiedot
Hinta
- Velaton hinta
- 125 000,00 €
- Myyntihinta
- 125 000,00 €
- Lainaosuus
- 0,00 €
Muut maksut
- Kiinteistövero
- n. 370 €/v
Sähkö: n. 15.000 KWh/v . Vesi ja jätevesi: kulutuksen mukaan. Puhtaanapito: n. 100 €/v. Tiemaksut: n. 40 €/v. Kiinteistövero: n. 370 €/v. . Vuotuinen sähkönkulutus on nykyisillä asukkailla 2 hlö 12 kk:n aikana ollut n. 15.000 KWh sisältäen lämmitys- ja taloussähkön. Sähkön kulutus on suuresti riippuvainen muun muassa lämmityskauden pituudesta ja keskilämpötilasta, asunnon sisälämpötilasta, perheen koosta. kulutustottumuksista sekä sähkölaitteiden kunnosta, iästä ja energiatehokkuudesta.
Osuuspankin lainalaskuri
Lainasi kuukausierä olisi 527 € kuukaudessa
Varustus
- Keittiö
- Jääkaappi, pakastekaappi, sähköliesi, liesituuletin, astianpesukone, kaapistot, Puuliesi, asennettu 3/2026.
- Pesutilat
- Sauna, puukiuas, kylpyhuone, erillinen wc x2, suihku, peilikaappi, allaskaappi, pesukoneliitäntä khh.
- Säilytystilat
- Vaatehuone, ulkovarasto
Materiaalit
Keittiö: Lattia muovimattoa, seinät tapetoitu. Olohuone: Lattia muovimattoa, seinät tapetoitu. Makuuhuone 1: Lattia muovimattoa, seinät tapetoitu. Makuuhuone 2: Lattia muovimattoa, seinät tapetoitu. Makuuhuone 3: Lattia muovimattoa, seinät tapetoitu (yläkerrassa). Kodinhoitohuone: Lattia muovimattoa, seinät tapetoitu. Sauna: Lattia laatta, seinät paneloitu. Kylpyhuone: Kokonaan laatoitettu. Wc: Lattia muovimattoa, seinät puolipaneli/tapetti. Wc yläkerta: Lattia laminaattia, seinät paneloitu. Yläkerran työhuone: Lattia laminaattia, seinät paneloitu. Yläkerran varastohuone: Lattia muovimattoa, seinät maalattu.
Rakennuksen tiedot
- Rakennusmateriaali
- Siporex
- Kattotyyppi
- Harja
- Kattomateriaali
- Pelti
- Lämmitysjärjestelmä
- Sähkö. Ilmalämpöpumppu, varaava takka, puuliesi.
- Lämmönjakojärjestelmä
- Sähköpatterilämmitys. Sähköpatterit yläkerrassa, alakerrassa kattolämmitys, ei ollut käytössä, alustavat lämmitysjärjestelmät ovat riittävät.
- Ilmanvaihtojärjestelmä
- Koneellinen poisto, 3 kpl tuloilmaventtiiliä, joissa pölysuodatin ja Mobair puhallin, joka sekoittaa tuloilman ja huoneilman ja ohjaa sen katon kattoon, ohjaten lämpimän ilman katosta alaspäin.
- Energialuokka
- D 2018
Tontti ja kaavoitus
- Tontin pinta-ala
- 0,2 ha
- Omistus
- Oma
- Tie perille
- Kyllä
- Kaavoitus
- Yleiskaava, Rakennuslupa 1984. Yleiskaava Uudenkaupungin kaupunki
Vesi ja viemäröinti
- Vesijohto
- Kyllä
- Käyttövesi
- Kaivo, vesiosuuskunta.
- Lisätietoa käyttövedestä
- Rengaskaivo, ilmaista kasteluvettä puutarhaan.
- Viemäri
- Kyllä
- Jätevesihuolto
- Kammelan jätevesiosuuskunta.
Palvelut ja liikenneyhteydet
Palvelut: Pyhämaan kirkonkylä n. 6,5 km, Uusikaupunki n.23 km. Koulut: Kaikki koulut Uusikaupunki n. 23 km. Päiväkoti: n. 7 km (Pyhämaa).
Lisätiedot
Tilava, jykeävä, Siporex rakenteinen, tiilivuorattu talo maaseudun rauhassa, meren läheisyydessä. Keittiöstä käynti lasitetulle terassille. Varaava takka ja ilmalämpöpumppu.
Asuntolaina –
Avain unelmiesi kotiin
Tutustu OP:n asuntolainaanHanki kotisi
kokoinen vakuutus
Tutustu Pohjola KotivakuutukseenPohja

Kuvat









































Sijainti
Kohdetta välittää
Uusikaupunki OP Koti Varsinais-Suomi Oy LKV Rantakatu 27, UUSIKAUPUNKI
010 2569 118 Katso puheluhinnat
opkoti.varsinais-suomi@op.fi
Huomaathan, että OP Kodin kohdeilmoituksessa ei ole kaikkia tietoja kohteesta.
Varmista tiedot kohteen virallisesta myyntiesitteestä.