Sepäntie 18 as, Joensuu, Somero
Siisti kaksio vapaana Somerolla!
Vuokrattavana siisti kaksio, ylin 3. krs. Vuokra 450 e/kk+vesi+sähkö, valokuitumaksu, autosähköpistokemaksu. Vuokravakuus 900 e. Ei tupakointia sisätiloissa, lemmikkieläimistä sovittava erikseen. Luottotiedot tarkistetaan. Kotivakuutus vastuuosalla otettava. Kirjalliset vuokrahakemukset; tee sähköinen vuokrahakemus OP Koti verkkosivuston kautta!
Hae tätä asuntoa
Ota yhteyttä välittäjään
Lähettämällä viestin hyväksyt palvelun ehdot.
Kohteen tiedot
Perustiedot
- Kohdenumero
- 613891
- Kohdetyyppi
- Kerrostalo
- Osoite
- Sepäntie 18 as, 31400 SOMERO
- Omistusmuoto
- Vuokra
- Huoneluku
- 2
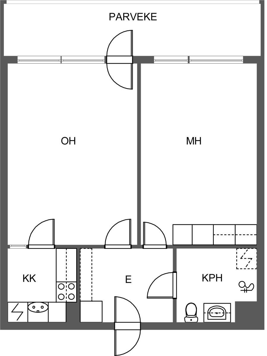
- Huoneet
- 2h, kk, wc/ph, et
- Asuinpinta-ala
- 48 m2
- Kokonaispinta-ala
- 48 m2
- Käyttöönottovuosi
- 1975
- Yleiskunto
- Hyvä
- Kerros
- 3/3
- Hissi
- Ei
- Sauna
- Ei
- Parveke
- On, lasitettu
- Parvekkeen kuvaus
- Iso lasitettu ja remontoitu parveke länsisuuntaan, josta näkymät Kirkkojärvelle.
- Ikkunat ja näköalat
- Ikkunat länteen.
- Vapautuminen
- Heti
Hinta ja ehdot
Hinta
- Vuokra
- 450,00 €/kk
- Vuokravakuus
- 900,00 €
- Vuokra-aika
- Toistaiseksi, irtisanomisajan alkamiskohta aikaisintaan 11 kk vuokrasuhteen alusta.
- Lisätietoa vuokra-ajasta
- Mikäli irtisanoo ennen 11 kk niin sopimussakko 1,5 kk:n vuokra
- Erityisehdot
- Ei tupakointia, luottotietotarkistus,Kotivakuutus vastuuosalla, lemmikieläimet sallittu: sopimuksen mukaan
- Vuokrataan kalustettuna
- Ei
Muut maksut
Sähkö Vuokralainen tekee oman sähkön laskutussopimuksen. Vesi Vesiennakko 30 e/hlö/kk+kulutus. Saunamaksu, autopaikkamaksu.
Osuuspankin lainalaskuri
Lainasi kuukausierä olisi 63 € kuukaudessa
Varustus
- Keittiö
- Jääkaappi, sähköliesi, kiinteät valaisimet.
- Pesutilat
- Kylpyhuone /Wc, suihku, peilikaappi, pesukoneliitäntä, kiinteät valaisimet.
- Säilytystilat
- Kaapistot, häkkivarasto
Materiaalit
Olohuone ja makuuhuone: tapetti, vinyylilankku. Eteinen: seinät maalattu, vinyylilankku. Kylpyhuone: laatoitettu; remontoitu.
Rakennuksen tiedot
- Rakennusmateriaali
- Betoni
- Energialuokka
- D 2018
Tehdyt korjaukset
Suoritetut perusparannus- ja huomattavat korjaustyöt ja valmistumisvuodet Huopakatto uusittu 1992. Käyttövesiputkisto uusittu 2000. Salaojat rakennettu 2008. Jätekatoksen rakentaminen 2011. Ilmanvaihtokanavien puhdistus 2015. Lämmitysjärjestelmän lämmönvaihdin uusittu 2016. Vesivahingon korjaaminen (as. 2, 7, 13, 14, 15, 20, 21, 22) 2018. Taloyhtiön kylmiön muuttaminen varastotilaksi 2018. Lounea valokuituliittymä 2020. Alakerran aulan lattian korjaaminen vesivahingon vuoksi 2021. Julkisivun kuntokartoitus 2021. Kattoremontti 2022. As. 17 viemäripainuman korjaus 2024. As. 6 kosteusvaurio korjaus 2024. Pihavalaisimen vaihto ja hämäräkytklrnen uusiminen 2024. Kunnossapitotarveselvitys: Elementtisaumojen kittaus ja parveketaustaseinien ja parvekkeiden saneeraus.Julkisivuremontti 2025. Märkätilojen kosteuskartoitukset tarvittaessa. Lämmitysjärjestelmän tasapainotus ja perussäätö tarvittaessa. Suunnitellaan ilmanvaihdon nuohousta 2025. Sähkötekninen huolto tarvittaessa. Palovaroittimien hankkiminen ja asentaminen yhtiön toimesta lakivelvoitteen mukaisesti 2025.
Palvelut ja liikenneyhteydet
Palvelut: Someron keskustan monipuoliset palvelut kuten kaupat, uimahalli, kirjasto jne. n. 0,5 -1 km. Koulut: Alakoulu kävellen n. 1,5 km. Yläkoulu ja lukio n. 0,3 km. Päiväkoti: Kaksi päiväkotia n. 1,5 km. Avoin päiväkoti naapuritalossa. Pääkaupunkiseudulle reilussa tunnissa! Hki n. 105 km, Tku n. 90 km, Salo n. 40 km, Forssa n. 30 km, Tre n. 125 km. Ylläty Somerosta ja katso lisätietoa Someron Maaseutu- ja Kulttuurikaupungista: www.yllättäväsomero.fi sekä linkistä: https://www.facebook.com/pg/VisitSomero/videos/?ref=page_internal Parvekkeelta näkymää Kirkkojärven suuntaan. Liikenneyhteydet: Bussiasemalle n. 600 m
Lisätiedot
Kirjalliset vuokrahakemukset: Tee sähköinen vuokrahakemus OP Koti verkkosivuston kautta! Lemmikit sopimuksen mukaan, ei tupakointia sisätiloissa. Vuokravakuus 2 kk, luottotietojen tarkistus (ei häiriöitä) kotivakuutus vastuuosalla edellytetään.
Joustoa muuttoon ja
remonttiin
Tutustu OP:n joustoluottoonHanki kotisi
kokoinen vakuutus
Tutustu Pohjola KotivakuutukseenPohja

Kuvat














Sijainti
Kohdetta välittää
Somero OP Koti Lounaismaa Oy Joensuuntie 11, SOMERO
+358 10 25 61292 Katso puheluhinnat
opkoti.somero@op.fi
Huomaathan, että OP Kodin kohdeilmoituksessa ei ole kaikkia tietoja kohteesta.
Varmista tiedot kohteen virallisesta myyntiesitteestä.