Hannikaisenkatu 27 B, Keskusta, Jyväskylä
Aallonharjan upeat kaupunkikodit ovat nyt muuttovalmiita!
Aallonharjalla yhdistyvät Jyväskylän keskustan parhaat puolet - palveluiden keskeinen saatavuus sekä luonnon läheisyys. Aallonharjalta pääset vain minuuteissa sataman ja Harjun lenkkipoluille sekä keskustan ja Paviljongin kulttuuri- ja tapahtumatarjonnan ääreen. Julkinen liikenne lähelle ja kauas kulkee lähes kotioveltasi.
Asunto Oy Jyväskylän Aallonharja on 10-kerroksinen, 76 asunnon laadukas kerrostalokokonaisuus tuo näyttävällä julkisivullaan persoonallisuutta Jyväskylän katukuvaan. Aallonharjan on suunnitellut Valtionpalkinnon vuonna 2021 voittanut AOR Arkkitehdit, joka voitti Aallonharjan suunnittelusta järjestetyn Arkkitehtikilpailun.
Taloyhtiön lämmitysmuotona on kaukolämpö vesikiertoisella lattialämmityksellä. Asuntojen ilmanvaihtokoneet ovat lämmöntalteenotolla varustettuja tulo- ja poistoilmakoneita, järjestelmässä on myös viilennys kesähelteillä. Parkkiyhtiössä on tarjolla autotalleja sekä autohallipaikkoja, joita myydään erillisinä osakkeina.
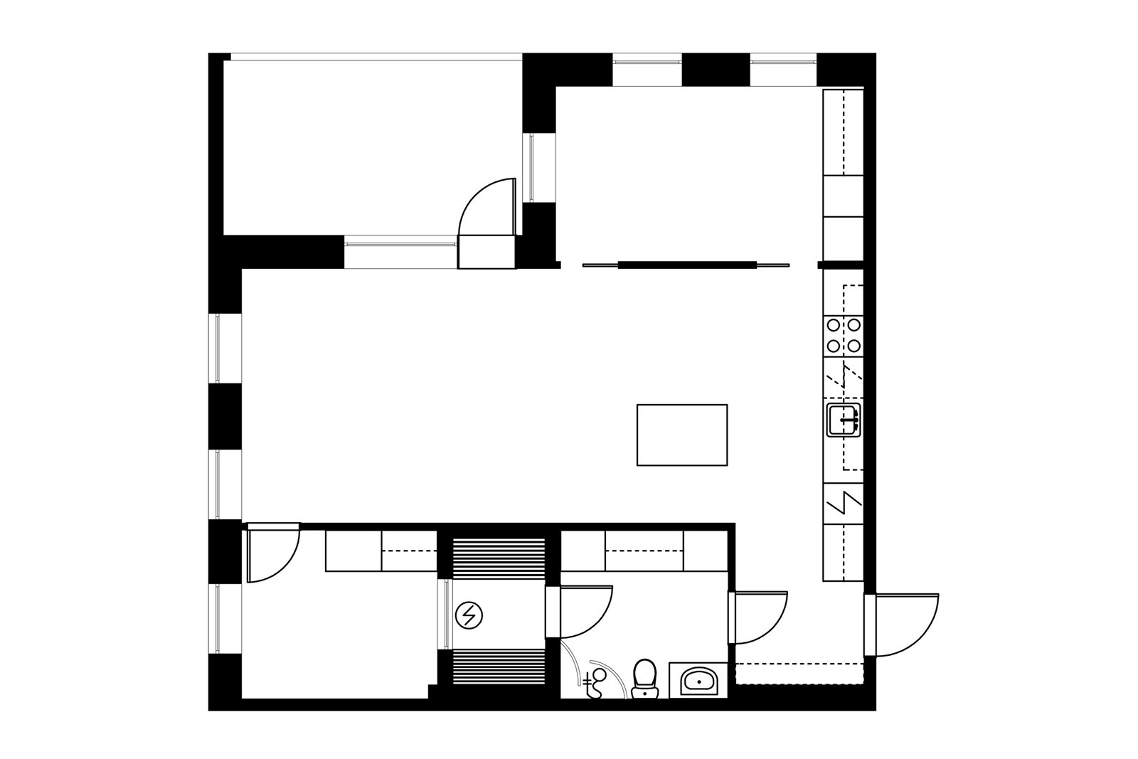
Valokuvat ovat samankokoisesta huoneistosta joka on peilikuva myytävästä asunnosta.
Kysy rohkeasti lisää välittäjiltämme ja sovi oma esittelysi Aallonharjan koteihin.
Ota yhteyttä välittäjään
Lähettämällä viestin hyväksyt palvelun ehdot.
Kohteen tiedot
Perustiedot
- Kohdenumero
- 611248
- Kohdetyyppi
- Kerrostalo
- Osoite
- Hannikaisenkatu 27 B, 40100 JYVÄSKYLÄ
- Omistusmuoto
- Omistus
- Huoneluku
- 3
- Huoneet
- 3h, kt, s
- Asuinpinta-ala
- 64,5 m2
- Kokonaispinta-ala
- 64,5 m2
- Käyttöönottovuosi
- 2025
- Yleiskunto
- Uusi
- Kerros
- 6/10
- Hissi
- Kyllä
- Sauna
- Kyllä
- Parveke
- On, lasitettu
- Vapautuminen
- Sopimuksen mukaan
Hintatiedot
Hinta
- Velaton hinta
- 360 060,00 €
- Myyntihinta
- 149 485,00 €
- Lainaosuus
- 210 575,00 €
- Neliöhinta
- 5 582,33 €/m²
Kohde on yhtiölainoitettu - lainaosuus 210 575,00 €
Taloyhtiölainasta on vastuussa jokainen osakas. Jos lainaa koskevia pääomavastikkeita ei saada joidenkin asuntojen osalta muutoin perittyä, maksuvelvollisuus voi langeta viime kädessä muille osakkaille.
Vastikkeet
- Hoitovastike
- 299,93 €/kk
- Rahoitusvastike
- 1 180,35 €/kk
- Yhtiövastike yhteensä
- 1 480,28 €/kk
Osuuspankin lainalaskuri
Lainasi kuukausierä olisi 1 518 € kuukaudessa
Varustus
- Keittiö
- Jääkaappipakastin, erillisuuni, liesitaso, astianpesukone. Välitilassa laminaattipintainen levy ja LED-nauhavalaisin.
- Pesutilat
- Kylpyhuone, peilikaappi, kaapit Pyykkikaappi, allaskaappi, pesukoneliitäntä, lattialämmitys sähköinen mukavuuslattialämmitys.
- Säilytystilat
- Irtainvarasto
Materiaalit
Kylpyhuone: lattia ja seinät laatoitettu. Asuintilat: seinät maalattu, lattioissa valkolakattu kivikomposiittivinyyli..
Taloyhtiö
- Taloyhtiön nimi
- Asunto Oy Jyväskylän Aallonharja
- Isännöitsijä
- Oiva Isännöinti Noste Oy
- Kiinteistönhuolto
- Huoltoyhtiö
- Asuinhuoneistoja
- 76
- Autopaikat
- Autotalleja tai hallipaikkoja 44 kpl
- Taloyhtiössä on
- Kaapeli-TV, tietoliikenneyhteys
Rakennuksen tiedot
- Rakennusmateriaali
- Betoni. Rakennuksen ulkoseinät ovat pääosin betonielementti seiniä, joiden ulkopinnat ovat osin velkobetonia (1.-6.krs) ja osin värjättyä ja uritettua betonia ulkovärisuunnitelman mukaan.
- Kattotyyppi
- Tasa
- Kattomateriaali
- Muu
- Lämmitysjärjestelmä
- Kaukolämpö
- Lämmönjakojärjestelmä
- Lattialämmitys vesi. Asunnot lämmitetään vesikiertoisella lattialämmityksellä.Asuntojen märkätilat varustetaan sähköisellä lattialämmityksellä, jota säädetään huone/lattiatermostaatilla.
- Ilmanvaihtojärjestelmä
- 1¿2. kerrosten asuntojen ilmanvaihto on keskitetty ja 3¿10. kerrosten asuntojen ilmanvaihto on huoneistokohtainen. Asuntojen ilmanvaihtokoneet ovat vastavirtalämmöntalteenotolla varustettuja tulo- ja poistoilmakoneita. Ilmanvaihtokanavien materiaali on sinkitty teräs. Kanavat ja osat täyttävät sisäilmastoluokitus 2008:ssa esitetyt puhtausluokitellun järjestelmän vaatimukset. Päätelaitteina käytetään puhtausluokiteltuja laitteita. 1¿2. kerrosten asunnoissa liesikuvun tehostusta ohjataan mikrokytkimellä varustetulla liesikuvulla, joka ohjaa tuloilmakanavassa sijaitsevan tehostuspellin aukeamaan saman aikaisesti, ettei asunnon painesuhteet muutu haitallisesti liesikuvun tehostuksen aikana. 3¿10. kerrosten asunnoissa liesikupu ohjaa ilmanvaihtokonetta, jolloin tehostustilanteessa tulo- sekä poistoilmamäärä kasvaa samassa suhteessa.
- Energialuokka
- B 2018
- Lisätietoa energiatodistuksesta
- E-luku: 90
Tontti ja kaavoitus
- Omistus
- Vuokrattu
- Vuokralleantaja
- Asunto Oy Jyväskylän Hannikaisenkatu 27-29
- Kaavoitus
- Asemakaava. Jyväskylän kaupunki
Lisätiedot
5 autotallia sekä 39 autohallipaikkaa myydään erillisinä osakkeina tontilla olevasta parkkihallista.
Asuntolaina –
Avain unelmiesi kotiin
Tutustu OP:n asuntolainaanHanki kotisi
kokoinen vakuutus
Tutustu Pohjola KotivakuutukseenPohja

Kuvat



























Sijainti
Kohdetta välittää
Jyväskylä OP Koti Sisä-Suomi Oy LKV Kauppakatu 22, JYVÄSKYLÄ
010 256 5950 Katso puheluhinnat
opkoti.keski-suomi@op.fi
Huomaathan, että OP Kodin kohdeilmoituksessa ei ole kaikkia tietoja kohteesta.
Varmista tiedot kohteen virallisesta myyntiesitteestä.