Satakunnankatu 13 B, Keskusta, Tampere
Heti vapaana uniikkia ja tyylikästä toimistotilaa Tampereelta vuonna 1912 rakennetusta Koskitalosta.
Koko ylimmän kerroksen kattava toimisto josta ikkunat aukeavat Suomen kansallismaisemiin, teollisen Tampereen sydämeen, Koskipuistoon, Tammerkoskelle, Tampellaan ja Frenckelille on mitä paras yritykselle joka haluaa tiloiltaa jotain uniikkia. Tiloissa on jäähdytys, huoneisto on kattavasti pintaremontoitu ja tunnelma onkin ajanmukainen sekä moderni. Talossa on hissi. Vuokrattavissa viisi autopaikkaa.
Vuokrapyynti 20€/m2 alv 0%. Vuokraan lisätään arvonlisävero. Vuokralainen ottaa oman sähkösopimuksen.
Onko tämä kiinnostava toimitila? Ota yhteyttä välittäjään Väinö Kähkönen, 050 389 6811 tai vaino.kahkonen@op.fi
Ota yhteyttä välittäjään
Lähettämällä viestin hyväksyt palvelun ehdot.
Kohteen tiedot
Perustiedot
- Kohdenumero
- 607969
- Kohdetyyppi
- Toimistotila
- Osoite
- Satakunnankatu 13 B, 33100 TAMPERE
- Huoneluku
- 5
- Huoneet
- 4-5 huonetta, aula, k, wcx2, suihku, neukkari
- Kokonaispinta-ala
- 293 m2
- Vapautuminen
- Heti
Hinta ja ehdot
Hinta
- Vuokra
- 5 860,00 €/kk
Muut maksut
Vuokra on 20€/m2 + alv. Vuokralainen ottaa oman sähkösopimuksen tilaan. Pitkäaikainen vuokrasopimus, korotus: elinkustannusindeksi, vähintään 2 % vuosittain Kolmen kuukauden vuokraa vastaava vakuus
Osuuspankin lainalaskuri
Lainasi kuukausierä olisi 63 € kuukaudessa
Rakennuksen tiedot
- Energialuokka
- Ei energiatodistusta
- Lisätietoa energiatodistuksesta
- Kohteelle ei lain mukaan tarvitse hankkia energiatodistusta
Lisätiedot
Vuokrattavissa viisi autopaikkaa pihasta, 125€/kk alv 0%. Palkkijäähdytys, tilat kattavasti pintaremontoitu kaksi vuotta sitten. huoneiston pinta-alaa ei ole mitattu nykyisin käytettävän huoneisto alan laskemismenetelmän mukaisesti (standardi SFS 5139). Tämän vuoksi huoneiston ilmoitettu pinta-ala saattaa poiketa merkittävästi todellisesta huoneistoalasta
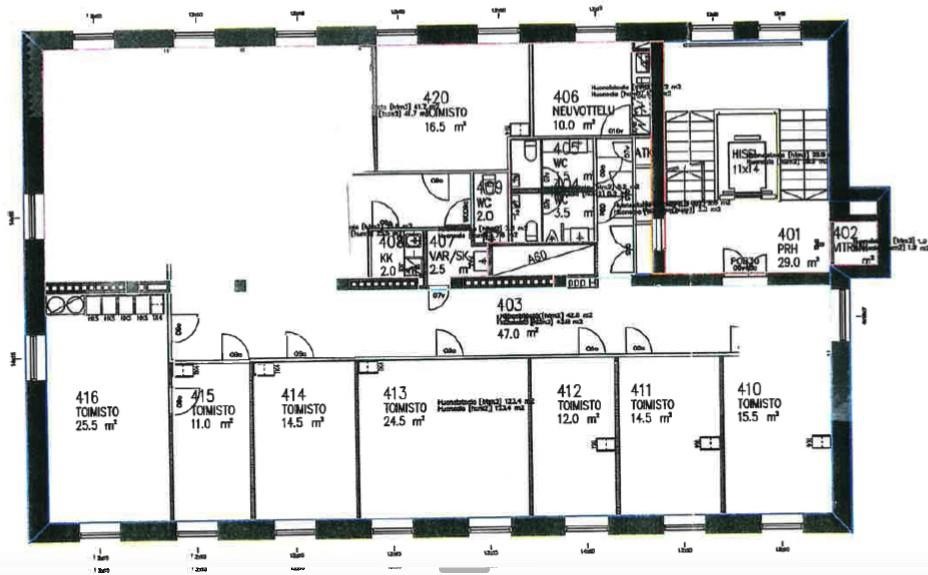
Pohja

Kuvat


























Sijainti
Kohdetta välittää
Tampere OP Koti Sisä-Suomi Oy LKV Hämeenkatu 12, TAMPERE
010 254 6800 Katso puheluhinnat
opkoti.pirkanmaa@op.fi
Huomaathan, että OP Kodin kohdeilmoituksessa ei ole kaikkia tietoja kohteesta.
Varmista tiedot kohteen virallisesta myyntiesitteestä.