Haapatie 9, Kivistönmäki, Mynämäki
Tee tästä talosta unelmiesi koti, jossa on tilaa ja mahdollisuuksia perheellesi!
Tämä tilava talo tarjoaa loistavat puitteet perheelle, joka arvostaa rauhallista ympäristöä ja mahdollisuutta muokata kotia omien mieltymysten mukaan. Päättyvän tien päässä sijaitseva talo takaa oman rauhan, ja lähellä oleva luonto tarjoaa upeat mahdollisuudet ulkoiluun ja rentoutumiseen. Urheilukeskuksen läheisyys on erityisen houkutteleva aktiiviselle perheelle, joka nauttii liikunnasta.
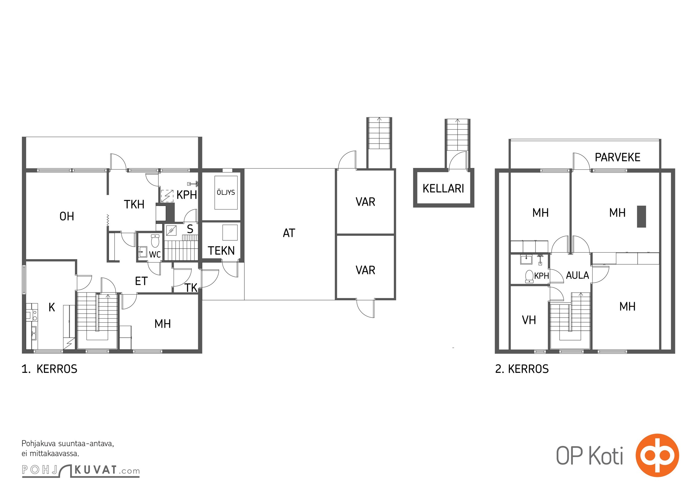
Talon sisätilat käsittävät kuusi huonetta, keittiön, kylpyhuoneen, saunan ja kaksi erillistä wc:tä. Varasto- ja kellaritilat, erillinen autotalli autolle sekä pannuhuone tarjoavat lisätilaa ja käytännöllisyyttä. Parveke tuo lisäarvoa ja mahdollisuuden nauttia kesäaamuista kahvikupin kera.
Pihapiirissä on vielä erillinen kahden auton autotalli, joten autoille on runsaasti pysäköintitilaa!
Asuinalueella on erinomaiset palvelut ja liikenneyhteydet. Läheiset koulut ja päiväkodit tekevät alueesta ihanteellisen lapsiperheille. Päivittäiset ostokset hoituvat kätevästi lähikaupoissa, ja hyvät julkiset kulkuyhteydet takaavat helpon liikkumisen niin Turun kaupungin keskustaan kuin lähialueille. Luonnon läheisyys ja rauhallinen ympäristö tarjoavat asukkailleen viihtyisän ja turvallisen asuinpaikan.
Rakennuksen tekniset ominaisuudet ovat ajan myötä vaatimassa päivitystä, mutta tämä tarjoaa loistavan tilaisuuden tehdä kodista juuri sellainen kuin haluat.
Vuonna 2017 on uusittu peltikatto ja vesiputket, sekä vuonna 2015 asennettu ilmalämpöpumppu. Rakennuksen energialuokka on C, mikä kertoo kohtuullisesta energiatehokkuudesta.
Tervetuloa tutustumaan viehättävään kaksikerroksiseen perhekotiin, joka tarjoaa runsaasti tilaa ja mahdollisuuksia luoda juuri sinun näköisesi asuinympäristö. Älä odota varaa oma esittelyaikasi jo tänään ja tule tutustumaan tähän ainutlaatuiseen kohteeseen!
Ota yhteyttä: Kirsi Kytömaa puh.040 1565 706 kirsi.kytomaa@op.fi
Tarvitsetko apua oman asuntosi myynnissä? Me autamme sinua mielellämme kaikissa kiinteistönvälitykseen liittyvissä asioissa.
Ota yhteyttä välittäjään
Lähettämällä viestin hyväksyt palvelun ehdot.
Kohteen tiedot
Perustiedot
- Kohdenumero
- 605225
- Kohdetyyppi
- Omakotitalo
- Osoite
- Haapatie 9, 23100 MYNÄMÄKI
- Omistusmuoto
- Omistus
- Huoneluku
- 6
- Huoneet
- 6h + k + kph + s + 2xwc + vh + parv + at + 2xauton at
- Asuinpinta-ala
- 119 m2Pinta-alatiedot perustuvat rakennuslupaan 28.03.1978 sekä huoneisto -ja rekisteriotteeseen (epävirallinen)
- Kokonaispinta-ala
- 149 m2
- Muu ala
- 30 m2Muut tilat: pannuhuone + varastot + kellaritilat + autotalli
- Käyttöönottovuosi
- 1978
- Yleiskunto
- Välttävä
- Kerros
- Sauna
- Kyllä
- Vapautuminen
- Sopimuksen mukaan
Hintatiedot
Hinta
- Velaton hinta
- 135 000,00 €
- Myyntihinta
- 135 000,00 €
- Lainaosuus
- 0,00 €
Muut maksut
- Kiinteistövero
- 295€/vuosi
Lämmitys: 1500l/vuosi. Sähkö: taloussähkö 8000 kWh/v. Vesi ja jätevesi: 40€/kk. Puhtaanapito: hinnaston mukaisesti. Kiinteistövero: 295€/vuosi. . Sähkönkulutus on nykyisellä asukkailla (1 henkilöä) 12 kk:n aikana ollut noin 8000 kWh sisältäen taloussähkön. Sähkölasku on vuoden keskimääräinen hinta ollut noin 200 euroa kuukaudessa, sisältäen energiakulutuksen, sähkösiirron sekä verot. Vuotuinen sähkönkulutus on suuresti riippuvainen muun muassa lämmityskauden pituudesta ja keskilämpötilasta, asunnon sisälämpötilasta, perheen koosta, kulutustottumuksista sekä sähkölaitteiden kunnosta, iästä ja energiatehokkuudesta. Jätehuollon kulut oman kulutuksen ja sopimuksen mukaisesti.
Osuuspankin lainalaskuri
Lainasi kuukausierä olisi 569 € kuukaudessa
Varustus
- Keittiö
- Jääkaappi, sähköliesi, liesikupu, liesituuletin, astianpesukone, kaapistot, kiinteät valaisimet.
- Pesutilat
- Sauna: puukiuas. Kylpyhuone: suihku,pesukoneliitäntä,Vesikiertoinen lattialämmitys Erillinen wc: peilikaappi, allaskaappi, kiinteät valaisimet. Yläkerrassa erillinen wc/suihku
Materiaalit
Keittiö: Muovimatto ja seinät maalattu. Olohuone: Parketti ja seinät tapetti. Makuuhuone 1: Kokolattiamatto ja seinät tapettia. Makuuhuone 2: Kokolattiamatto ja seinät tapettia. Makuuhuone 3: Kokolattiamatto ja seinät tapettia. Makuuhuone 4: Muovimatto ja seinät tapettia. Sauna: Laattalattia ja seinät paneloitu. Kylpyhuone: Laattalattia ja seinälaatta. Eteinen: Parketti ja seinät maalattu. Wc: Laattalattia ja seinälaatta/tiiliseinä. Yläkerta wc: Laattalattia ja seinät paneloitu Takkahuone: Parketti/osittainen tiililattia ja tiiliseinä /osittain maalattu.
Rakennuksen tiedot
- Rakennusmateriaali
- Puu. Tiiliverhous/osittainen puuverhous.
- Kattotyyppi
- Harja
- Kattomateriaali
- Pelti
- Lämmitysjärjestelmä
- Öljy. Öljy-puu-yhdistelmäkattila ja sähkö,Öljysäiliön sijainti:Kellarin lattian alla,Öljysäiliö tarkastettu:ei tietoa.
- Lämmönjakojärjestelmä
- Vesikiertoinen patterilämmitys
- Ilmanvaihtojärjestelmä
- Painovoimainen
- Energialuokka
- C 2018
- Lisätietoa energiatodistuksesta
- voimassa 10.07.2035
Tehdyt korjaukset
2017 Peltikatto uusittu, 2017 Vesiputket uusittu 2015 Ilmalämpöpumppu asennettu
Tontti ja kaavoitus
- Tontin pinta-ala
- 0,1 ha
- Omistus
- Oma
- Maasto
- Päättyvän tien päässä, Nurmikkoinen ja rauhallinen sijainti.
- Tie perille
- Kyllä
- Kaavoitus
- Asemakaava (ohjeellinen tonttijako), Rakennuslupa 1979. www.mynämäki.fi www.mynamaki.fi
Vesi ja viemäröinti
- Vesijohto
- Kyllä
- Käyttövesi
- Kunnan.
- Viemäri
- Kyllä
- Jätevesihuolto
- Kunnan.
Asuntolaina –
Avain unelmiesi kotiin
Tutustu OP:n asuntolainaanHanki kotisi
kokoinen vakuutus
Tutustu Pohjola KotivakuutukseenPohja

Kuvat






















































Sijainti
Kohdetta välittää
Mynämäki OP Koti Varsinais-Suomi Oy LKV Keskuskatu 21, MYNÄMÄKI
040 156 5706 Katso puheluhinnat
opkoti.varsinais-suomi@op.fi
Huomaathan, että OP Kodin kohdeilmoituksessa ei ole kaikkia tietoja kohteesta.
Varmista tiedot kohteen virallisesta myyntiesitteestä.