Metsolantie 2 B, Kaleva, Kerava
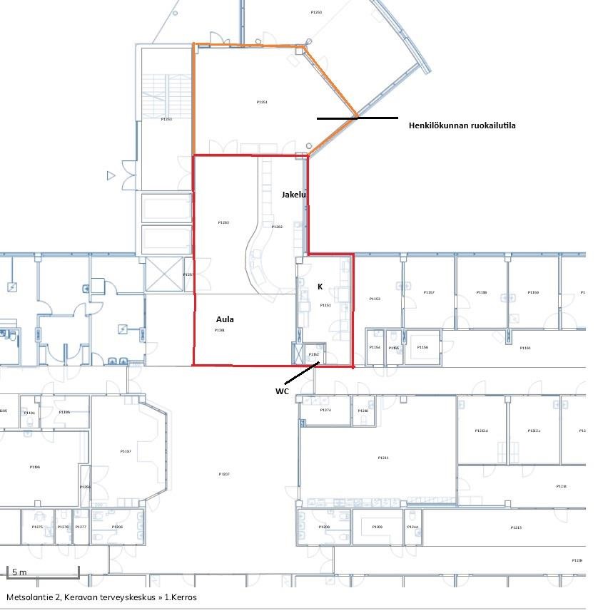
Kahvila - ja lounasravintola yrittäjälle hyvä paikka Keravan Terveyskeskuksen kahvila - kanttiini tila. Vuokrattava tila sisäänkäynti B yhteydessä, jossa laboratorion odotustila. Aulatila palvelee myös kahvilalle osoitettuja asiakaspaikkoja + erillinen henkilökunnan ruokailutila. Kahvilan aukioloaika terveyskeskuksen aukioloaikana arkisin klo 7 - 18:30, sekä viikonloppuisin. Jakelu- palvelukeittiössä olevat koneet ja kalusteet kuuluvat varustukseen: 2x huuva, uuni, jääkaappi, kylmiö, pakastin, liesi ja vesipiste. Rikkinäiset korjataan tai viedään pois.
Jakelu tila sisältäen: vitriini, jakelutiski, lämpökaapit ja muut laitteet ja koneet, jotka siinä on.
Vuokralainen voi myös tuoda omat koneet ja kalusteet.
Keittiössä rasvakanava. IV ja rasvakanava nuohottu vuokranantajan toimesta.
Lisätietoja ja esittelyt: Mika Nyman 0400347758 mika.nyman@op.fi
Kohdetta välittää:
Ota yhteyttä välittäjään
Lähettämällä viestin hyväksyt palvelun ehdot.
Kohteen tiedot
Perustiedot
- Kohdenumero
- 598455
- Kohdetyyppi
- Liiketila
- Osoite
- Metsolantie 2 B, 04200 KERAVA
- Huoneet
- Kahvila ja asiakastila
- Kokonaispinta-ala
- 57 m2
- Vapautuminen
- Heti
Hintatiedot
- Vuokra
- Kysy välittäjältä
- Muut kulut
- Vuokranantaja laskuttaa sähkön, veden ja jätehuolto kustannuksen / sovittava erikseen vuokranantajan kanssa. Vuokralainen vastaa tarvittavista tietoliikenneyhteyksiestä sekä toiminnan edellyttävistä vakuutuksista. Vakuus 3 kk vuokraa vastaava summa.
Vuokranantaja laskuttaa sähkön, veden ja jätehuolto kustannuksen / sovittava erikseen vuokranantajan kanssa. Vuokralainen vastaa tarvittavista tietoliikenneyhteyksiestä sekä toiminnan edellyttävistä vakuutuksista. Vakuus 3 kk vuokraa vastaava summa.
Osuuspankin lainalaskuri
Lainasi kuukausierä olisi 63 € kuukaudessa
Rakennuksen tiedot
- Energialuokka
- C 2018
- Lisätietoa energiatodistuksesta
- Energiatodistuksen voimassaolo 10.11.2033 asti.
Lisätiedot
Vuokrattavana Keravan terveyskeskuksen kahvila tila sisäänkäynti B yhteydessä, jossa laboratorion odotustila. Aulatila palvelee myös kahvilalle osoitettuja asiakaspaikkoja + erillinen henkilökunnan ruokailutila. Kahvilan aukioloaika terveyskeskuksen aukioloaikana arkisin klo 7 - 18:30, sekä viikonloppuisin. Tavarantoimitukset tapahtuvat kellarikerroksen kautta, jossa myös osoitetut pukuhuonetilat. Vuokralaiselle toimitetaan erillinen kulkuoikeus terveyskeskuksen yhteisiin tiloihin. Kahvilan henkilökunnalle on varattu kahvilan läheisyydessä oleva wc tila. Vuokran suuruus on 10 % Keravan terveysaseman varsinaisen kahvilatoiminnan myyntituotoista. Vuokran määrityksessä myyntituottoista voidaan arvonlisäveron lisäksi vähentää ainoastaan luottotappiot. (Esimerkki: Jos kahvila-ravintola-toiminnan myyntituotot ovat 10 000 euroa (ei sisällä arvonlisäveroa), niin vuokran määrä on 1000 euroa/kk + arvonlisävero (0,10 x 10 000 euroa/kk = 1 000 euroa/kk) Vuokralainen on velvollinen toimittamaan Vuokranantajalle kuukausittain raportit Keravan terveysaseman kahvilatoiminnan tuotoista sekä yhteenvetoraportit että raportit, joista ilmenee tuotot tuoteryhmiin jaettuna. Vuokraan lisätään arvonlisävero voimassa olevan verokannan mukaisesti. Sopimuksen allekirjoitushetkellä arvonlisävero on 25,5 prosenttia. Vuokranmaksu alkaa 1.2.2026 ja jatkuu vuokra-ajan loppuun. Vuokra maksetaan kuukausittain jälkilaskelman perusteella vuokrajaksoa seuraavan kuukauden 15. päivään mennessä vuokranantajan osoittamalle tilille vuokranantajan erikseen lähettämään laskua vastaan. Vuokralainen on velvollinen ilmoittamaan vuokranantajalle, mikäli hänen yhteystietonsa muuttuvat. Vuokra tarkastetaan elinkustannusindeksin mukaan vuosittain vuokrasuhteen alkamis ajankohdasta. Vakuus 3 kk arvioitua (1.000€ /kk) vuokraa + alv vastaava summa 3.765 €
Pohja

Kuvat












Sijainti
Kohdetta välittää
Helsinki OP Koti Uusimaa Oy LKV
Arkadiankatu 23, HELSINKI
0400 347 758 Katso puheluhinnat
mika.nyman@op.fi
Huomaathan, että OP Kodin kohdeilmoituksessa ei ole kaikkia tietoja kohteesta.
Varmista tiedot kohteen virallisesta myyntiesitteestä.