Asunto Oy Jyväskylän Norolanraitti 19
Ennakkomarkkinoinnissa uusia viihtyisiä maalämpökoteja Palokan Norolaan!
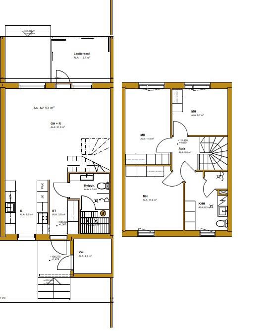
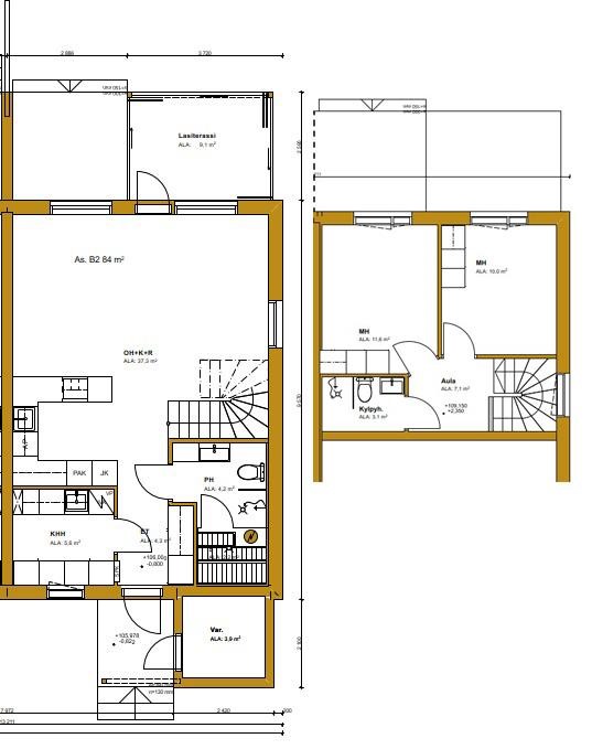
Norolanraitin kodin tarjoavat nykyaikaisia ja toimivia rivitaloasuntoja kahdessa eri kokoluokassa 3h+k+s 84m2 ja 4h+k+s 93m2. Suuremman 93 neliöisen kodin pohjaratkaisuja on kaksi erilaista ja kodit voidaan toteuttaa molemmilla vaihtoehdoilla. Asunnot rakennetaan kahteen kerrokseen, jolloin arjen touhut ja rentoutuminen onnistuu paremmin samanaikaisesti. Molemmista asuinkerroksista löytyy käytännöllisesti oma wc ja pesuhuone. Olohuoneen ja keittiön yhtenäinen tila varustetaan suurilla ikkunoilla, jolloin koti tuntuu entistä väljemmältä ja luonnonvaloa riittää mukavasti. Molemmissa asunnoissa on arkea helpottava kodinhoitohuone. Asuntojen sisäänkäynnin yhteydessä on puolilämmin ulkovarasto ja etelän puoleisella takapihalla osittain katettu ja lasitettu terassialue. Talojen takapihalle jää myös runsaasti nurmialuetta huoneistojen käyttöön ja naapuritalojen välissä on suuret ja vehreät niittyalueet. Erilliset autokatospaikat sijaitsevat erillisellä pysäköintialueella, paikoissa varaus sähköauton latauspistokkeelle. Osakehinta 9.900 euroa.
Omalle tontille rakentuva Asunto Oy Norolanraitti 19 on nykyaikainen kuuden huoneiston taloyhtiö. Lämmitysmuotona on maalämpö. Talotekniikan osalta huoneistoissa on vesikiertoinen lattialämmitys, huoneistokohtaiset ilmanvaihtokoneet lämmöntalteenotolla ja yhtiöön liitetään kaapeli-tv ja valokuitu.
Norolan uusi asuinalue sijaitsee Palokassa Ritopohjan ja Heinälammen asuinalueen läheisyydessä lyhyen matkan päässä Palokan keskustan sekä Seppälän palveluista. Matkaa Jyväskylän keskustaan on noin kuusi kilometriä. Palokan keskustan alueelta löytyy S-market, terveysasema, Jokelan koulu (luokat 1-6.), Palokan yhtenäiskoulu (luokat 1-9.), kirjasto, uimaranta ja urheilukenttä. Perheen pienimmille päiväkotivaihtoehtoja alueella on runsaasti. Liikkujaa odottaa Palokkajärven ja Touruvuoren ulkoilureitit vain parin kilometrin päässä. Vilkas bussireitti kulkee Norolantien risteyksestä.
Arvioitu rakentamisen aikataulu kesä/2026 - kesä/2027. Rakentajana Jyväskyläläinen pitkän linjan toimija Louhinta- ja Rakenne Oy Lehto.
Norolanraitin kodit myy OP Koti. Kysy lisää välittäjiltämme!
Pyydä lisätietoja
Lähettämällä viestin hyväksyt palvelun ehdot.
Vapaat asunnot
Kohteen tiedot
Taloyhtiö
- Taloyhtiön nimi
- Asunto Oy Jyväskylän Norolanraitti 19
- Katuosoite
- Norolanraitti 19, Palokka, Jyväskylä
- Asuinhuoneistoja
- 6
- Autopaikat
- Autokatospaikkoja 6 kpl
- Taloyhtiössä on
- Kaapeli-TV, tietoliikenneyhteys
Rakennuksen tiedot
- Rakennusmateriaali
- Puu
- Kattotyyppi
- Harja
- Kattomateriaali
- Pelti
- Lämmitysjärjestelmä
- Maalämpö
- Lämmönjakojärjestelmä
- Lattialämmitys vesi
- Ilmanvaihtojärjestelmä
- Asuntokohtainen ilmanvaihto lämmöntalteenotolla. Ilmanvaihtokone sijaitsee kodinhoitohuoneessa.
- Energialuokka
- B 2018
- Lisätietoa energiatodistuksesta
- E-luku 96 kWhE/m2 vuosi. Energiatodistus on voimassa 28.2.2034 asti.
Tontti ja kaavoitus
- Tontin pinta-ala
- 2 266 m2
- Omistus
- Oma
- Kaavoitus
- Asemakaava. Jyväskylän kaupunki, kaavoitus
Sijainti
Kuvat











Kohdetta välittää
Jyväskylä OP Koti Sisä-Suomi Oy LKV Kauppakatu 22, JYVÄSKYLÄ
010 256 5950 Katso puheluhinnat
opkoti.keski-suomi@op.fi
Huomaathan, että OP Kodin kohdeilmoituksessa ei ole kaikkia tietoja kohteesta.
Varmista tiedot kohteen virallisesta myyntiesitteestä.