Mesikämmenkatu 1 A, Rautakankare, Lahti
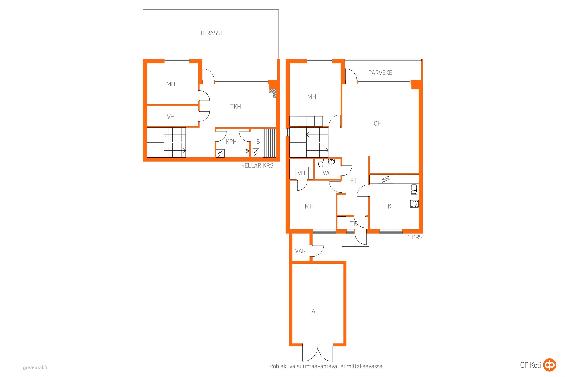
Etsitkö tilavaa ja hyväkuntoista kotia huippusijainnilta? Tämä kahteen tasoon jakautuva rivitalohuoneisto Jalkarannan liikunta- ja ulkoilumahdollisuuksien äärellä hurmaa toimivuudellaan ja kodikkuudellaan! Yläkerran avarasta olohuoneesta avautuu käynti lasitetulle parvekkeelle, täydellinen paikka nauttia kahvit aikaisin keväästä pitkälle syksyyn. Alakerrassa tunnelmallinen takkahuone ja kaunis varaava takka luovat lämpöä ja viihtyisyyttä viileämpiin iltoihin. Takkahuoneesta on suora yhteys suojaisalle, tilavalle terassille ja vehreälle pihalle Oma autotalli kruunaa kokonaisuuden ja ulkoilijan unelmakohteet, kuten Messilän ladut, uimaranta ja lenkkipolut, ovat aivan lähellä! Tämä koti tarjoaa omakotitalomaista asumista ilman suurta pihanhoitourakkaa ja on muuttovalmiina odottamassa uusia asukkaita. Tartu tilaisuuteen ja tule ihastumaan!
Ota yhteyttä välittäjään
Lähettämällä viestin hyväksyt palvelun ehdot.
Kohteen tiedot
Perustiedot
- Kohdenumero
- 616866
- Kohdetyyppi
- Rivitalo
- Osoite
- Mesikämmenkatu 1 A, 15950 LAHTI
- Omistusmuoto
- Omistus
- Huoneluku
- 4
- Huoneet
- 4h, takkah, k, s
- Asuinpinta-ala
- 143,2 m2
- Kokonaispinta-ala
- 143,2 m2
- Käyttöönottovuosi
- 1980
- Yleiskunto
- Hyvä
- Kerros
- 1/-
- Hissi
- Ei
- Sauna
- Kyllä
- Parveke
- On, lasitettu
- Vapautuminen
- Sopimuksen mukaan
Hintatiedot
Hinta
- Velaton hinta
- 199 000,00 €
- Myyntihinta
- 199 000,00 €
- Lainaosuus
- 0,00 €
- Neliöhinta
- 1 389,66 €/m²
Vastikkeet
- Hoitovastike
- 255,00 €/kk
- Yhtiövastike yhteensä
- 255,00 €/kk
Muut maksut
- Vesimaksu
- 20,00 €/kk/henkilö
Joka huoneistossa on myös omat aluelämpömittarit ja laskutus perustuu huoneistokulutukseen. Tässä huoneistossa vuosikulutus on ollut 14,18Mwh eli 2972 €/v
Osuuspankin lainalaskuri
Lainasi kuukausierä olisi 839 € kuukaudessa
Varustus
- Keittiö
- Jääkaappipakastin, keraaminen liesi, liesituuletin, astianpesukone uusittu 2024, kaapistot.
- Pesutilat
- Sauna, sähkökiuas, kylpyhuone, erillinen wc, suihku, peilikaappi, pesukoneliitäntä, lattialämmitys sähköinen.
- Säilytystilat
- Vaatehuone
Materiaalit
Keittiö: laminaattilattia. Olohuone: parkettilattia, seinät tapetti. Makuuhuone 1: parkettilattia, seinät tapetti. Makuuhuone 2: parkettilattia, seinät tapetti. Makuuhuone 3: parkettilattia, seinät tapetti. Kylpyhuone: laatoitettu.
Taloyhtiö
- Taloyhtiön nimi
- Asunto Oy Mesimajat
- Isännöitsijä
- Isännöintitoimisto Talopro Oy Teemu Paakkanen 0500355323
- Kiinteistönhuolto
- Osakkaat
- Asuinhuoneistoja
- 3
- Taloyhtiössä on
- Kaapeli-TV
Rakennuksen tiedot
- Rakennusmateriaali
- Muu
- Kattotyyppi
- Auma
- Kattomateriaali
- Huopa
- Lämmitysjärjestelmä
- Muu
- Lämmönjakojärjestelmä
- Vesikiertoinen patterilämmitys
- Ilmanvaihtojärjestelmä
- Koneellinen poisto
- Energialuokka
- D 2018
- Lisätietoa energiatodistuksesta
- Energiatodistus vanhenee 27.09.2034.
Tehdyt korjaukset
Palovaroittimien asennus ja niiden kunnossapitovastuu siirretty taloyhtiölle.Kaavoitettu omalle tontille lisärakentamisiokeutta. Patteritermostaattien ja -venttiilien uusiminen tarvittavilta osin. 2023 Parvekekaidelaseja uusittiin huoneistossa C 2018 Kurtturuusuaidan poisto 2016 Lukitusten uusiminen, Abloy Sento 2009 Pihan salaojien sadevesikaivojen ja pihalaatoitusten asennus sisäänkäyntien puoleiselle sivulle. Autotallien lattioiden uusinta pohjarakenteita myöten ja sisäkaton uusinta. 2000 Katon huopakate uusittu. Asunnon remontit: Alakerran takka on asennettu 2012. Keittiö, kylpyhuone sekä sauna on uusittu 2014
Tontti ja kaavoitus
- Tontin pinta-ala
- 1 995 m2
- Omistus
- Oma
- Kaavoitus
- Asemakaava. Lahden kaupunki
Palvelut ja liikenneyhteydet
Palvelut: S-market noin 2 km Monitoimitalo Jalo noin 2 km Messilän Camping noin 2 km Lahden keskustaan noin 6 km. Koulut: Jalkarannan koulu noin 2 km. Päiväkoti: Jalkarannan koulun yhteydessä. Liikenneyhteydet: Bussipysäkki noin 50 m (8R linja)
Asuntolaina –
Avain unelmiesi kotiin
Tutustu OP:n asuntolainaanHanki kotisi
kokoinen vakuutus
Tutustu Pohjola KotivakuutukseenPohja

Kuvat

















Sijainti
Kohdetta välittää
Lahti OP Koti Häme-Kaakko Oy LKV Aleksanterinkatu 20, LAHTI
010 256 7700 Katso puheluhinnat
opkoti.paijathame@op.fi
Huomaathan, että OP Kodin kohdeilmoituksessa ei ole kaikkia tietoja kohteesta.
Varmista tiedot kohteen virallisesta myyntiesitteestä.