Häröntie 8, Toejoki, Pori
Tervetuloa tutustumaan tähän omakotitaloon, joka sijaitsee halutulla Toejoen asuinalueella. Tämä koti tarjoaa erinomaiset puitteet lapsiperheen arkeen, sillä kaikki tärkeä on lähellä: koulut, päiväkoti, urheilukenttä sekä Puuvillan palvelut.
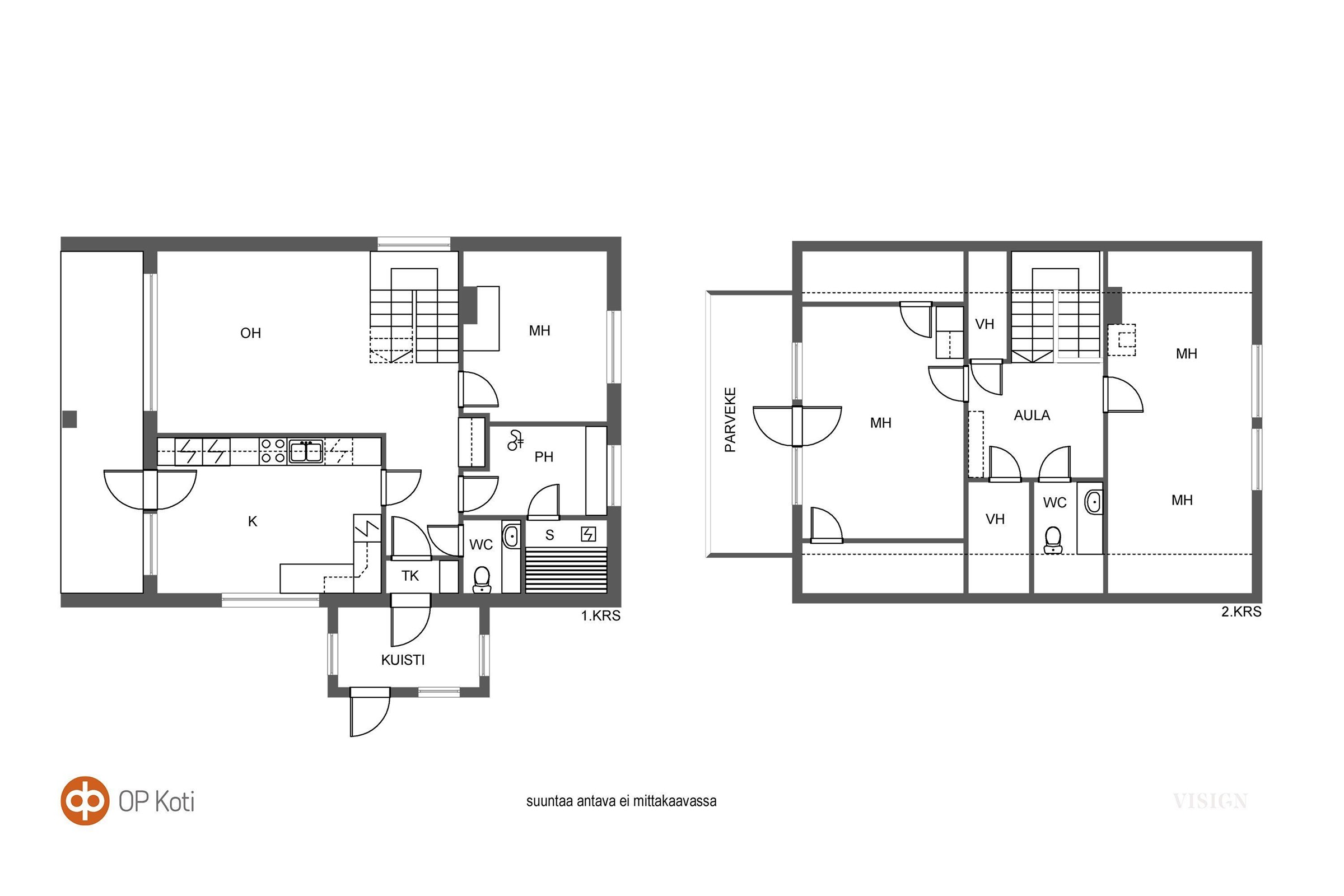
Kodissa on tällä hetkellä kolme makuuhuonetta, ja yläkerran tilava huone on helposti jaettavissa kahdeksi, jolloin saat tarvittaessa neljännen makuuhuoneen. Toimiva pohjaratkaisu tekee arjesta sujuvaa, ja molemmista kerroksista löytyy oma erillinen wc.
Pihapiiri tarjoaa turvallisen ympäristön esimerkiksi lasten leikkeihin. Lisäksi tontilta löytyy tilava erillinen autotallirakennus sekä autokatos.
Ota yhteyttä ja sovi oma esittelysi! Olli Tuumi 0503764646 olli.tuumi@op.fi
Ota yhteyttä välittäjään
Lähettämällä viestin hyväksyt palvelun ehdot.
Kohteen tiedot
Perustiedot
- Kohdenumero
- 615869
- Kohdetyyppi
- Omakotitalo
- Osoite
- Häröntie 8, 28200 PORI
- Omistusmuoto
- Omistus
- Huoneluku
- 4
- Huoneet
- 4h + k + vh + 2wc + kph + s
- Asuinpinta-ala
- 120 m2
- Kokonaispinta-ala
- 120 m2
- Käyttöönottovuosi
- 1984
- Kerros
- Sauna
- Kyllä
- Vapautuminen
- Sopimuksen mukaan
Hintatiedot
Hinta
- Velaton hinta
- 104 000,00 €
- Myyntihinta
- 104 000,00 €
- Lainaosuus
- 0,00 €
Muut maksut
- Kiinteistövero
- 243,32
Sähkö: Kulutus v.2025 (1hlö) 9300 kWh/v. Kiinteistövero: 243,32. .
Osuuspankin lainalaskuri
Lainasi kuukausierä olisi 438 € kuukaudessa
Varustus
- Keittiö
- Jääkaappipakastin, keraaminen liesi, liesituuletin, astianpesukone, kiinteät valaisimet.
- Pesutilat
- Sauna, sähkökiuas, kylpyhuone, erillinen wc, suihkukaappi, peilikaappi, allaskaappi, pesukoneliitäntä, lattialämmitys, kiinteät valaisimet.
- Säilytystilat
- Vaatehuone
Materiaalit
Keittiö: Lattia muovimatto, seinät tapetoitu. Olohuone: Lattia parketti, seinät tapetoitu. Makuuhuone 1: Lattia muovimatto, seinät tapetoitu. Makuuhuone 2: Lattia muovimatto, seinät tapetoitu. Kylpyhuone: Lattia ja seinät laatoitettu. Eteinen: Lattia laatoitettu. Wc: Lattia laatoitettu, seinät tapetti/maali. makuhuone 3: Lattia parketti, seinät tapetoitu. wc2: Lattia muovimatto, seinät tapetoitu.
Rakennuksen tiedot
- Rakennusmateriaali
- Puu
- Kattotyyppi
- Harja
- Kattomateriaali
- Tiili
- Lämmitysjärjestelmä
- Sähkö
- Lämmönjakojärjestelmä
- Lattialämmitys sähkö. Lisäksi seinäpatterit, ilmalämpöpumppu ja varaava takka.
- Ilmanvaihtojärjestelmä
- Painovoimainen
- Energialuokka
- Ei energiatodistusta
- Lisätietoa energiatodistuksesta
- Kohteella ei ole lain edellyttämää energiatodistusta ja sen vuoksi energialuokka ei ole tiedossa
Tehdyt korjaukset
Kuisti rakennettu v.2004 Katto pesty ja maalattu v.2022 Ilmalämpöpumppu asennettu v.2022
Tontti ja kaavoitus
- Tontin pinta-ala
- 1 041 m2
- Omistus
- Vuokrattu
- Vuokralleantaja
- Porin kaupunki
- Tontin vuokra-aika
- Vuokrasopimus päättyy 2033
- Tie perille
- Kyllä
- Kaavoitus
- Asemakaava (sitova tonttijako), Rakennuslupa 1984. Porin kaupunki
Vesi ja viemäröinti
- Vesijohto
- Kyllä
- Käyttövesi
- Kunnan.
- Viemäri
- Kyllä
- Jätevesihuolto
- Kunnan.
Asuntolaina –
Avain unelmiesi kotiin
Tutustu OP:n asuntolainaanHanki kotisi
kokoinen vakuutus
Tutustu Pohjola KotivakuutukseenPohja

Kuvat



























Sijainti
Kohdetta välittää
Pori OP Koti Länsi-Suomi Oy Mikonkatu 4, PORI
010 25 70700 Katso puheluhinnat
opkoti.lansi-suomi@op.fi
Huomaathan, että OP Kodin kohdeilmoituksessa ei ole kaikkia tietoja kohteesta.
Varmista tiedot kohteen virallisesta myyntiesitteestä.