Metsälinnankatu 39, Jokilevo, Huittinen
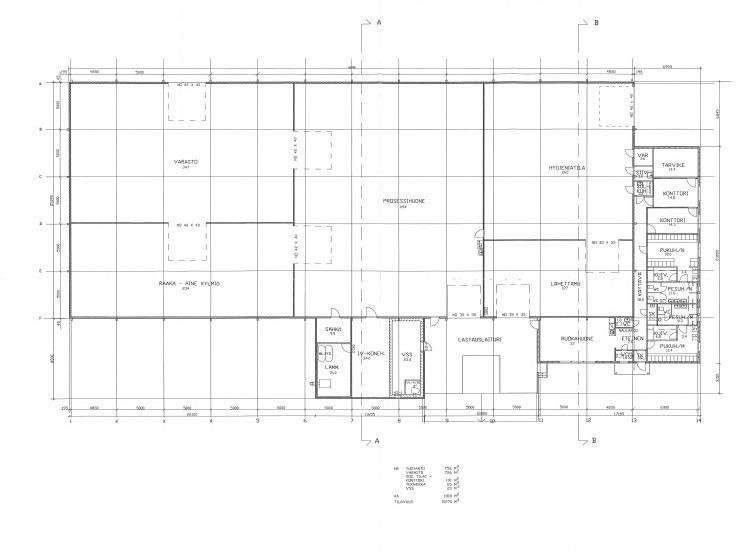
Myydään suuri toimitila Huittisten Kuninkaisista. 1.673 m2:n rakennus käsittää tuotanto-/varastotilaa sekä toimisto- ja sosiaalitilaa. Lisäksi muita tiloja on tekniset tilat sekä väestönsuoja. 5,80 metriä korkeat hallitilat sopivat moneen ja tila on mahdollista jakaa osiin. Rakennuksessa on osittain vesikiertoinen lattialämmitys sekä lämpöpuhaltimet. Polttoaineena on öljy, lämpökeskuksen teho on noin 100 kWh. Valtaosa tuotanto- ja varastotiloista on koneellisesti jäähdytettävää tilaa. Noin 2,10 hehtaarin tontti on pääosin asfaltoitu.
Tilat on osittain vuokrattu määräaikaisella sopimuksella. Lisäksi osa pihasta on vuokrattu myös määräaikaisella sopimuksella. Molemmat päättyvät 31.5.2026.
Jukka Ruusumaa, p. 044 560 5533, jukka.ruusumaa@op.fi
Ota yhteyttä välittäjään
Lähettämällä viestin hyväksyt palvelun ehdot.
Kohteen tiedot
Perustiedot
- Kohdenumero
- 615844
- Kohdetyyppi
- Tuotantotila
- Osoite
- Metsälinnankatu 39, 32700 HUITTINEN
- Huoneet
- Tuotanto-/varasto- sekä toimisto- ja sosiaalitilat
- Kokonaispinta-ala
- 1 673 m2
Hintatiedot
Hinta
- Velaton hinta
- 680 000,00 €
- Myyntihinta
- 680 000,00 €
- Lainaosuus
- 0,00 €
Osuuspankin lainalaskuri
Lainasi kuukausierä olisi 2 867 € kuukaudessa
Rakennuksen tiedot
- Energialuokka
- Ei energiatodistusta
- Lisätietoa energiatodistuksesta
- Kohteelle ei lain mukaan tarvitse hankkia energiatodistusta
Tontti ja kaavoitus
- Tontin pinta-ala
- 2,2 ha
- Omistus
- Oma
- Kaavoitus
- Asemakaava
Lisätiedot
Nykyinen omistaja on myymässä kiinteistöstä n. 500 m2:n määräala mobiilimastoa varten
Pohja

Kuvat























Sijainti
Kohdetta välittää
Huittinen OP Koti Satapirkka Oy LKV Risto Rytin katu 31, HUITTINEN
044 560 5533 Katso puheluhinnat
jukka.ruusumaa@op.fi
Huomaathan, että OP Kodin kohdeilmoituksessa ei ole kaikkia tietoja kohteesta.
Varmista tiedot kohteen virallisesta myyntiesitteestä.