Loppupää 2, Kartano, Pori
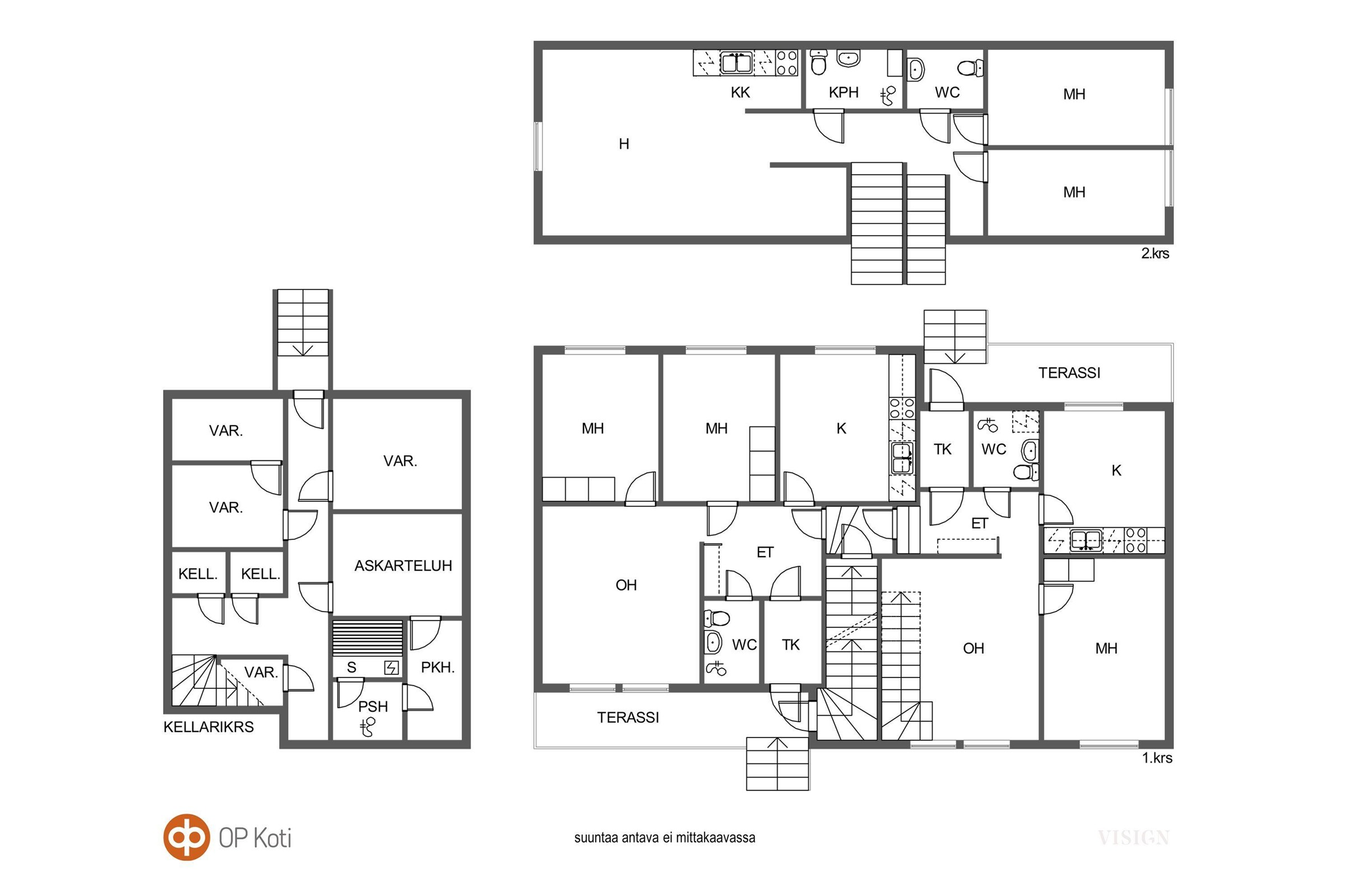
Nyt myynnissä monipuolinen ja tilava talo, joka tarjoaa runsaasti vaihtoehtoja asumiseen. Rakennuksessa on kolme asuntoa:
3h+k, 67 m² 3h+k, 87 m² 1h+kk, 37 m²
Kaikki asunnot ovat siistissä kunnossa, joten muuttamaan pääsee ilman suuria remontteja. Tällä hetkellä asunnoista on kulkuyhteys toisiinsa, mutta tilaratkaisut mahdollistavat vaivattoman eriyttämisen erillisiksi asunnoiksi esimerkiksi vuokrauskäyttöön.
Kohde sopii erinomaisesti:
-suurelle perheelle yhteiseksi kodiksi -useamman sukupolven kodiksi -sijoittajalle - asu itse ja vuokraa samalla
Suuri ja suojaisa tontti tarjoaa turvallisen ympäristön esimerkiksi lasten leikeille ja vapaa-ajan viettoon. Pihapiiristä löytyy kolmen auton autokatos sekä sen yhteydessä kolme erillistä varastoa.
Lisäksi talon kellarikerros tarjoaa runsaasti säilytystilaa sekä kylpyhuone- ja saunaosaston.
Ota yhteyttä ja sovi oma esittelysi! Olli Tuumi 0503764646 olli.tuumi@op.fi
Ota yhteyttä välittäjään
Lähettämällä viestin hyväksyt palvelun ehdot.
Kohteen tiedot
Perustiedot
- Kohdenumero
- 615808
- Kohdetyyppi
- Paritalo
- Osoite
- Loppupää 2, 28430 PORI
- Omistusmuoto
- Omistus
- Huoneluku
- 8
- Huoneet
- 8h + k + 3wc + kph + kellari + s
- Asuinpinta-ala
- 191 m2
- Kokonaispinta-ala
- 191 m2
- Käyttöönottovuosi
- 1995
- Kerros
- 1-2/2
- Hissi
- Ei
- Sauna
- Ei
- Parveke
- Ei
- Vapautuminen
- Sopimuksen mukaan
Hintatiedot
Hinta
- Velaton hinta
- 184 000,00 €
- Myyntihinta
- 184 000,00 €
- Lainaosuus
- 0,00 €
- Neliöhinta
- 963,35 €/m²
Muut maksut
Sähkölämmitys 23000 kWh/v. Tontin vuokra: 1083€/v Kiinteistövero: 353,14€/v
Osuuspankin lainalaskuri
Lainasi kuukausierä olisi 776 € kuukaudessa
Varustus
- Keittiö
- Jääkaappipakastin, keraaminen liesi, liesituuletin, astianpesukone, kiinteät valaisimet.
- Pesutilat
- Kylpyhuone, peilikaappi, allaskaappi, pesukoneliitäntä, lattialämmitys, kiinteät valaisimet.
- Säilytystilat
- Ulkovarasto
Materiaalit
Keittiö: Lattia vinyyli/laminaatti/muovimatto, seinät maali/tapetti. Olohuone: Lattia vinyyli/laminaatti/muovimatto, seinät maali/tapetti. Makuuhuone 1: Lattia vinyyli/laminaatti/muovimatto, seinät maali/tapetti. Makuuhuone 2: Lattia vinyyli/laminaatti/muovimatto, seinät maali/tapetti. Makuuhuone 3: Lattia vinyyli/laminaatti/muovimatto, seinät maali/tapetti. Sauna: Lattia laatoitettu, seinät paneeli. Kylpyhuone: Lattia ja seinät laatoitettu. Wc: Lattia ja seinät laatoitettu. Mh 4: Lattia vinyyli/laminaatti/muovimatto, seinät maali/tapetti. Mh 5: Lattia vinyyli/laminaatti/muovimatto, seinät maali/tapetti.
Taloyhtiö
- Taloyhtiön nimi
- Asunto Oy Porin Puistokartano.
- Kiinteistönhuolto
- Osakkaat
- Asuinhuoneistoja
- 3
- Autopaikat
- Autokatospaikkoja 3 kpl
- Taloyhtiössä on
- Sauna, urheiluvälinevarasto, pyörävarasto, mahdollisuus autopaikkaan
Rakennuksen tiedot
- Rakennusmateriaali
- Puu
- Kattotyyppi
- Harja
- Kattomateriaali
- Pelti
- Lämmitysjärjestelmä
- Sähkö
- Lämmönjakojärjestelmä
- Sähköpatterilämmitys
- Ilmanvaihtojärjestelmä
- Painovoimainen ilmanvaihto
- Energialuokka
- Ei energiatodistusta
- Lisätietoa energiatodistuksesta
- Kohteella ei ole lain edellyttämää energiatodistusta ja sen vuoksi energialuokka ei ole tiedossa
Tehdyt korjaukset
Kattoremontti 2010 Keittiö 2013 Yläkerta wc+suihku 2015 Ikkunat vaihdettu isompi asunto 2016 Talo maalattu 2018 Yläkerran lattia uusittu 2018 Alakerran lattia 2021 Yläkerran patterit 2021 Pienempi asunto lattia 2022. Asunnon remontit: Kattoremontti 2010 Keittiö 2013 Yläkerta wc+suihku 2015 Ikkunat vaihdettu isompi asunto 2016 Talo maalattu 2018 Yläkerran lattia uusittu 2018 Alakerran lattia 2021 Yläkerran patterit 2021 Pienempi asunto lattia 2022
Tontti ja kaavoitus
- Tontin pinta-ala
- 1 603 m2
Asuntolaina –
Avain unelmiesi kotiin
Tutustu OP:n asuntolainaanHanki kotisi
kokoinen vakuutus
Tutustu Pohjola KotivakuutukseenPohja

Kuvat






































Sijainti
Kohdetta välittää
Pori OP Koti Länsi-Suomi Oy Mikonkatu 4, PORI
010 25 70700 Katso puheluhinnat
opkoti.lansi-suomi@op.fi
Huomaathan, että OP Kodin kohdeilmoituksessa ei ole kaikkia tietoja kohteesta.
Varmista tiedot kohteen virallisesta myyntiesitteestä.