Rauhaniementie 5 E, Äijälä, Jyväskylä
RAKENTAMINEN JA KAUPANTEKO ALKAA
Nyt myynnissä todella upea uudiskohde Äijälänsalmen etelänsuuntaiselta rannalta. As Oy Jyväskylän Äijälänvirta on suuri 29 asunnon taloyhtiö, joka koostu viidestä rivitalorakennuksesta, joista takarivin rakennukset ovat kaksikerroksisia ja eturivin yksikerroksisia.
Asuntojen pohjaratkaisut tulevat olemaan avoimia ja käytännöllisiä, asuntojen eteisissä on monipuolisesti arjen askareita tukevat arkieteiset/varastotilat. Kodin sisätilat jatkuvat omille parvekkeille/terasseille ja piha-alueille, jossa nautit kesäpäivistä ja pääset seuraamaan sisävesilaivojen seilaamista aivan kodin vierustalla. Äijälänvirta rakennetaan massiivipuisista CLT-tilaelementeistä. Massiivipuuelementit tarjoavat erinomaisen kantavuuden, rakenteellisen vakauden ja luonnollisen eristysominaisuuden, joka auttaa säästämään energiaa ja vähentämään lämmitys- ja jäähdytyskustannuksia. Massiivipuuelementit säilyttävät myös puun luonnollisen kosteudentasaamisominaisuuden, mikä takaa terveellisen sisäilman.
Pysäköintialueelle toteutetaan 33 kpl pistokepaikkoja ja 7 kpl autokatospaikkoja, autopaikkoihin varustetaan valmius sähköautonlatausasemalle. Autopaikat myydään erillisinä osakkeina hintaan pistokepaikka 5 900 euroa ja katospaikka 11 900 euroa. Yhtiö rakennetaan omalle tontille, joka rajoittuu Äijälänsalmen kanavaan. A-energialuokan taloyhtiö lämpiää maalämmöllä, joka on jaettu vesikiertoisella lattialämmityksellä. Yhtiöön liitetään kaapeli-tv ja valokuituyhteys. Jokaisella huoneistolla on oma lämmin irtaimistovarasto taloyhtiön varastotiloissa. Taloyhtiölle jää käyttöön rakennusoikeutta arviolta 531 k-m² + harraste ja kokoustilat 50 m².
Äijälänvirta sijaitsee poikkeuksellisen upealla ja rauhallisella paikalla, lähellä monipuolisia palveluita sekä lyhyen matkan päässä kaupungin keskustasta. Matka keskustaan taittuu helposti aivan vieressä kulkevaa Rantaraittia pitkin sekä autoillen vain 10 minuutissa. Kävelymatkan päässä kotiovelta sijaitsee kaksi lähikauppaa, kuntosali sekä Kuokkalan keskustan kattavat palvelut.
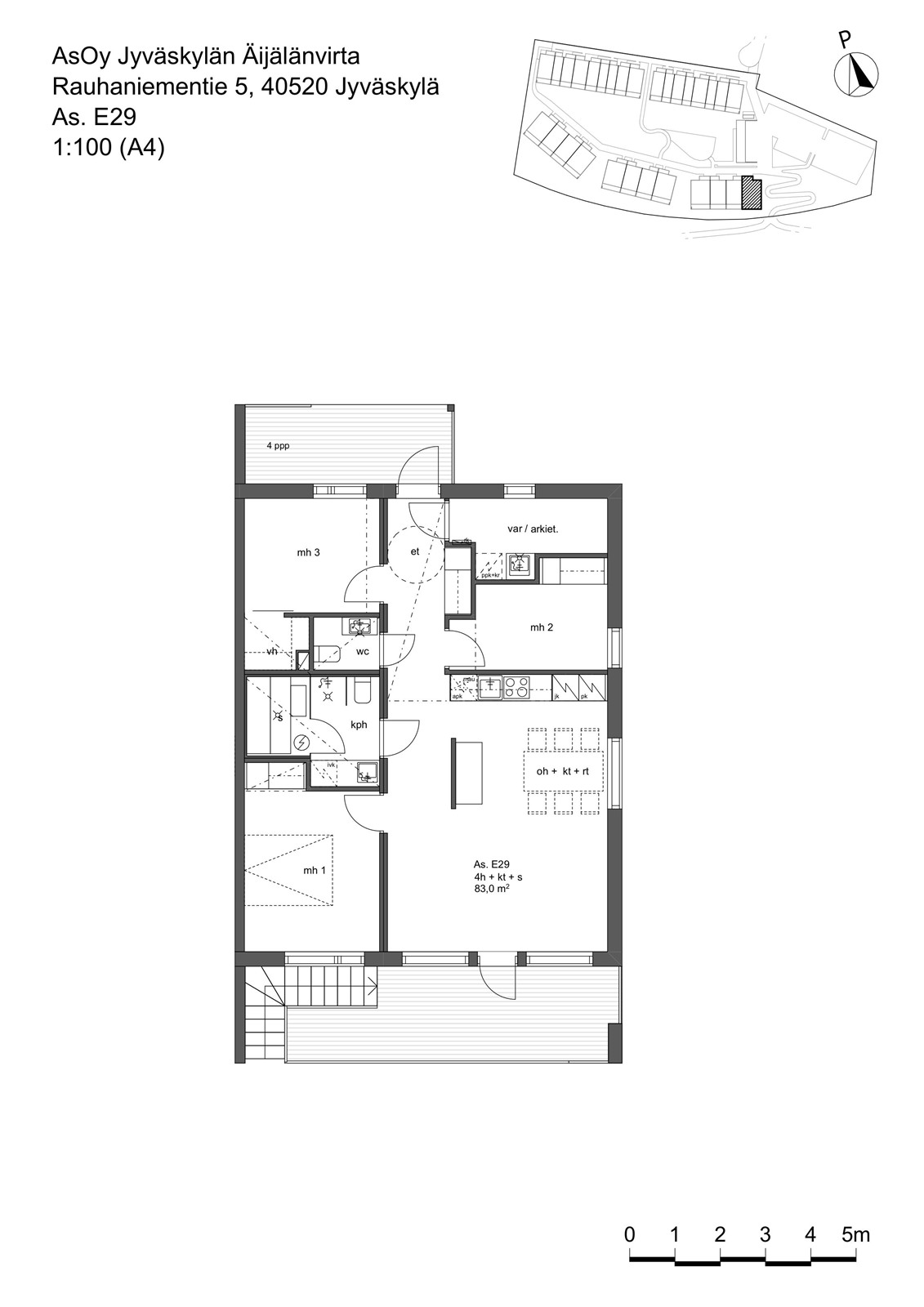
Huoneistovalikoima 71 m² 3h+kt (talot C, D ja E) 77 m² 3h+kt (talot A ja B) 83 m² 4h+kt (talot C, D ja E) 99 m² 4h+kt (talot A ja B) 122 m² 5h+kt (talot A ja B)
Toimi nopeasti sillä rakentaminen aloitetaan heti. Äijälänvirran kodit valmistuvat kahdessa osassa, eturivin C-, D-, ja E-talot valmistuvat jo maaliskuussa 2027 ja A- ja B-talot aikaisintaan maaliskuussa mutta viimeistään kesäkuussa 2027. Kohde myydään RS-kohteena ilman taloyhtiölainaa, kaupanteko alkaa huhtikuussa.
Äijälänvirran kodit myy OP Koti, ole rohkeasti yhteydessä välittäjiimme!
Ota yhteyttä välittäjään
Lähettämällä viestin hyväksyt palvelun ehdot.
Kohteen tiedot
Perustiedot
- Kohdenumero
- 615224
- Kohdetyyppi
- Rivitalo
- Osoite
- Rauhaniementie 5 E, 40520 JYVÄSKYLÄ
- Omistusmuoto
- Omistus
- Huoneluku
- 4
- Huoneet
- 4h, kt, s
- Asuinpinta-ala
- 83 m2
- Kokonaispinta-ala
- 83 m2
- Käyttöönottovuosi
- 2027
- Yleiskunto
- Uusi
- Kerros
- 1/1
- Hissi
- Ei
- Sauna
- Kyllä
- Parveke
- On
- Vapautuminen
- Arvioitu valmistuminen maaliskuussa 2027
Hintatiedot
Hinta
- Velaton hinta
- 365 900,00 €
- Myyntihinta
- 365 900,00 €
- Lainaosuus
- 0,00 €
- Neliöhinta
- 4 408,43 €/m²
Vastikkeet
- Hoitovastike
- 249,00 €/kk
- Yhtiövastike yhteensä
- 249,00 €/kk
Lisää tietoa vastikkeista
Hoitovastike on neliöperusteinen.
Muut maksut
- Vesimaksu
- 25,00 €/kk/henkilö
Vesimaksu 25,00 €/hlö/kk. Hoitovastike on arvio, joka tarkistetaan huoneistojen käyttöönottovaiheessa. Vesimaksuennakko 25 €/hlö, tasauslaskutus kulutuksen mukaan. Autopaikat myydän erillisinä osakkeina. Autokatospaikka 11 900 €, sähköpistokkeellinen piha-autopaikka 5 900 €. Autopaikkojen hoitovastike on 20 €/kk. Autopaikoilla on sähköauton latausvalmius. Latauslaitteet asukkaiden erillishankintana.
Osuuspankin lainalaskuri
Lainasi kuukausierä olisi 1 543 € kuukaudessa
Varustus
- Keittiö
- Keittiön kalusteiden rungot ja sokkelit ovat melamiinia, ovet maalattua MDF-levyä ja komeroiden ovet melamiinia, työtaso on laminaattia. Keittiössä on kalusteuuni, jääkaappipakastin, astianpesukone, kalusteisiin sijoitetettava mikroaaltouuni, induktiokeittotaso ja aktiivihiilisuodattimella varusteltu liesituuletin. Kaikki kodinkoneet integroidaan kalusteisiin, ja jääkaapin sekä astianpesukoneen alle asennetaan turva-altaat.
- Pesutilat
- Sauna- ja pesutilojen lattiat vedeneristetään ja laatoitetaan keraamisella 10x10 cm laatalla. Pesutilojen seinät vesieristetään ja laatoitetaan keraamisella 30x60 cm laatalla. Kodinhoitohuoneessa ja erillisessä wc:ssä lattia laatoitetaan 60x60 cm lattialaatalla. Saunojen, pesuhuoneiden ja WC-tilojen katot paneloidaan puupaneelilla. Saunat varustetaan Harvian pilarikiukailla.
- Säilytystilat
- Vaatehuone
Materiaalit
Lattiamateriaalina käytetään vinyylilankkua/laminaattia. Seinät tasoitetaan ja maalataan.
Taloyhtiö
- Taloyhtiön nimi
- As Oy Jyväskylän Äijälänvirta
- Asuinhuoneistoja
- 29
- Autopaikat
- Autokatospaikkoja 7 kpl, sähköpistokepaikkoja 35 kpl
- Taloyhtiössä on
- Väestösuoja, kaapeli-TV, tietoliikenneyhteys
Rakennuksen tiedot
- Rakennusmateriaali
- Puu. Rakennukset toteutetaan puurakenteisina, ja asunnot valmistetaan tehtaalla CLT-tilaelementteinä. Ulkoseinät ovat CLT-rakenteisia, ja julkisivut verhoillaan hienosahatulla puupaneelilla. Huoneistojen väliset seinät muodostuvat CLT-tilaelementtien kantavista rakenteista, ja muut sisäseinät ovat kevytrakenteisia.
- Kattotyyppi
- Harja
- Kattomateriaali
- Pelti
- Lämmitysjärjestelmä
- Maalämpö. Autokatoksen katolle asennetaan aurinkopaneelit. Tuotettu sähkö käytetään kiinteistön omiin tarpeisiin (esim. maalämpö, ulkovalaistus).
- Lämmönjakojärjestelmä
- Lattialämmitys vesi
- Energialuokka
- Ei energiatodistusta
- Lisätietoa energiatodistuksesta
- Uudishohteella ei ole vielä lain edellyttämää energiatodistusta ja sen vuoksi energialuokka ei ole tiedossa.
Tontti ja kaavoitus
- Kaavoitus
- Asemakaava. Jyväskylän kaupunki
Asuntolaina –
Avain unelmiesi kotiin
Tutustu OP:n asuntolainaanHanki kotisi
kokoinen vakuutus
Tutustu Pohjola KotivakuutukseenPohja

Kuvat


















Sijainti
Kohdetta välittää
Jyväskylä OP Koti Sisä-Suomi Oy LKV Kauppakatu 22, JYVÄSKYLÄ
010 256 5950 Katso puheluhinnat
opkoti.keski-suomi@op.fi
Huomaathan, että OP Kodin kohdeilmoituksessa ei ole kaikkia tietoja kohteesta.
Varmista tiedot kohteen virallisesta myyntiesitteestä.