Pajakatu 7, Toivike, Karkkila
Monipuolinen teollisuuskiinteistö Karkkilassa.
Myynnissä teollisuuskäyttöön soveltuva hallikokonaisuus Karkkilan Pajakadulla. Oma 1935 m² tontti tarjoaa hyvät puitteet korjaamo-, metallialan, tuotannon tai varastoinnin tarpeisiin.
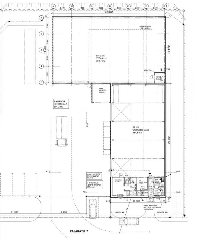
Rakennus on ollut aktiivisessa teollisessa käytössä, mikä näkyy sen kunnossa, mutta tilat ovat edelleen hyvin käyttökelpoiset ja tarjoavat paljon mahdollisuuksia. Tilat Kokonaisala 742 m² muodostuu kolmesta osasta: Alkuperäinen halli (1971) n. 300 m² Laajennusosa (2006) n. 373 m² Asunto (2017) 58 m²
Hallin vapaakorkeus on noin 5 metriä, ja käytössä on kaksi 5 tonnin siltanosturia. Tilaan johtaa kaksi nosto-ovea sekä laajennusosan taitto-ovi. Lattiassa on kolme kaivoa, joissa öljyn- ja hiekanerotus. Laajennusosassa on hitsausrobotille toteutettu asennuskuilu.
Rakenteet ja tekniikka Alkuperäinen osa: puupalkkirunko, siporex-harkot Laajennus: teräspalkkirunko, teräs/peltiverhous Harjakatto, peltikate Maanvarainen betonilaatta Sähköliittymä 3 x 63 A, 400 V
Lämmitys Hallissa on vesi-ilmalämpöpumppu ja ilmalämmitys puhaltimin. Aiempi öljylämmitys on edelleen paikallaan varajärjestelmänä.
Kaava ja tontti Tontti 1 935 m² Asemakaava TY-1 II, e= 0,50: teollisuus- ja varastorakennusten korttelialue.
Sijainti ja etäisyydet Kohde sijaitsee Karkkilan teollisuusalueella lähellä Porintietä, mikä tarjoaa sujuvan yhteyden Etelä-Suomen keskeisille alueille: Helsinki n. 60 min Hämeenlinna n. 45 min
Sijainti sopii hyvin yrityksille, jotka tarvitsevat toimivan tuotantotilan sekä hyvät kulkuyhteydet eri suuntiin.
Lisätietoja ja esittelyt: Mika Nyman 0400347758 mika.nyman@op.fi
Ota yhteyttä välittäjään
Lähettämällä viestin hyväksyt palvelun ehdot.
Kohteen tiedot
Perustiedot
- Kohdenumero
- 614787
- Kohdetyyppi
- Tuotantotila
- Osoite
- Pajakatu 7, 03620 KARKKILA
- Huoneet
- Teollisuushalli, asunto
- Kokonaispinta-ala
- 742 m2
- Vapautuminen
- Sopimuksen mukaan
Hintatiedot
Hinta
- Velaton hinta
- 350 000,00 €
- Myyntihinta
- 350 000,00 €
- Lainaosuus
- 0,00 €
Osuuspankin lainalaskuri
Lainasi kuukausierä olisi 1 476 € kuukaudessa
Rakennuksen tiedot
- Energialuokka
- Ei energiatodistusta
- Lisätietoa energiatodistuksesta
- Kohteella ei ole lain edellyttämää energiatodistusta ja sen vuoksi energialuokka ei ole tiedossa
Tontti ja kaavoitus
- Tontin pinta-ala
- 1 935 m2
- Omistus
- Oma
- Kaavoitus
- Asemakaava TY-1 II, e=0,50
Lisätiedot
Kaupankohteena kiinteistö, kiinteistötunnus 224-3-24-3. Velattomat kiinnitykset yht.arvoltaan 450.000 €, jotka siirretään ostajalle kaupanteon yhteydesä. Omat tontti 1935 m². Asemakaava: TY-1 II, e=0,50 Raskaan teollisuuden tehdasrakennukset Rakennusvuosi 1971, 300 m². (loppukatselmus 24.5.1972) Laajennus 2006, 373 m² (loppukatselmus 14.12.2006) Asunto tehty 2017, 58 m². (loppukatselmus 20.4.2017) Kerrosala 742 m². Alkuperäinen osa puupalkkirunko, siporex harkko. Laajennusosa teräspalkkirunko, pelti/teräsverhous. Harjakatto, peltikate. Maanvarainen betonilaatta Vesi-ilmalämpöpumppu - ilmalämmitys puhaltimin. Ollut öljylämmitys (varalla) Sähkö pääsulake 3 x 63 A, 400 V Asunto vuokrattu. Vuokra 300 € /kk. Sopimus suullinen, eikä sopimusta ole irtisanottu.
Pohja

Kuvat


























Sijainti
Kohdetta välittää
Helsinki OP Koti Uusimaa Oy LKV Arkadiankatu 23, HELSINKI
0400 347 758 Katso puheluhinnat
mika.nyman@op.fi
Huomaathan, että OP Kodin kohdeilmoituksessa ei ole kaikkia tietoja kohteesta.
Varmista tiedot kohteen virallisesta myyntiesitteestä.