Katajakuja 3, Arantila, Nakkila
Tervetuloa ihastumaan upeaan mammuttihirsitaloon, jossa yhdistyvät lämminhenkinen tunnelma, avarat tilat ja luonnonläheinen sijainti. Tämä koti tarjoaa runsaasti tilaa isommallekin perheelle. Toimiva pohjaratkaisu, suuret oleskelutilat ja useat makuuhuoneet.
Talo sijaitsee suojaisalla ja luonnonkauniilla paikalla metsän reunalla. Oma piha-alue tarjoaa rauhaa, yksityisyyttä ja tilaa lasten leikeille, oleskeluun sekä puutarhaelämälle. Luonto alkaa kirjaimellisesti kotiovelta, mutta palvelut ovat silti sopivan matkan päässä.
Hirren luonnollinen kauneus, hengittävä rakenne ja ajaton tyyli tekevät tästä kodista viihtyisän ja kestävän valinnan vuosiksi eteenpäin. Tämä kokonaisuus täytyy kokea paikan päällä, tervetuloa tutustumaan unelmiesi kotiin.
Ota yhteyttä välittäjään
Lähettämällä viestin hyväksyt palvelun ehdot.
Kohteen tiedot
Perustiedot
- Kohdenumero
- 614275
- Kohdetyyppi
- Omakotitalo
- Osoite
- Katajakuja 3, 29250 NAKKILA
- Omistusmuoto
- Omistus
- Huoneluku
- 6
- Huoneet
- 6h + k + rt + s
- Asuinpinta-ala
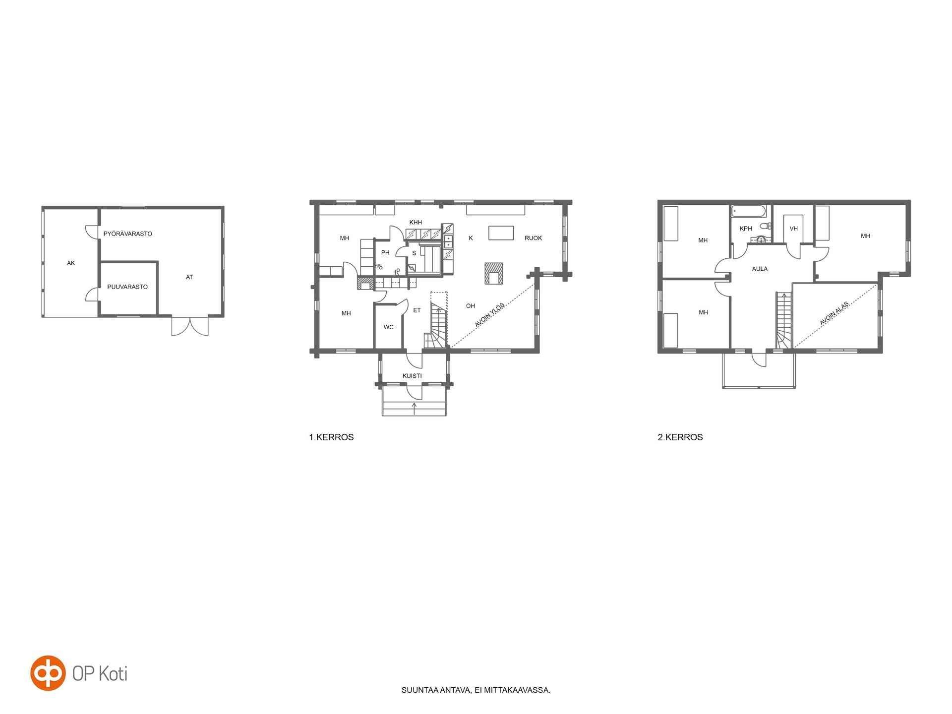
- 191,2 m21 kerros 117,6 m2 2 makuuhuonetta, wc, vaatehuone, pesuhuone, sauna, khh, keittiö, ruokailutila sekä olohuone. 2 kerros 73,6 m2 3 makuuhuonetta, wc ja vaatehuone
- Kokonaispinta-ala
- 206,9 m2
- Muu ala
- 15,7 m2Autokatos, varasto, autotalli 54 m2.
- Käyttöönottovuosi
- 2006
- Kerros
- Sauna
- Kyllä
- Vapautuminen
- Sopimuksen mukaan
Hintatiedot
Hinta
- Velaton hinta
- 249 000,00 €
- Myyntihinta
- 249 000,00 €
- Lainaosuus
- 0,00 €
Muut maksut
- Kiinteistövero
- n. 500 €/2025
Lämmitys: sähkö ja puu. Sähkö: kulutuksen mukaan . Kiinteistövero: n. 500 €/2025. . Sähköä kulunut noin. 18.000 kwh/v (myyjän sopimuksella 2400 €). Puita poltettu noin 5 mottia.
Osuuspankin lainalaskuri
Lainasi kuukausierä olisi 1 050 € kuukaudessa
Varustus
- Keittiö
- Jääkaappipakastin, keraaminen liesi, liesikupu, astianpesukone, kaapistot, kiinteät valaisimet, pöytätasojen materiaali kivi.
- Pesutilat
- Sauna, sähkökiuas, kylpyhuone, erillinen wc 2 kpl, amme, peilikaappi, kaapit, allaskaappi, pesukoneliitäntä, lattialämmitys, kiinteät valaisimet.
- Säilytystilat
- Vaatehuone, ulkovarasto
Materiaalit
Keittiö: Laminaatti, hirsi. Olohuone: Laminaatti, hirsi. Makuuhuone 1: Laminaatti, tapetti. Makuuhuone 2: Laminaatti, tapetti. Makuuhuone 3: Laminaatti, tapetti. Kodinhoitohuone: Laatta, hirsi. Sauna: Laatta, paneeli. Kylpyhuone: Laatta, uusittu 2025. Eteinen: Kivi, hirsi. Wc: Laatta. Makuuhuone 4: Laminaatti, tapetti.
Rakennuksen tiedot
- Rakennusmateriaali
- Hirsi. Mammuttihirsi, lamellihirsi.
- Kattotyyppi
- Harja
- Kattomateriaali
- Tiili. Alkuperäinen. Rännit puhdistettu säännöllisesti.
- Lämmitysjärjestelmä
- Sähkö. 2 varaavaa takkaa ja ilmalämpöpumppu.
- Lämmönjakojärjestelmä
- Lattialämmitys sähkö. Eteisessä sähköpatteri, muualla sähköinen lattialämmitys.
- Ilmanvaihtojärjestelmä
- Koneellinen lämmön talteenotolla
- Energialuokka
- Ei energiatodistusta
- Lisätietoa energiatodistuksesta
- Kohteella ei ole lain edellyttämää energiatodistusta ja sen vuoksi energialuokka ei ole tiedossa
Tehdyt korjaukset
Kylyphuone remontoitu 2025. Piha asfaltoitu 2020. Yläkerran amme ja kalusteet uusittu 2022. Hanat 4 kpl uusittu 2024. Parvekkeen huopa uusittu 2020.
Tontti ja kaavoitus
- Tontin pinta-ala
- 1 830 m2
- Omistus
- Oma
- Tie perille
- Kyllä
- Kaavoitus
- Asemakaava (ohjeellinen tonttijako), Rakennuslupa 2005. Nakkilan Kunta
- Rakennusoikeus
- 344 m2
- Lisätietoja maapohjasta
- Asuinrakennus 217 m2 sekä autotalli/varasto 54 m2.
Vesi ja viemäröinti
- Vesijohto
- Kyllä
- Käyttövesi
- Kunnan.
- Viemäri
- Kyllä
- Jätevesihuolto
- Kunnan.
Asuntolaina –
Avain unelmiesi kotiin
Tutustu OP:n asuntolainaanHanki kotisi
kokoinen vakuutus
Tutustu Pohjola KotivakuutukseenPohja

Kuvat





































Sijainti
Kohdetta välittää
Pori OP Koti Länsi-Suomi Oy Mikonkatu 4, PORI
010 25 70700 Katso puheluhinnat
opkoti.lansi-suomi@op.fi
Huomaathan, että OP Kodin kohdeilmoituksessa ei ole kaikkia tietoja kohteesta.
Varmista tiedot kohteen virallisesta myyntiesitteestä.