Airokuja 3, Kaanaanranta, Raisio
Tilava koti rauhallisella pientaloalueella Raision Kaanaanrannassa tarjoaa puitteet sujuvaan arkeen ja mahdollisuuden nauttia omasta pihapiiristä sekä luonnon läheisyydestä. Yhdessä tasossa oleva talo on suunniteltu palvelemaan monenlaista elämäntilannetta; tilat ovat avarat ja helposti muunneltavissa perheen tarpeiden mukaan. Kodin tunnelma on mutkaton ja käytännöllinen, täällä arki sujuu mukavasti.
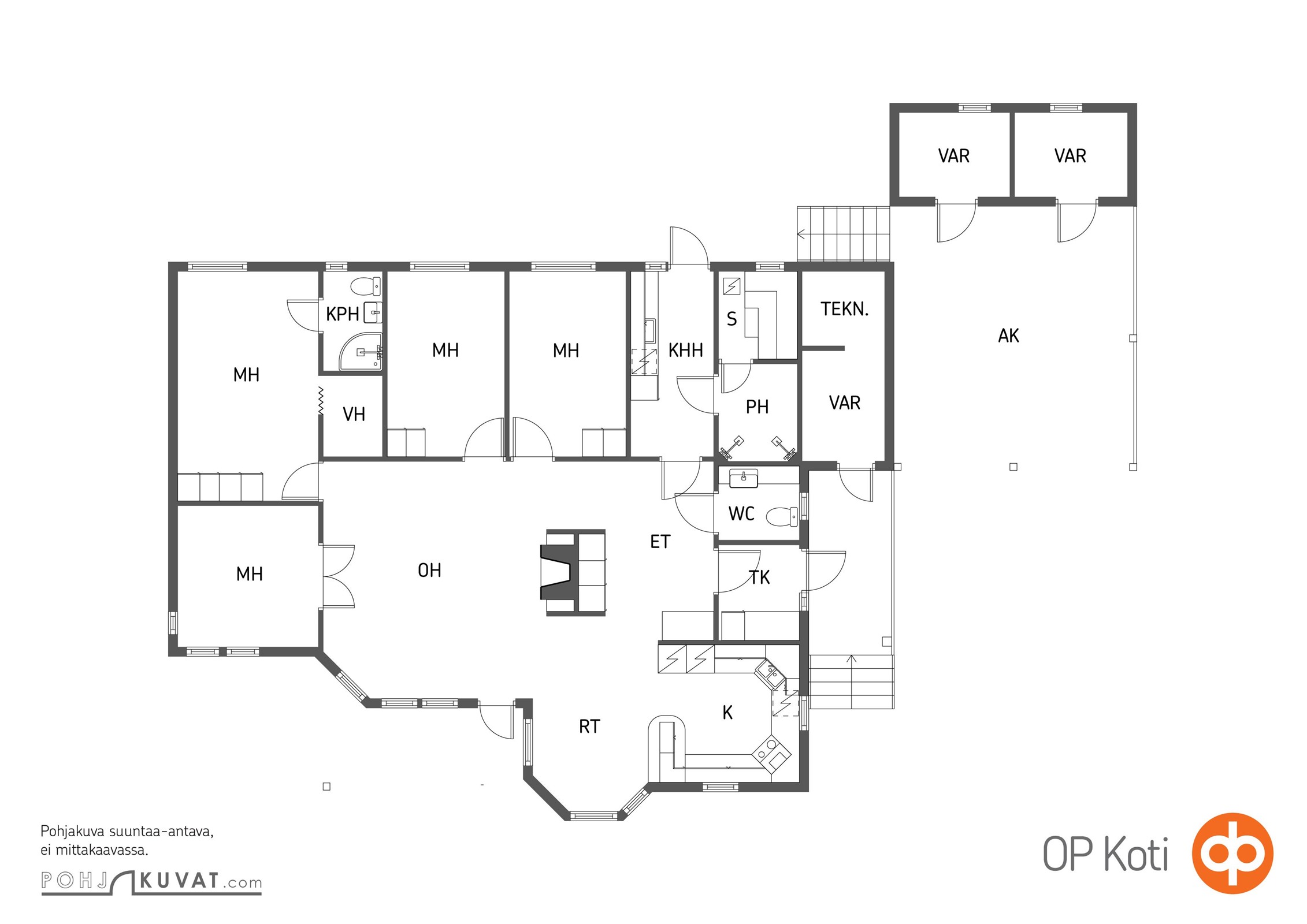
Asuintilaa on 143 neliötä, minkä lisäksi käytössä on noin 50 neliötä varasto- ja teknisiä tiloja sekä autokatos varastoineen. Keittiössä on kaikki tarvittava ruoanlaittoon ja yhteisiin hetkiin, ja olohuoneesta avautuu näkymä omalle pihalle. Kolme makuuhuonetta tarjoavat rauhalliset tilat lepoon ja työskentelyyn. Kylpyhuoneen ja saunan yhteydessä on kodinhoitotila, joka helpottaa arjen askareita. Talossa on myös ilmalämpöpumppu, takka sekä keskuspölynimuri.
Kaanaanrannan alueella viihdytään luonnon äärellä, mutta palvelut ja liikenneyhteydet ovat kuitenkin lähellä. Lähistöllä sijaitsevat koulut, päiväkoti ja kaupat tekevät arjesta sujuvaa. Alueen rauhallinen tunnelma ja hyvät ulkoilumahdollisuudet houkuttelevat viettämään aikaa kotipihassa ja lähimaastossa.
Rakennus on valmistunut vuonna 2003 ja perusrakenne on puuta ja tiiltä. Lämmityksestä huolehtii kaukolämpö miellyttävällä vesikiertoisella lattialämmityksellä, ja energiankulutusta pienentävät aurinkokeräimet. Ilmanvaihto on koneellinen lämmöntalteenotolla. Kiinteistöstä on pidetty huolta, mm. terassia on laajennettu, aurinkokeräimet ja sähköauton latausasema asennettu. Kuntokartoitus on tehty ja raportti on saatavilla; rakennuksessa on havaittu joitakin tavanomaisia huoltotarpeita, jotka on hyvä huomioida suunnitelmissa.
Jos kaipaat tilavaa kotia rauhallisella alueella, sovi oma esittelyaikasi, autan mielelläni myös nykyisen kotisi myynnissä.
Yhteystiedot: Jari Heiniola, puh. 0400 234 120 tai jari.heiniola@op.fi
Ota yhteyttä välittäjään
Lähettämällä viestin hyväksyt palvelun ehdot.
Kohteen tiedot
Perustiedot
- Kohdenumero
- 613271
- Kohdetyyppi
- Omakotitalo
- Osoite
- Airokuja 3, 21120 RAISIO
- Omistusmuoto
- Omistus
- Huoneluku
- 5
- Huoneet
- 5h + k + aula, kph, sauna 2 wc, khh, ak, tekn.tila/var
- Asuinpinta-ala
- 143 m2Asuintilojen ilmoitettu pinta-ala 143 m2 on rakennuslupapiirustusten mukainen huoneistoala. Rakennuslupapiirrosten mukainen kerrosala on 183 m2. Raision kaupungin rakennus- ja huoneistorekisteriotteen mukaan käytetty kokonaisala on 216 m2.
- Kokonaispinta-ala
- 193 m2
- Muu ala
- 50 m2Muut tilat noin 50 m2 ovat sisäseinistä mitatut asuinrakennuksen yhteydessä olevat tekninen tila ja varasto, autokatos ja autokatoksen yhteydessä olevat varastot.
- Käyttöönottovuosi
- 2003
- Yleiskunto
- Tyydyttävä
- Kerros
- Sauna
- Kyllä
- Vapautuminen
- Sopimuksen mukaan
Hintatiedot
Hinta
- Velaton hinta
- 324 000,00 €
- Myyntihinta
- 324 000,00 €
- Lainaosuus
- 0,00 €
Muut maksut
- Kiinteistövero
- 443,20
Lämmitys: 110/kk, 1500€/vuosi. Sähkö: 2780€/v 16000 kWh/v. Vesi ja jätevesi: 83€/kk. Puhtaanapito: 8€/4kk. Kiinteistövero: 443,20. .
Osuuspankin lainalaskuri
Lainasi kuukausierä olisi 1 366 € kuukaudessa
Varustus
- Keittiö
- Jääkaappipakastin, erillisuuni mikroaaltouuni samassa, liesitaso induktio 12/2025, liesituuletin, kaapistot, kiinteät valaisimet, pöytätasojen materiaali laminaatti.
- Pesutilat
- Sauna, sähkökiuas, kylpyhuone, erillinen wc 2 kpl, toisessa suihku, suihku 2 kpl kylpyhuoneessa, suihkuseinä makuuhuoneen wc, peilit, kaapit, allaskaappi, pesukoneliitäntä, lattialämmitys vesikiertoinen, kiinteät valaisimet. Puustellin kalusteet toisessa wc:ssä
Materiaalit
Keittiö: Lattia laatta ja seinät maalattu. Olohuone: Lattia parkettia ja seinät maalattu. Makuuhuone 1: Lattia parketti ja seinät maalattu. Makuuhuone 2: Lattia laata jaseinät maalattu. Makuuhuone 3: Lattia parketti ja seinät maalattu. Kodinhoitohuone: Lattia laatta ja seinät laatta. Sauna: Lattia laatta ja seinät puupaneeli. Kylpyhuone: Seinät ja lattia laatta. Eteinen: Lattia laatta ja seinät maalattu. Wc: Lattia laatta ja seinät laatta. makuuhuone: Lattia parketti ja seinät maalattu. WC: Lattia laatta ja seinät laatta.
Rakennuksen tiedot
- Rakennusmateriaali
- Puu. Puu ja tiili.
- Kattotyyppi
- Harja
- Kattomateriaali
- Tiili
- Lämmitysjärjestelmä
- Kaukolämpö. Aurinkokeräimet Luxor Ecoline M108 410W x 20, ilmalämpöpumppu ja takka (ei varaava).
- Lämmönjakojärjestelmä
- Lattialämmitys vesi
- Ilmanvaihtojärjestelmä
- Koneellinen tulo, Koneellinen poisto, Lämmön talteenotto
- Energialuokka
- B 2018
- Lisätietoa energiatodistuksesta
- Energiatodistus voimassa 23.2.2036 saakka.
Tehdyt korjaukset
2025 yksi makuuhuone maalattu, 2010 lähtien terassia laajennettu, 2025 terassin kaide rakennettu, 2023 aurinkokeräimet 20kpl, 2024 sähköauton latausasema
Tontti ja kaavoitus
- Tontin pinta-ala
- 877 m2
- Omistus
- Vuokrattu
- Vuokralleantaja
- Raision kaupunki
- Tontin vuokra-aika
- Vuokrasopimus päättyy 30.04.2052
- Tie perille
- Kyllä
- Kaavoitus
- Asemakaava (sitova tonttijako), Rakennuslupa 2002. Raision kaupunki Raision kaupunki
- Rakennusoikeus
- 250 m2
Vesi ja viemäröinti
- Vesijohto
- Kyllä
- Käyttövesi
- Kunnan.
- Viemäri
- Kyllä
- Jätevesihuolto
- Kunnan.
- Jätevesi-selvitys tehty
- Ei
Asuntolaina –
Avain unelmiesi kotiin
Tutustu OP:n asuntolainaanHanki kotisi
kokoinen vakuutus
Tutustu Pohjola KotivakuutukseenPohja

Kuvat
























































Sijainti
Kohdetta välittää
Raisio OP Koti Varsinais-Suomi Oy LKV Torikuja 1, RAISIO
010 2569 118 Katso puheluhinnat
opkoti.varsinais-suomi@op.fi
Huomaathan, että OP Kodin kohdeilmoituksessa ei ole kaikkia tietoja kohteesta.
Varmista tiedot kohteen virallisesta myyntiesitteestä.