Keiteleentie 6 A, Suolahti, Äänekoski
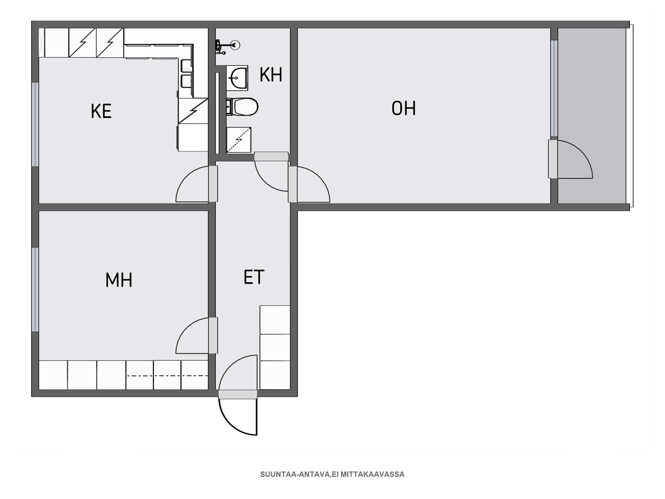
Tämä valoisa ja tilava kaksio tarjoaa sinulle mahdollisuuden luoda juuri omannäköisesi kodin Suolahdessa. Toisen kerroksen asunto soveltuu mainiosti niin ensiasunnon ostajalle kuin sijoittajallekin, sillä pohjaratkaisu on käytännöllinen ja tilat muuntautuvat helposti erilaisiin tarpeisiin. Makuuhuoneessa on hyvin säilytystilaa ja eteisen käytännöllisyys helpottaa arjen sujumista. Lasitettu parveke tuo lisätilaa ja viihtyisyyttä arkeen.
Suolahti tarjoaa kattavat palvelut lyhyen kävelymatkan päässä kuten kaupat, koulut, uimahalli ja jäähalli.
Taloyhtiössä on vuosien varrella tehty mittavia kunnostuksia. Lisäksi yhtiössä on huolehdittu yhteisten tilojen kunnostuksesta ja energiatehokkuudesta, mikä lisää asumismukavuutta ja turvaa sijoituksesi arvoa.
Heti vapaa, pyydä esittely!
Ota yhteyttä välittäjään
Lähettämällä viestin hyväksyt palvelun ehdot.
Kohteen tiedot
Perustiedot
- Kohdenumero
- 613198
- Kohdetyyppi
- Kerrostalo
- Osoite
- Keiteleentie 6 A, 44200 SUOLAHTI
- Omistusmuoto
- Omistus
- Huoneluku
- 2
- Huoneet
- 2h, k
- Asuinpinta-ala
- 60,5 m2
- Kokonaispinta-ala
- 60,5 m2
- Käyttöönottovuosi
- 1972
- Yleiskunto
- Tyydyttävä
- Kerros
- 2/3
- Hissi
- Ei
- Sauna
- Ei
- Parveke
- On, lasitettu
- Ikkunat ja näköalat
- Parveke ja olohuone etelään
- Vapautuminen
- Heti
Hintatiedot
Hinta
- Velaton hinta
- 14 900,00 €
- Myyntihinta
- 14 900,00 €
- Lainaosuus
- 0,00 €
- Neliöhinta
- 246,28 €/m²
Vastikkeet
- Hoitovastike
- 254,10 €/kk
- Yhtiövastike yhteensä
- 254,10 €/kk
Muut maksut
- Vesimaksu
- 30,00 €/kk/henkilö
Vesimaksu 30,00 €/hlö/kk, saunamaksu 8,00 €/kk, autopaikka 10,00 €/kk.
Osuuspankin lainalaskuri
Lainasi kuukausierä olisi 63 € kuukaudessa
Varustus
- Keittiö
- Jääkaappipakastin, sähköliesi, astianpesukone, kaapistot laatikostojen ja kaappien ovista on irronnut pintaa, kiinteät valaisimet.
- Pesutilat
- Kylpyhuone, suihku, peilit, peilikaappi, pesukoneliitäntä, kiinteät valaisimet.
- Säilytystilat
- Kellari
Materiaalit
Keittiö: lattiassa laminaatti, seinät maalatut. Olohuone: lattiassa laminaatti, seinät tapetoidut / maali. Makuuhuone 1: lattiassa laminaatti, seinät tapetoidut / maali. Kaapistot. Kylpyhuone: lattia ja seinät laatoitetut. Eteinen: lattiassa laminaatti, seinät maalatut. Kaapisto.
Taloyhtiö
- Taloyhtiön nimi
- Asunto Oy Suolahden Puistokatu 3-5
- Isännöitsijä
- Juho Pirttiaho / Pirtti Isännöinti Oy Torikatu 2, 44100 Äänekoski
- Kiinteistönhuolto
- Huoltoyhtiö
- Asuinhuoneistoja
- 44
- Taloyhtiössä on
- Sauna, talopesula, kuivaushuone, kellarikomerot, väestösuoja, yhteisantennijärjestelmä, mahdollisuus autopaikkaan
Rakennuksen tiedot
- Rakennusmateriaali
- Betoni
- Kattotyyppi
- Pulpetti
- Kattomateriaali
- Huopa
- Lämmitysjärjestelmä
- Kaukolämpö
- Lämmönjakojärjestelmä
- Vesikiertoinen patterilämmitys
- Ilmanvaihtojärjestelmä
- Koneellinen poisto
- Energialuokka
- E 2018
- Lisätietoa energiatodistuksesta
- Voimassa 05.04.2034 saakka
Tehdyt korjaukset
2001 rakennettu jätekatos. 2001 maalattu Keiteleentie 6 porrashuoneiden seinät. 2004 uusittu lukitus (Exec). 2004 uusittu Hopeapajunkatu 3 ja 5 alakerran asuntoihin parvekkeiden kaiteet. 2004 Hopeapajunkatu 3 ja 5 luhtikäytävien lattiat maalattu. 2004 Keiteleentie 6 takaovet uusittu. 2002-2006 vesikate uusittu/kunnostettu huopakattojen osalta (luhtikäytävien vesikatot sekä parvekkeiden katot), lisäksi uusittu vesirännejä ja syöksyputkia tarpeellisin osin. 2007 vesikate peltikattojen osalta maalattu/kunnostettu ulkomaalausurakassa. 2007-2008 uusittu kaikki ikkunat sekä luhtikäytävähuoneistojen sekä porraskäytävissä sijaitsevien huoneistojenkerrostaso-ovet. 2007-2008 talojen elementtisaumaukset uusittu. 2007-2008 talot maalattiin ulko-osiltaan: Hopeapajunkatu 3 ja 5 kokonaan, Keiteleentie 6 osittain, koska oli ulkomaalattu 90- luvun loppupuolella. 2008 talojen välinen lämpökanaali uusittu. 2008 lämmönvaihdin ja paisuntasäiliö uusittu. 2009 jätekatoksen sisätilaa laajennettu ottamalla etukatos sisätilaksi. 2010 kerhohuoneen kunnostus. 2010 akustolevyt kaikkien talojen porraskäytävien sisäkattoihin. 2011 luhtikäytävien kaide-elementtien saumaus ja pellitys. 2011 asuntoparvekkeiden vedenpoistoputkien pidennys. 2012 kuivaushuoneen lattian uudelleen valu ja pinnoitus. 2012 Keiteleentie 6 takaovien lipat. 2012 hankittu lipputanko. 2012 pihavalot sisäpihalle. 2012 saunan lauteiden ja suihkujen uusiminen. 2013 luhtikäytävien lattioiden valukorjaukset ja pinnoitus. 2013 Keiteleentie 6 kellarikäytävien seinien maalaus. 2013 saunan panelointi ja ovien uusiminen, sekä lämpöjohtojen uudelleen asennus. 2014 Keiteleentie 6 kellarikäytävien lattioiden hionta ja maalaus. 2015 lämmönsäätö ja patteritermostaattien uusiminen. 2015 yläpohjan lisälämmöneristys. 2016 putkiston kuntokartoitus. 2016 suppea asbestikartoitus. 2017 jätevesikaivojen kunnostus (putkiston kuntotutkimuksen mukaisesti). 2017 paikoitusalueen kunnostaminen. 2017 iv-kanavien puhdistus ja poistoventtiilien säätö. 2019 taloyhtiön saunan kiuas uusittiin. 2019 Keiteleentie 6 varastoon asennettiin liiketunnistimella toimivat valot. 2022 taloyhtiön pyykinpesukoneen uusiminen. 2023 kylmiön ottaminen pois käytöstä. 2024 Rakennusten elementtisaumojen uusinta.. Asunnon remontit: -
Tontti ja kaavoitus
- Tontin pinta-ala
- 4 180 m2
- Omistus
- Vuokrattu
- Vuokralleantaja
- Äänekosken kaupunki
- Tontin vuokra-aika
- Vuokrasopimus päättyy 2072
- Kaavoitus
- Asemakaava. Äänekosken kaupunki kaavoituspalvelut
Palvelut ja liikenneyhteydet
Palvelut: K-Market 450 m, S-Market 300 m, Posti K-Market 300 m, terveyskeskus Äänekoskella 10 km. Koulut: Telakan koulu, jäähalli ja uimahalli 1,4 km. Päiväkoti: Katvelan päiväkoti 950 m. Taloyhtiö käsittää kolme rakennusta, tässä rakennuksessa sijaitsee sauna, pesutupa ja kolme kuivaushuonetta.
Asuntolaina –
Avain unelmiesi kotiin
Tutustu OP:n asuntolainaanHanki kotisi
kokoinen vakuutus
Tutustu Pohjola KotivakuutukseenPohja

Kuvat










Sijainti
Kohdetta välittää
Äänekoski OP Koti Sisä-Suomi Oy LKV Torikatu 2, ÄÄNEKOSKI
010 256 6513 Katso puheluhinnat
opkoti.keski-suomi.aanekoski@op.fi
Huomaathan, että OP Kodin kohdeilmoituksessa ei ole kaikkia tietoja kohteesta.
Varmista tiedot kohteen virallisesta myyntiesitteestä.