Koivistonluodontie 53, Koivistonluoto, Pori
Funkkistalo ja hyvä halli
Erinomaiset tilat autoharrastajalle tai muuta varasto/harrastetilaa tarvitsevalle. Hallirakennuksessa on useita varastotiloja, joista osa eristettyjä. Vanhemmassa osassa varastotilojen lisäksi autotalli kahdelle autolle, toisessa rasvamonttu.
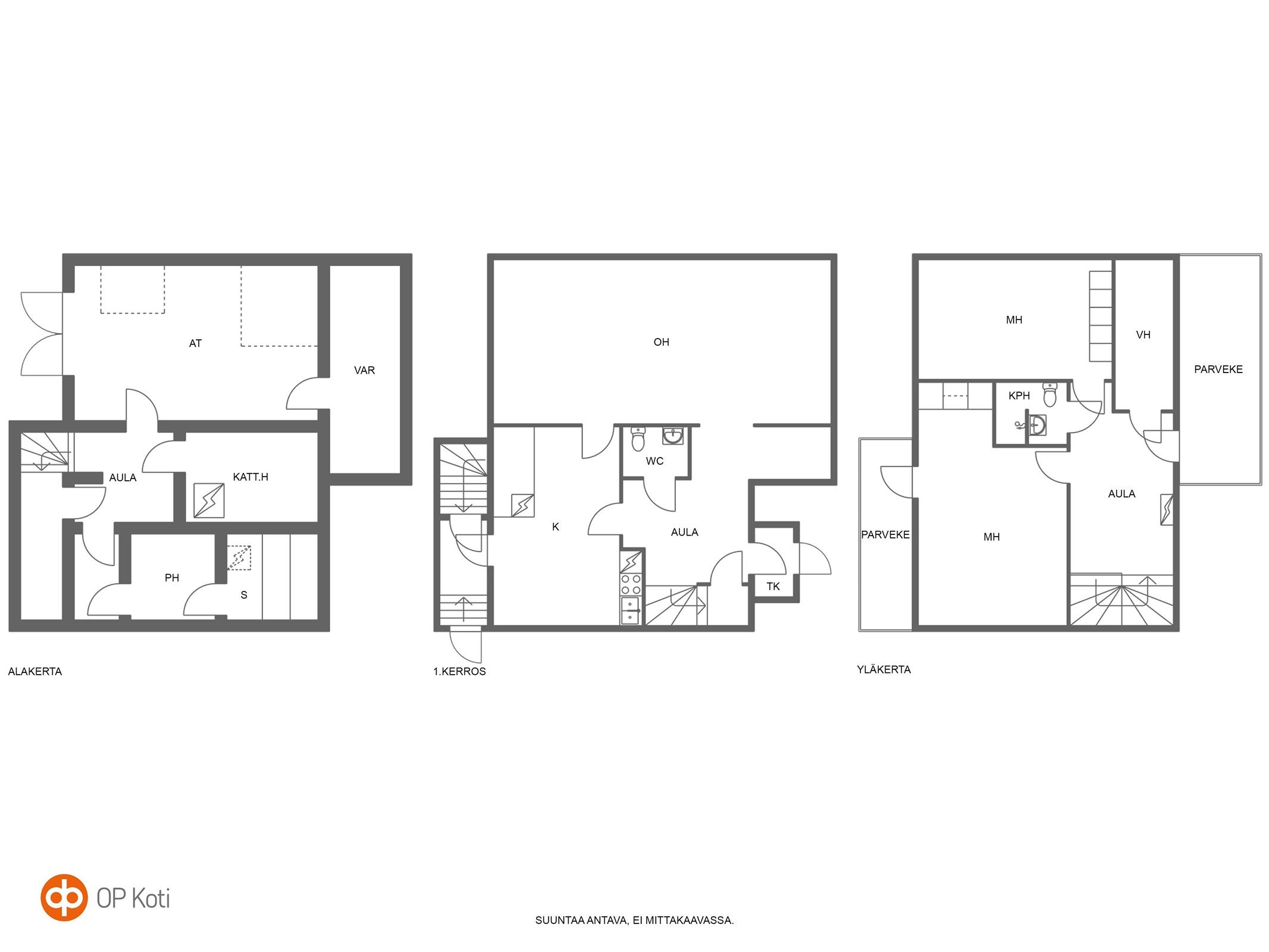
Asuinrakennus on uniikki funkkistalo 1930-1940-luvulta. Sisääntulokerroksessa avara olohuone ja keittiö, jossa todella paljon kaappitilaa. Yläkerrassa kaksi makuuhuonetta, kylpyhuone ja tilava vaatehuone. Kellarikerroksessa saunatilat ja varastotilaa.
Lämmityksestä huolehtivat kaksi ilmalämpöpumppua, joiden apuna kovemmilla pakkasilla on öljylämmitys. Rakennus on kuntotarkastettu ja seuraavan peruskorjauksen tarve on selkeä.
Hyvä sijainti suositulla Koivistonluodon alueella.
Tervetuloa tutustumaan, varaa esittelyaika: Eija Rousku 040 585 6015 eija.rousku@op.fi
Ota yhteyttä välittäjään
Lähettämällä viestin hyväksyt palvelun ehdot.
Kohteen tiedot
Perustiedot
- Kohdenumero
- 613098
- Kohdetyyppi
- Omakotitalo
- Osoite
- Koivistonluodontie 53, 28330 PORI
- Omistusmuoto
- Omistus
- Huoneluku
- 3
- Huoneet
- Oh, k, aula, wc, et, 2.krs: 2mh, vh, aula, kph/wc
- Asuinpinta-ala
- 135 m2Toimeksiantajan käsitys pinta-alasta n.135 m2 yläkerta ja 1.krs, kellari n.68m2
- Kokonaispinta-ala
- 203 m2
- Muu ala
- 68 m2kellarikrs: 2var, ph, s, pukuh, tekninen tila, öljysäiliötilat
- Käyttöönottovuosi
- 1943
- Kerros
- Sauna
- Kyllä
- Vapautuminen
- 2-3 kk kaupanteosta tai sopimuksen mukaan
Hintatiedot
Hinta
- Velaton hinta
- 139 000,00 €
- Myyntihinta
- 139 000,00 €
- Lainaosuus
- 0,00 €
Muut maksut
Lämmitys: n.1000-1500l/v. Sähkö: sisältää myös talousrakennuksen sähkön 6791 kWh/v. Vesi ja jätevesi: Käytön ja Pori Veden hinnaston mukaan. Puhtaanapito: Ekomaksu, jätemaksut Veikko Lehti hinnasto. . Esitetyt asumiskustannukset perustuvat nykykäyttöön (1hlö) ja voivat siten olla pienempiä tai suurempia, riippuen asukasmäärästä, asumistottumuksista sekä palveluntarjoajasta. Sähkön kokonaiskulutus v.2025 talo 4925 kWh, talousrakennus (erillinen mittari) 1866 kWh.
Osuuspankin lainalaskuri
Lainasi kuukausierä olisi 586 € kuukaudessa
Varustus
- Keittiö
- Jääkaappipakastin 2 kpl, toinen kellarissa, sähköliesi, liesituuletin hormiin, astianpesukone, kaapistot, kiinteät valaisimet. Arkkupakastin
- Pesutilat
- Sauna, sähkökiuas, kylpyhuone pesuhuone kellarissa, kylpyhuone yläkerrassa, erillinen wc, suihku kellari ja yläkerta, peilikaappi kph, allaskaappi, pesukoneliitäntä kellarin aulassa, kiinteät valaisimet.
- Säilytystilat
- Vaatehuone, kellari, ulkovarasto
Materiaalit
Keittiö: muovimatto. Olohuone: parketti. Makuuhuone 1: parketti. Makuuhuone 2: parketti. Sauna: laatta / puupaneeli. Kylpyhuone: laatta / laatta. Wc: muovimatto.
Rakennuksen tiedot
- Rakennusmateriaali
- Puu
- Kattotyyppi
- Pulpetti
- Kattomateriaali
- Huopa
- Lämmitysjärjestelmä
- Öljy. 2 ilmalämpöpumppua. Öljysäiliön sijainti: kellari erillinen tila, liplast muovi, vanha metallisäiliö ei käytössä. Öljysäiliö tarkastettu: ei. Kattilan valmistusvuosi: 2005 kattila ja poltin.
- Lämmönjakojärjestelmä
- Vesikiertoinen patterilämmitys
- Ilmanvaihtojärjestelmä
- Painovoimainen
- Energialuokka
- Ei energiatodistusta
- Lisätietoa energiatodistuksesta
- Kohteella ei ole lain edellyttämää energiatodistusta ja sen vuoksi energialuokka ei ole tiedossa
Tehdyt korjaukset
1970-luvulla laajennus/muutos/korjaustöitä. Ei tarkempia tietoja.
Tontti ja kaavoitus
- Tontin pinta-ala
- 1 634 m2
- Omistus
- Oma
- Tie perille
- Kyllä
- Kaavoitus
- Asemakaava (sitova tonttijako), muutoslupa 156/76. Kaavamerkintä AO61: Omakotirakennusten korttelialue. Kullekin tontille saa rakentaa enintään 4,5 m korkean omakotirakennuksen, joka saa 750m2 ja sitä suuremmalla tontilla käsittää enintään kaksi asuntoa ja alle 750 m2 tontilla enintään yhden asunnon. Rakennukset on sijoitettava vähintään 4m päähän naapuritontin rajasta. Porin kaupunki 02 621 1100
- Rakennusoikeus
- 408 m2
- Lisätietoja maapohjasta
- Asemakaavan mukainen tehokkuusluku 0.25
Vesi ja viemäröinti
- Vesijohto
- Kyllä
- Käyttövesi
- Kunnan.
- Viemäri
- Kyllä
- Lisätietoa viemäristä
- 2 sakokaivoa joiden kautta kaupungin viemäriin
- Jätevesihuolto
- Kunnan, saostuskaivo.
Asuntolaina –
Avain unelmiesi kotiin
Tutustu OP:n asuntolainaanHanki kotisi
kokoinen vakuutus
Tutustu Pohjola KotivakuutukseenPohja

Kuvat



























Sijainti
Kohdetta välittää
Pori OP Koti Länsi-Suomi Oy Mikonkatu 4, PORI
010 25 70700 Katso puheluhinnat
opkoti.lansi-suomi@op.fi
Huomaathan, että OP Kodin kohdeilmoituksessa ei ole kaikkia tietoja kohteesta.
Varmista tiedot kohteen virallisesta myyntiesitteestä.