Ollilantie 16 A 2, Noormarkku, Pori
Rauhallisella paikalla, metsän reunassa sijaitsevan rivitaloyhtiön saunallinen toimivapohjainen kaksio. Noormarkun keskustan palveluihin ja Kankaan kouluun matkaa vain 1-2 km. Siistikuntoisessa, tilavassa huoneistossa on sekä terassi että piha-alue etelään. Asunnon yhteydessä on autokatos ja varasto. Sovi oma esittelysi
Ota yhteyttä välittäjään
Lähettämällä viestin hyväksyt palvelun ehdot.
Kohteen tiedot
Perustiedot
- Kohdenumero
- 612784
- Kohdetyyppi
- Rivitalo
- Osoite
- Ollilantie 16 A 2, 29600 NOORMARKKU
- Omistusmuoto
- Omistus
- Huoneluku
- 2
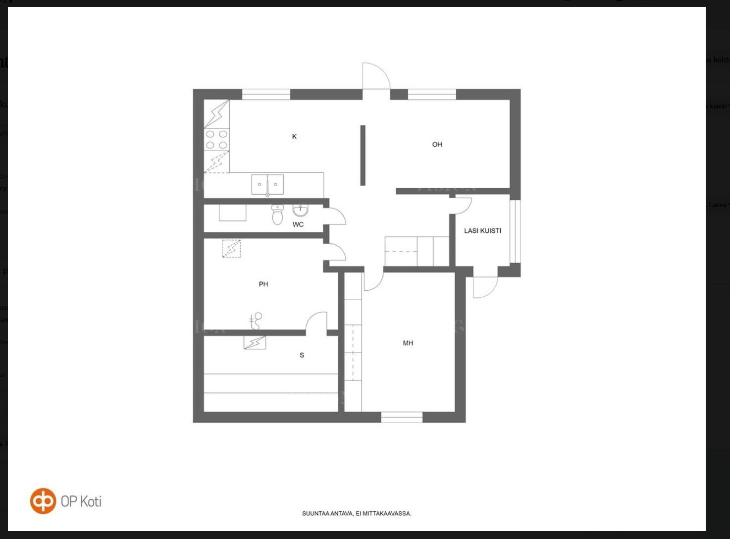
- Huoneet
- 2h + k + s + varasto ja autokatos
- Asuinpinta-ala
- 65 m2
- Kokonaispinta-ala
- 65 m2
- Käyttöönottovuosi
- 1991
- Yleiskunto
- Tyydyttävä
- Kerros
- 1/1
- Hissi
- Ei
- Sauna
- Kyllä
- Parveke
- Ei
- Vapautuminen
- Heti
Hintatiedot
Hinta
- Velaton hinta
- 68 000,00 €
- Myyntihinta
- 57 154,14 €
- Lainaosuus
- 10 845,86 €
- Neliöhinta
- 1 046,15 €/m²
Kohde on yhtiölainoitettu - lainaosuus 10 845,86 €
Taloyhtiölainasta on vastuussa jokainen osakas. Jos lainaa koskevia pääomavastikkeita ei saada joidenkin asuntojen osalta muutoin perittyä, maksuvelvollisuus voi langeta viime kädessä muille osakkaille.
Vastikkeet
- Hoitovastike
- 182,00 €/kk
- Rahoitusvastike
- 27,14 €/kk
- Yhtiövastike yhteensä
- 209,14 €/kk
Muut maksut
Rahoitusvastike kattolainaan. Ikkunoiden ja ovien maksaminen alkaa myöhemmin 2026. Vesimaksuennakko 12 €/hlö
Osuuspankin lainalaskuri
Lainasi kuukausierä olisi 287 € kuukaudessa
Varustus
- Keittiö
- Jääkaappipakastin, keraaminen liesi, liesituuletin, astianpesukone, kaapistot, kiinteät valaisimet.
- Pesutilat
- Sauna, sähkökiuas, kylpyhuone, erillinen wc, suihku, peilikaappi, allaskaappi, pesukoneliitäntä, lattialämmitys, kiinteät valaisimet.
Materiaalit
Keittiö: Parketti. Olohuone: Parketti. Makuuhuone 1: Parketti. Sauna: Laatta, paneeli. Kylpyhuone: Laatta. Eteinen: Laatta. Wc: Laatat maalattu.
Taloyhtiö
- Taloyhtiön nimi
- Asunto Oy Noormarkun Ollilanpuisto
- Isännöitsijä
- Maarit Kovamäki 0442354186 mkovamaki@gmail.com
- Kiinteistönhuolto
- Huoltoyhtiö
- Asuinhuoneistoja
- 19
- Taloyhtiössä on
- Yhteisantennijärjestelmä, mahdollisuus autopaikkaan
Rakennuksen tiedot
- Rakennusmateriaali
- Muu
- Kattotyyppi
- Harja
- Kattomateriaali
- Pelti. Uusittu 2016. Yläpohjan lisäeriste 2020.
- Lämmitysjärjestelmä
- Sähkö. Sähköinen lattialämmitys kosteat tilat.
- Lämmönjakojärjestelmä
- Sähköpatterilämmitys
- Ilmanvaihtojärjestelmä
- Koneellinen. Ilmastointikanavien nuohous tehty 2011
- Energialuokka
- Ei energiatodistusta
- Lisätietoa energiatodistuksesta
- Kohteella ei ole lain edellyttämää energiatodistusta ja sen vuoksi energialuokka ei ole tiedossa
Tehdyt korjaukset
Ilmastointikanavien nuohous 2011. Sadevesiviemärien korjaus 2013. Räystäskourujen korjaus 2014. Kattojen uusiminen 2016. Lukkojen sarjoitus 2016. Tontille tulevan tienpään korjaaminen 2017. Julkisivumaalaus 2018. Sokkelien kunnostus 2020. Aidan rakentaminen 2023. Lumiesteet 2024. Palovaroittimet 2025.
Suunnitellut korjaukset
Ikkunat ja terassiovet (rahoitus jo valmiina).
Tontti ja kaavoitus
- Tontin pinta-ala
- 10 153 m2
- Omistus
- Oma
- Kaavoitus
- Asemakaava.
Asuntolaina –
Avain unelmiesi kotiin
Tutustu OP:n asuntolainaanHanki kotisi
kokoinen vakuutus
Tutustu Pohjola KotivakuutukseenPohja

Kuvat














Sijainti
Kohdetta välittää
Pori OP Koti Länsi-Suomi Oy Mikonkatu 4, PORI
010 25 70700 Katso puheluhinnat
opkoti.lansi-suomi@op.fi
Huomaathan, että OP Kodin kohdeilmoituksessa ei ole kaikkia tietoja kohteesta.
Varmista tiedot kohteen virallisesta myyntiesitteestä.