Veneenveistäjänranta 17 B, Pateniemenranta, Oulu
Pantturipihan neljännen vaiheen kodit tarjoavat hienostuneen yhdistelmän käytännöllisyyttä, modernia designia ja luonnonläheisyyttä.
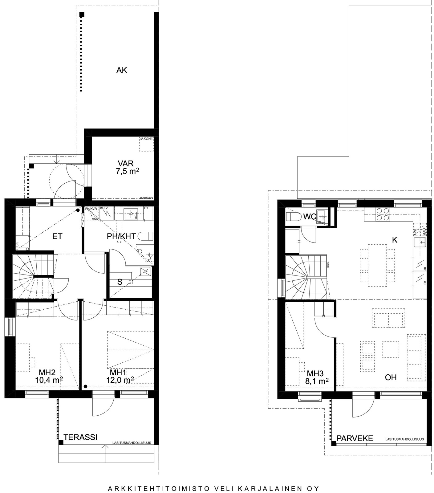
Taloyhtiö muodostuu kuudesta kaksikerroksisesta paritalosta, joiden huoneistokoot vaihtelevat 86-101 m² välillä. Jokainen asunto on suunniteltu huolellisesti, ja tilat on käytetty kekseliäästi, joten kaikki tuntuu avaralta ja toimivalta. Kaikissa kodeissa on sauna, terassi, lämmin varastotila sekä autokatos- ja pihapaikka. Autopaikan sähköistys on suunniteltu sähköauton latausta varten.
Pantturipihan asukkaille on tarjolla oma sadan neliön kuntosali taloyhtiön väestönsuojatiloissa. Upeat ulkoilumahdollisuudet alkavat lähes kotiovelta. Veneenveistäjänrannassa voi nauttia yli kilometrin pituisesta rantaviivasta, ja laajat puistoalueet tarjoavat virikkeitä kesästä talveen. Lapsille on leikkipuisto ja aikuisille ulkoliikuntapaikka. Kevyen liikenteen reitit mahdollistavat pyöräilyn ja lenkkeilyn, ja Pateniemen uimaranta tarjoaa erinomaiset puitteet kesäpäivien viettoon.
Kun teet varauksen nyt, saat mahdollisuuden vaikuttaa sisätilojen suunnitteluun ja pintamateriaaleihin. Arvioitu rakentamisen aloitus on keväällä 2026, ja uudet asukkaat voivat muuttaa maaliskuussa 2027.
Pantturipihassa yhdistyvät mukavuus ja moderni asuminen. Täältä löydät etsimäsi: käytännöllistä asumista luonnon keskellä.
Tervetuloa kotiin, joka kestää aikaa!
Huom! Kuvat ovat havainnekuvia tai valokuvia saman rakentajan vastaavasta kohteesta. Ota pian yhteyttä niin saat lisätietoja.
Ota yhteyttä välittäjään
Lähettämällä viestin hyväksyt palvelun ehdot.
Kohteen tiedot
Perustiedot
- Kohdenumero
- 612408
- Kohdetyyppi
- Paritalo
- Osoite
- Veneenveistäjänranta 17 B, 90800 OULU
- Omistusmuoto
- Omistus
- Huoneluku
- 4
- Huoneet
- 4h, k, s
- Asuinpinta-ala
- 91 m2
- Kokonaispinta-ala
- 98,5 m2
- Muu ala
- 7,5 m2Muihin tiloihin luetaan ulkovarasto.
- Käyttöönottovuosi
- 2027
- Yleiskunto
- Uusi
- Kerros
- 1-2/2
- Hissi
- Ei
- Sauna
- Kyllä
- Parveke
- On
- Ikkunat ja näköalat
- Lounaaseen.
- Vapautuminen
- Arvioitu valmistuminen 03/2027
Hintatiedot
Hinta
- Velaton hinta
- 314 000,00 €
- Myyntihinta
- 157 480,00 €
- Lainaosuus
- 156 520,00 €
- Neliöhinta
- 3 450,55 €/m²
- Valinnaisen vuokratontin lunastusosuus
- 33 033,00 €
Kohde on yhtiölainoitettu - lainaosuus 156 520,00 €
Taloyhtiölainasta on vastuussa jokainen osakas. Jos lainaa koskevia pääomavastikkeita ei saada joidenkin asuntojen osalta muutoin perittyä, maksuvelvollisuus voi langeta viime kädessä muille osakkaille.
Valinnainen vuokratontti
- Onko osuus lunastettu
- Ei
- Tontin vuokravastike
- 134,68 €/kk
- Vuokratontin lunastusosuus
- 33 033,00 €
Lisätietoa tontin lunastuksesta
Vuokravastike laskettu 01/2026 tason mukaisesti ja lunastushinta 11/2025 indeksin mukaisesti. Lunastus on mahdollinen kohteen valmistuttua ja sen jälkeen vuosittain toukokuussa.
Kohde sijaitsee valinnaisella vuokratontilla
Osakkaalla on oikeus lunastaa asunto-osakkeisiin kohdistuva tontin osuus taloyhtiölle.
Vastikkeet
- Hoitovastike
- 291,20 €/kk
- Rahoitusvastike
- 1 013,69 €/kk
- Yhtiövastike yhteensä
- 1 304,89 €/kk
Lisää tietoa vastikkeista
Vastikelaskelmassa laskennallinen korko 3,5 %.
Muut maksut
Vesiennakko 20 €/hlö/kk, tasaus kulutuksen mukaan.
Osuuspankin lainalaskuri
Lainasi kuukausierä olisi 1 324 € kuukaudessa
Varustus
- Keittiö
- Jääkaappi, pakastekaappi, erillisuuni, liesitaso (induktio), liesituuletin, mikroaaltouuni, astianpesukone, kaapistot.
- Pesutilat
- Sauna, sähkökiuas, kylpyhuone, erillinen wc, suihku, pesukoneliitäntä, lattialämmitys.
- Säilytystilat
- Lämmin ulkovarasto
Materiaalit
Kodinhoitohuone: lattiassa laatta, seinissä maali, puupaneelikatto. Sauna: lattiassa laatta, seinissä paneeli, puupaneelikatto. Kylpyhuone: lattiassa ja seinissä laatta, saunan vastainen seinä kokolasinen, puupaneelikatto. Eteinen: mahdollisuus laatoittaa osa lattiasta, seinissä maali, ruiskutasoitekatto. Wc: lattiassa laatta, seinissä maali, puupaneelikatto. Asuintilat: lattiassa laminaatti, seinissä maali, ruiskutasoitekatto. Portaat: Flotex-kokolattiamatto.
Taloyhtiö
- Taloyhtiön nimi
- As Oy Oulun Pantturipiha 9
- Isännöitsijä
- Ei vielä valittu
- Asuinhuoneistoja
- 12
- Autopaikat
- Autokatospaikkoja 12 kpl, sähköpistokepaikkoja 12 kpl
- Taloyhtiössä on
- Mahdollisuus autopaikkaan
Rakennuksen tiedot
- Rakennusmateriaali
- Muu. Puu- ja/tai betonirunko sekä puuverhous julkisivupiirustusten mukaisesti. Lämmöneristeenä mineraalivilla. Välipohjat ovat betonia.
- Kattotyyppi
- Harja
- Kattomateriaali
- Muu
- Lämmitysjärjestelmä
- Kaukolämpö
- Lämmönjakojärjestelmä
- Lattialämmitys vesi
- Ilmanvaihtojärjestelmä
- Kaikissa asunnoissa on lämmöntelteenotolla varustettu ilmanvaihtokone sijoitettuna ulkovarastoon.
- Energialuokka
- B 2018
Tontti ja kaavoitus
- Omistus
- Vuokrattu
- Tontin vuokra-aika
- Vuokrasopimus päättyy 31.12.2073
- Kaavoitus
- Asemakaava. Oulun kaupunki
Palvelut ja liikenneyhteydet
Palvelut: K-Market n. 1,2 km, S-Market, Lidl ja apteekki n. 1,5 km, tulevat Ritaportin kaupat n. 3,1 km, Ideapark ja Motonet n. 4,2 km, kirjasto n. 1 km. Koulut: Pateniemen alakoulu n. 1,6 km, Pateniemen yläkoulu n. 1 km. Päiväkoti: n. 600 m. Leikkipuisto n. 450 m, kuntoilupuisto n. 450 m, venesatama n. 450 m, uimaranta n. 500 m, Pateniemen urheilukeskus n. 1 km. Liikenneyhteydet: linja-auto n. 500 m
Asuntolaina –
Avain unelmiesi kotiin
Tutustu OP:n asuntolainaanHanki kotisi
kokoinen vakuutus
Tutustu Pohjola KotivakuutukseenPohja

Kuvat















Sijainti
Kohdetta välittää
Oulu OP Koti Pohjoinen Oy LKV Lekatie 6, OULU
010 253 5400 Katso puheluhinnat
opkoti.oulu@op.fi
Huomaathan, että OP Kodin kohdeilmoituksessa ei ole kaikkia tietoja kohteesta.
Varmista tiedot kohteen virallisesta myyntiesitteestä.