Sammonkatu 3 C, Keskusta, Äänekoski
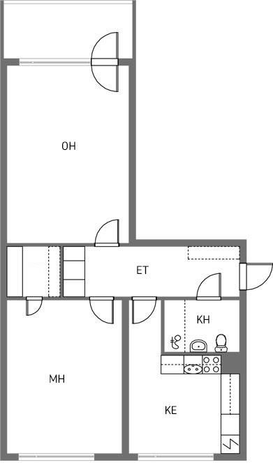
Kaunis, kauttaaltaan remontoitu, läpi talon sijoittuva huoneisto aivan keskustassa. Sijainti toisessa kerroksessa, lasitettu parveke, tilava vaatehuone ja autotallipaikka.
Ota yhteyttä välittäjään
Lähettämällä viestin hyväksyt palvelun ehdot.
Kohteen tiedot
Perustiedot
- Kohdenumero
- 611431
- Kohdetyyppi
- Kerrostalo
- Osoite
- Sammonkatu 3 C, 44100 ÄÄNEKOSKI
- Omistusmuoto
- Omistus
- Huoneluku
- 2
- Huoneet
- 2h, k, autotalli
- Asuinpinta-ala
- 62,5 m2
- Kokonaispinta-ala
- 62,5 m2
- Käyttöönottovuosi
- 1972
- Yleiskunto
- Hyvä
- Kerros
- 2/4
- Hissi
- Ei
- Sauna
- Ei
- Parveke
- On, lasitettu
- Ikkunat ja näköalat
- Sammonkadun suuntaan parveke ja olohuone, keittiö ja mh sisäpihalle
- Vapautuminen
- Sopimuksen mukaan
Hintatiedot
Hinta
- Velaton hinta
- 55 000,00 €
- Myyntihinta
- 48 480,62 €
- Lainaosuus
- 6 519,38 €
- Neliöhinta
- 880,00 €/m²
Kohde on yhtiölainoitettu - lainaosuus 6 519,38 €
Taloyhtiölainasta on vastuussa jokainen osakas. Jos lainaa koskevia pääomavastikkeita ei saada joidenkin asuntojen osalta muutoin perittyä, maksuvelvollisuus voi langeta viime kädessä muille osakkaille.
Vastikkeet
- Hoitovastike
- 275,10 €/kk
- Rahoitusvastike
- 129,69 €/kk
- Yhtiövastike yhteensä
- 404,79 €/kk
Muut maksut
Vesimaksuennakko 22 e / hlö / kk, tasaus kylmä vesi 6,64 e / m³, lämmin vesi 11,37 e / m³. Autotalli 7 e / kk.
Osuuspankin lainalaskuri
Lainasi kuukausierä olisi 232 € kuukaudessa
Varustus
- Keittiö
- Jääkaappipakastin, lattialiesi, liesituuletin, kaapistot, kiinteät valaisimet.
- Pesutilat
- Kylpyhuone remontoitu 2018 putkiremontin yhteydessä, suihku, peilikaappi, kaapit, pesukoneliitäntä, kiinteät valaisimet. Hananaulakot eivät kuulu kauppaan.
- Säilytystilat
- Vaatehuone, kellari, jäähdytetty kellari
Materiaalit
Keittiö: maalatut seinät, laminaattilattia. Olohuone: tapetit seinissä, laminaattilattia. Makuuhuone 1: tapetit seinissä, parkettilattia, pinnat uusittu 2021. Kylpyhuone: laatoitetut seinät, laatoitettu lattia. Eteinen: tapetoidut seinät, laminaattilattia, peiliovelliset kaapistot. Kenkäkaappi.
Taloyhtiö
- Taloyhtiön nimi
- Asunto-Oy Äänekosken Äänekorsu
- Isännöitsijä
- Sinikka Halminen
- Kiinteistönhuolto
- Huoltoyhtiö
- Asuinhuoneistoja
- 28
- Autopaikat
- Autotalleja tai hallipaikkoja 8 kpl, sähköpistokepaikkoja 8 kpl, piha-autopaikkoja 4 kpl
- Taloyhtiössä on
- Sauna, kuivaushuone, mankeli, jäähdytetty kellari, urheiluvälinevarasto, pyörävarasto, yhteisantennijärjestelmä, mahdollisuus autopaikkaan, kerhohuone, talopesulassa ei ole pyykinpesukonetta
Rakennuksen tiedot
- Rakennusmateriaali
- Betoni
- Kattotyyppi
- Harja
- Kattomateriaali
- Pelti
- Lämmitysjärjestelmä
- Kaukolämpö
- Lämmönjakojärjestelmä
- Vesikiertoinen patterilämmitys
- Ilmanvaihtojärjestelmä
- Koneellinen poisto
- Energialuokka
- E 2013
- Lisätietoa energiatodistuksesta
- Voimassa 29.12.2024 saakka. Energiatodistus uusitaan vuoden 2025 aikana.
Tehdyt korjaukset
Yhtiön rakennuksessa on aiemmin toteutettu seuraavat merkittävimmät kunnossapito- ja muutostyöt: 2024 Kaukolämpöventtiilin ja toimilaitteen uusinta (LVI Metso-Putki) 2024 Yläpohjan kulkusilta, viemärituuletusputkien ja IV-pellin kannen päivitykset (Viken Pelti) 2024 Kylmävaraston kylmälaitteiston purku (MV-Jäähdytys) 2024 Kuivaushuoneen uusi lämpöpuhallin (Sähkö Niskanen) 2023 ulko-ovien uusinta 2023 talon päädyn auton lämmityskoteloiden uusinta. 2023 kylmäkellarin kylmäkoneiden huolto. 2022 IV-puhaltimen uusinta. 2021 Vesikaton uusinta ja yläpohjan lämmöneristeen uusinta. 2021 IV-kanavien puhdistus ja säätö. 2019 Saunaosaston remontti, valm. 2020. 2019 Parvekeovien tiivistys ja ikkunoiden suodattimien vaihto. 2018 Asuntojen kylpyhuoneremontteja. 2017 Asuntojen kylpyhuoneremontteja. 2015 Pohjavesiviemärin saneeraus ja käyttövesiputkiston uusiminen ja asuntokohtaiset vesimittarit. 2012 Kuntoarvio. 2011 Lämmönjakokeskus uusittu. 2010 Ilmastointikanavien puhdistus ja säätö. 2010 Parvekkeiden kunnostus. 2008 Ilmastointimoottori uusittu ullakolle, peltikaton vesikourut ja rännit uusittu. 2006 Piha-alueen sadevesijärjestelmien asennus. 2006 Kylmähuoneen ja kuivaushuoneen koneistot uusittu. 2005 Taloyhtiön saunan löylyhuoneen korjaus, pihan nurmialueita kunnostettu. 2005 Autojen lämmitystolppia lisätty 4 kpl. 2004 Ikkunaremontti. 2003 Sokkeli maalattu. 2002 Jätekatos ja tontin raja-aita rakennettu. 1996 Julkisivuja korjattu. 1993 Pohjaviemärin kuvaus. 1985 Kaukolämpöön siirtyminen.. Asunnon remontit: 2010 huoneisto pintaremontoitu kokonaan, katot, seinät ja lattiat pinnoitettu. Eteisen- ja keittiön kaappien ovet on uusittu, jää-pakastikaappi uusittu, keittiön työtasot ja tiskiallas uusittu. Parvekelasit uusittu 2016. Kylpyhuone remontoitu 2018 putkiremontin yhteydessä taloyhtiön toimesta. Katon vaihtamisen yhteydessä makuuhuoneen seinää on kuivatettu ja korjattu.
Tontti ja kaavoitus
- Tontin pinta-ala
- 2 405 m2
- Omistus
- Vuokrattu
- Vuokralleantaja
- Äänekosken kaupunki
- Tontin vuokra-aika
- Vuokrasopimus päättyy 31.8.2072
- Kaavoitus
- Asemakaava.
Palvelut ja liikenneyhteydet
Palvelut: Kohde on Äänekosken keskustassa. Ruokakauppa Citymarket jossa myös Postin palvelupiste 300 m, kirjasto 500 m, terveysasema 1 km. Koulut: Koulunmäen koulu 550 m. Päiväkoti: Mikonpuiston päiväkoti 400 m.
Lisätiedot
Huoneistoon kuuluu autotalli, jossa ei ole väliseiniä. Asfaltoitu maapohja.
Asuntolaina –
Avain unelmiesi kotiin
Tutustu OP:n asuntolainaanHanki kotisi
kokoinen vakuutus
Tutustu Pohjola KotivakuutukseenPohja

Kuvat















Sijainti
Kohdetta välittää
Äänekoski OP Koti Sisä-Suomi Oy LKV Torikatu 2, ÄÄNEKOSKI
010 256 6513 Katso puheluhinnat
opkoti.keski-suomi.aanekoski@op.fi
Huomaathan, että OP Kodin kohdeilmoituksessa ei ole kaikkia tietoja kohteesta.
Varmista tiedot kohteen virallisesta myyntiesitteestä.