Taulumäentie 55 C, Taulumäki, Jyväskylä
RAKENTAMINEN JA KAUPANTEKO ALKAA
Uusia upeita koteja Tuomiojärven rantaan!
Yksi kaupungin halutuimmista asuinalueista saa jatkoa uudella As Oy Jyväskylän Kivelänrannan Loisteella, joka rakentuu osana talokokonaisuuden toista vaihetta, upealle paikalle aivan Tuomijärven rantamaisemiin. Loisteen asunnot ovat suunniteltu juuri tälle paikalle siten, että lähes kaikkien huoneistojen suurista ikkunoista, lasiliukuovista ja tilavista maisemaparvekkeista on näkymät Tuomiojärvelle. Lisäksi alimman kerroksen huoneistot saavat viihtyisän terassialueen sekä asuntopihan.
Omalle tontille rakentuva Loiste pitää sisällään yhteensä 34 asuinhuoneistoa ja erillisinä osakkeina myytäviä pihapaikkoja ja katospaikkoja autoille. Lämmitysmuotona on kaukolämpö vesikiertoisella lattialämmityksellä. Ilmanvaihto tapahtuu huoneistokohtaisilla ilmanvaihtokoneilla ja taloyhtiöön liitetään kaapeli-tv ja kuituyhteys. Taloyhtiön energiatehokkuutta on parantamassa katolle asennettavat aurinkopaneelit.
Kivelänranta on poikkeuksellisen hyvä sijainti monenlaiselle asukkaalle, kotiovelta on kävelymatka kaupungin keskustaan, uimarannalle ja lenkkipoluille. Bussipysäkki löytyy kodin edustalta ja liikenneyhteydet ovat monipuoliset useampaan suutaan. Parin kilometrin säteellä löytyy lähikaupat sekä kauppakeskukset.
Asuntovalokuvat ovat malliasuntoja naapuritaloyhtiö Aavan asunnoista.
Rakentamisen arvioitu aikataulu 4/2026 - 4/2027.
Kivelänranan Loisteen asunnot myy OP Koti, toimi nopeasti ja kysy lisää välittäjiltämme.
Ota yhteyttä välittäjään
Lähettämällä viestin hyväksyt palvelun ehdot.
Kohteen tiedot
Perustiedot
- Kohdenumero
- 611341
- Kohdetyyppi
- Kerrostalo
- Osoite
- Taulumäentie 55 C, 40200 JYVÄSKYLÄ
- Omistusmuoto
- Omistus
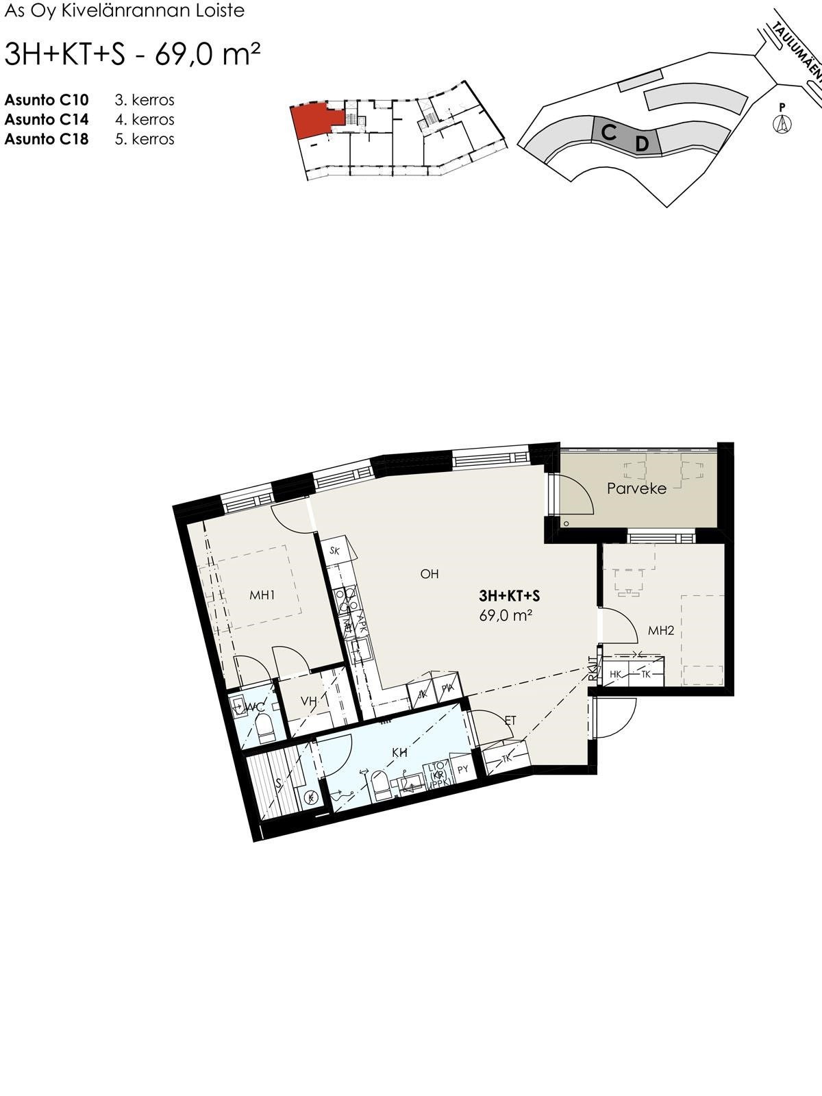
- Huoneluku
- 3
- Huoneet
- 3h + kt + s
- Asuinpinta-ala
- 69 m2
- Kokonaispinta-ala
- 69 m2
- Käyttöönottovuosi
- 2027
- Yleiskunto
- Uusi
- Kerros
- 4/5
- Hissi
- Kyllä
- Sauna
- Kyllä
- Parveke
- On, lasitettu
- Vapautuminen
- Arvioitu valmistuminen keväällä 2027
Hintatiedot
Hinta
- Velaton hinta
- 259 000,00 €
- Myyntihinta
- 76 795,90 €
- Lainaosuus
- 182 204,10 €
- Neliöhinta
- 3 753,62 €/m²
Kohde on yhtiölainoitettu - lainaosuus 182 204,10 €
Taloyhtiölainasta on vastuussa jokainen osakas. Jos lainaa koskevia pääomavastikkeita ei saada joidenkin asuntojen osalta muutoin perittyä, maksuvelvollisuus voi langeta viime kädessä muille osakkaille.
Lisätietoa lainaosuudesta
Taloytiön laina-aika 25 vuotta, josta rakennusaika ja ensimmäinen asumisvuosi ovat lyhennysvapaata. Korko 12 kk euribor + marginaali 0,75 % (yht. 2,998 %). Laina on tasalyhenteinen. Yhtiölainaosuuden voi maksaa kuluitta pois kohteen valmistumisen yhteydessä. HUOM! Korkotason/viitekoron muuttuessa myös pääomavastike koron osalta muuttuu.
Vastikkeet 01.06.2027 - 31.05.2028
- Hoitovastike
- 269,10 €/kk
- Rahoitusvastike
- 461,53 €/kk
- Yhtiövastike yhteensä
- 730,63 €/kk
Vastikkeet
- Hoitovastike
- 269,10 €/kk
- Rahoitusvastike
- 1 121,69 €/kk
- Yhtiövastike yhteensä
- 1 390,79 €/kk
Lisää tietoa vastikkeista
Hoito- ja rahoitusvastikkeen määräytymisperusteena on huoneiston neliömäärä.
Muut maksut
- Vesimaksu
- 30,00 €/kk/henkilö
Vesimaksu 30,00 €/hlö/kk. Rahoitusvastikearvio lyhennysvapaan aikana on 461,53 €/kk (sis. vain koron osuuden). Rahoitusvastikearvio lyhennysvapaan jälkeen on 1 121,69 €/kk (sis. koron ja lyhennyksen). Vesimaksuennakko 30 €/hlö/kk, tasauslaskutus kulutuksen mukaan. Autopaikat myydään erillisinä osakkeina. Piha-autopaikka 4 900 €, hoitovastikearvio 14,63 €/kk. Autokatospaikka 11 500 €, hoitovastikearvio 24,38 €/kk.
Osuuspankin lainalaskuri
Lainasi kuukausierä olisi 1 092 € kuukaudessa
Varustus
- Keittiö
- Keittiöissä on jääkaappipakastin tai erilliset jää- ja pakastinkaappi piirustusten mukaan. Lisäksi erillisuuni, induktioliesi ja liesikupu. Astianpesukone ja mikro ovat kalusteisiin integroituja. Työpöytätasot ovat laminaattipintaisia, joissa on komposiittialtaat. Keittiöiden kalustovälit ovat kalustevälilaminaattia tai laattaa.
- Pesutilat
- Wc-tilojen, saunojen ja pesuhuoneiden lattiat laatoitetaan. Seinäpinnoista laatoitetaan kylpyhuoneiden seinät kokonaan, altaiden taustaseinät wc-tiloista. Saunan seinät, katto ja lauteet ovat tervaleppää. Saunaan asennetaan sähkökiuas esim. Harvia Cilindro erillisellä ohjauspaneelilla. Pesuhuoneissa on liitännät pyykinpesukoneelle ja kuivausrummulle. Pesuhuoneissa on allas- ja peilikaappi tai peili valaisimella.
- Säilytystilat
- Vaatehuone
Materiaalit
Makuuhuoneissa, keittiössä, olohuoneessa, eteisessä ja vaatehuoneissa lattiapinnoite on lautaparketti tai vinyyli, jalkalistat sävytetty mäntylista. Seinät ovat maalattuja. Eteisen komeroissa ja päämakuuhuoneessa on liukuovet.
Taloyhtiö
- Taloyhtiön nimi
- Asunto Oy Kivelänrannan Loiste, Jyväskylä
- Kiinteistönhuolto
- Huoltoyhtiö
- Asuinhuoneistoja
- 34
- Autopaikat
- Autokatospaikkoja 19 kpl, sähköpistokepaikkoja 16 kpl
- Taloyhtiössä on
- Urheiluvälinevarasto, lastenvaunuvarasto, väestösuoja, kaapeli-TV, tietoliikenneyhteys, huoneistokohtaiset irtainvarastot
Rakennuksen tiedot
- Rakennusmateriaali
- Betoni. Ulkoseinät ovat pääosin betonielementtejä. Ulkoverhouksena on tiilimuuraus ja parveketaustat puuverhoiltuja.
- Kattotyyppi
- Tasa
- Kattomateriaali
- Muu
- Lämmitysjärjestelmä
- Kaukolämpö
- Lämmönjakojärjestelmä
- Lattialämmitys vesi
- Ilmanvaihtojärjestelmä
- Koneellinen tulo- ja postoilmanvaihto huoneistokohtaisella ilmanvaihtokoneella (ilman jäähdytystä).
- Energialuokka
- A 2018
Tontti ja kaavoitus
- Kaavoitus
- Asemakaava. Jyväskylän kaupunki, rakennusvalvonta
Palvelut ja liikenneyhteydet
Palvelut: Palokankeskus n. 3,5 km. Seppälä n. 2 km. Jyväskylän keskusta n. 1,8 km. Liikenneyhteydet: Linja-autopysäkki 100 m.
Asuntolaina –
Avain unelmiesi kotiin
Tutustu OP:n asuntolainaanHanki kotisi
kokoinen vakuutus
Tutustu Pohjola KotivakuutukseenPohja

Kuvat














Sijainti
Kohdetta välittää
Jyväskylä OP Koti Sisä-Suomi Oy LKV Kauppakatu 22, JYVÄSKYLÄ
010 256 5950 Katso puheluhinnat
opkoti.keski-suomi@op.fi
Huomaathan, että OP Kodin kohdeilmoituksessa ei ole kaikkia tietoja kohteesta.
Varmista tiedot kohteen virallisesta myyntiesitteestä.