Suuruspääntie 11 C, Suuruspää, Jyväskylä
Suuruspään uusin kerrostalo Jyväsjärven Loiste!
Seitsemän asuinkerroksen Loiste on moderni, parhaaseen energialuokkaan kuuluva kiinteistö. Ulkopuolelta katse kiinnittyy viistettyyn kattomuotoon, tiilijulkisivuun ja parvekkeiden pitsimuurauksiin. Koteihin auringonsäteet tulvivat korkeiden parvekelasitusten ja isojen ikkunoiden läpi. Luonnonvalo ihastuttaa myös tilavissa porraskäytävissä.
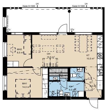
Loisteen asuntovalikoima on monipuolinen ja tarjoaa ratkaisuja niin pientä kaupunkikotia tai sijoitusasuntoa etsivälle sekä omaa kotipesää suunnittelevalle perheelle. Kolmiovaihtoehtoja ovat 54,5, 67,5 ja 69 neliöiset asunnot, joista myöskin kaksi pienempää sijaitsee järven puolelle. Isompaa kotia etsivälle löytyy 88,5 neliöinen neliö, joka sijaitsee myös järven puolella. Yhtiön autopaikat sijaitsevat ensimmäisen kerroksen yhteydessä olevassa pysäköintihallissa, jossa on 16 osakehallintaan myytävää autopaikkaa.
Taloyhtiön pihamaalla voit nauttia maisemien lisäksi hirrestä rakennetun rantasaunan löylyistä sekä yhteisen kasvihuoneen ja marjapensaiden antimista. Upealla viherkatolla varustettu sauna tarjoaa täydelliset puitteet rentoutumiseen. Saunan yhteydessä on tupakeittiö, terassi ja pieni hiekkaranta. Ajattele auringon täyttämiä kesäpäiviä, leppoisia hirsisaunan löylyjä ja pulahduksia viilentävään Jyväsjärveen.
Olipa tarpeesi sitten päästä nopeasti kaupunkiin, moottoritielle, lähikauppaan, bussipysäkille, lenkkipolulle, ulkokuntosalille tai leikkipuistoon niin kaikki nämä löytyvät todella lyhyen matkan päässä kotiovelta. Esimerkiksi bussipysäkille on matkaa vain muutama sata metriä ja rantaraitti löytyy heti talon nurkalta.
Ota yhteyttä välittäjään
Lähettämällä viestin hyväksyt palvelun ehdot.
Kohteen tiedot
Perustiedot
- Kohdenumero
- 611080
- Kohdetyyppi
- Kerrostalo
- Osoite
- Suuruspääntie 11 C, 40520 JYVÄSKYLÄ
- Omistusmuoto
- Omistus
- Huoneluku
- 3
- Huoneet
- 3h, kt, s
- Asuinpinta-ala
- 67,5 m2
- Kokonaispinta-ala
- 67,5 m2
- Käyttöönottovuosi
- 2023
- Yleiskunto
- Uusi
- Kerros
- 7/8
- Hissi
- Kyllä
- Sauna
- Kyllä
- Parveke
- On, lasitettu
- Vapautuminen
- Heti
Hintatiedot
Hinta
- Velaton hinta
- 372 900,00 €
- Myyntihinta
- 100 852,00 €
- Lainaosuus
- 272 048,00 €
- Neliöhinta
- 5 524,44 €/m²
Kohde on yhtiölainoitettu - lainaosuus 272 048,00 €
Taloyhtiölainasta on vastuussa jokainen osakas. Jos lainaa koskevia pääomavastikkeita ei saada joidenkin asuntojen osalta muutoin perittyä, maksuvelvollisuus voi langeta viime kädessä muille osakkaille.
Lisätietoa lainaosuudesta
Yhtiölainan takaisinmaksuaika on 25 vuotta, joista kolme ensimmäistä ovat lyhennysvapaata. Yhtiölainan korko on sidottu 12 kk euriboriin ja 0,9% marginaaliin. Kokonaiskorko 4,579 %. Seuraava tarkistaminen 17.5.2025. Lainan ensimmäinen lyhennys on marraskuussa 2026. Näin ollen lyhennysosuutta aloitetaan keräämään toukokuussa 2026. Huhtikuun 2026 asti maksetaan pääomavastiketta ainoastaan koron osalta. Koron muutos vaikuttaa pääomavastikkeen suuruuteen. Pääomavastiketta peritään, jos et maksa pois asuntokohtaista osuutta taloyhtiölainasta. Taloyhtiölainasta on vastuussa jokainen osakas. Jos lainaa koskevia pääomavastikkeita ei saada joidenkin asuntojen osalta muutoin perittyä, maksuvelvollisuus voi langeta viime kädessä muille osakkaille.
Vastikkeet
- Hoitovastike
- 222,75 €/kk
- Rahoitusvastike
- 2 069,76 €/kk
- Yhtiövastike yhteensä
- 2 292,51 €/kk
Muut maksut
- Vesimaksu
- 20,00 €/kk/henkilö
Rahoitusvastike: korko 1.038,80€/kk, jota maksetaan lyhennysvapaan aikana. Lyhennys ja korko 2.069,76€/kk, jota maksetaan lyhennysvapaan jälkeen. Vastikkeet yhteensä: Lyhennysvapaan aikana 1.261,55 €/kk. Lyhennysvapaan jälkeen 2.292,51 €/kk. Laajakaista- ja kaapeli-TV 1€/as/kk.
Osuuspankin lainalaskuri
Lainasi kuukausierä olisi 1 572 € kuukaudessa
Varustus
- Keittiö
- Jääkaappipakastin, erillisuuni, induktioliesi, astianpesukone.
- Pesutilat
- Sauna, sähkökiuas, peilikaappi, allaskaappi, pesukoneliitäntä, lattialämmitys.
Materiaalit
Keittiö: Lattiassa lautaparketti, seinät maalataan. Sauna: lattiassa lautaparketti, seinät tervaleppäpaneelia. Kylpyhuone: lattia ja seinät laatoitetaan. Asuinhuoneet: lattiassa lautaparketti, seinät maalataan.
Taloyhtiö
- Taloyhtiön nimi
- Asunto Oy Jyväsjärven Loiste
- Kiinteistönhuolto
- Huoltoyhtiö
- Asuinhuoneistoja
- 38
- Autopaikat
- Autotalleja tai hallipaikkoja 16 kpl, autokatospaikkoja , sähköpistokepaikkoja , piha-autopaikkoja
- Taloyhtiössä on
- Sauna, uima-allas, talopesula, kuivaushuone, mankeli, jäähdytetty kellari, vinttikomerot, kellarikomerot, urheiluvälinevarasto, lastenvaunuvarasto, pyörävarasto, askarteluhuone, väestösuoja, kaapeli-TV, satelliittiantenni, yhteisantennijärjestelmä, tietoliikenneyhteys, mahdollisuus autopaikkaan, irtaimistovarastot, ,
Rakennuksen tiedot
- Rakennusmateriaali
- Betoni
- Kattotyyppi
- Harja
- Kattomateriaali
- Pelti
- Lämmitysjärjestelmä
- Kaukolämpö
- Lämmönjakojärjestelmä
- Lattialämmitys vesi
- Ilmanvaihtojärjestelmä
- Ilmanvaihtojärjestelmänä on huoneistokohtainen, lämmöntalteenotolla varustettu, tulo- ja poistoilmanvaihto, jonka sähköenergia on kiinteistön mittauksessa.
- Energialuokka
- Ei energiatodistusta
- Lisätietoa energiatodistuksesta
- Kohteella ei ole lain edellyttämää energiatodistusta ja sen vuoksi energialuokka ei ole tiedossa
Tontti ja kaavoitus
- Kaavoitus
- Asemakaava. Jyväskylän Kaupunki
Palvelut ja liikenneyhteydet
Palvelut: Kuokkalan keskustan palvelut mm.terveyskeskus, kauppa, kirjasto n. 1km. Koulut: Kuokkalan yhtenäiskoulu n. 1,4 km., Yliopisto n. 2,8 km. Päiväkoti: Pohjanlammen päiväkoti n. 1,6 km. Kuokkalan Graniitti, urheilukeskus n.1,4 km. Liikenneyhteydet: Bussipysäkki n.300 m, linjat 4, 5, 5K, 18, 18K ja 22
Asuntolaina –
Avain unelmiesi kotiin
Tutustu OP:n asuntolainaanHanki kotisi
kokoinen vakuutus
Tutustu Pohjola KotivakuutukseenPohja

Kuvat





























Sijainti
Kohdetta välittää
Jyväskylä OP Koti Sisä-Suomi Oy LKV Kauppakatu 22, JYVÄSKYLÄ
010 256 5950 Katso puheluhinnat
opkoti.keski-suomi@op.fi
Huomaathan, että OP Kodin kohdeilmoituksessa ei ole kaikkia tietoja kohteesta.
Varmista tiedot kohteen virallisesta myyntiesitteestä.