Laukaantie 15, Keskusta, Laukaa
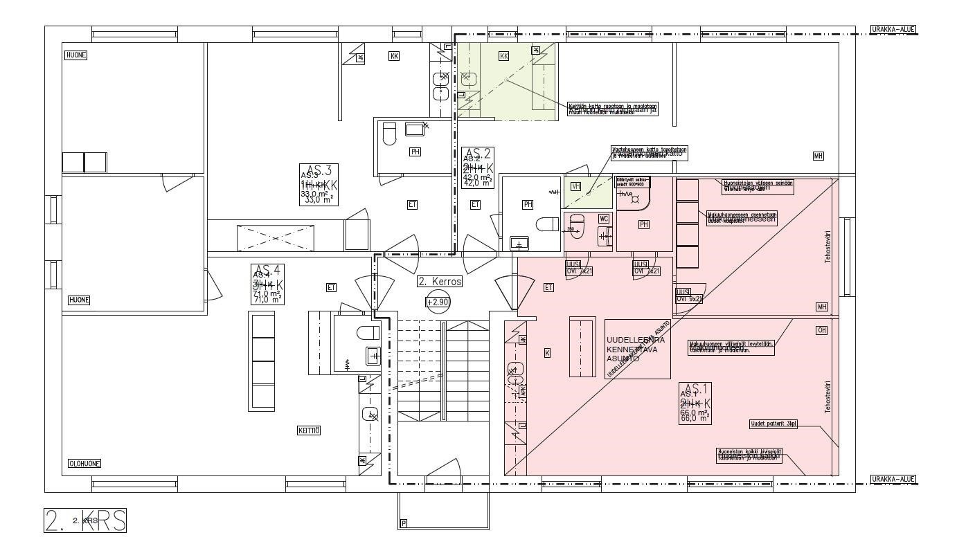
Laukaan keskustasta oma pienkerrostalo. Omalla 1200 m2 kaavatontilla v. 1959 rakennettu pienkerrostalo, jossa katutasossa kaksi liiketilaa, 2.kerroksessa neljä asuinhuoneistoa (1h,kk 32m2, 2h,kk 42m2, 2h,k 66m2 ja 3h,k 70 m2. Kellarikerroksessa saunatilat, varastotilaa ja myymälätila. Kaikki tilat vuokrattu, lukuunottamatta kellaritilaa. Rakennukseen on uusittu v. 2018 koko kattorakenne eristeineen ja kattotuoleineen, hybridilämmitys vesi-ilmalämpö, rinnalla öljy. Asunnoista 66 m2 asunto on remontoitu kattavasti, muut peruskuntoisia, mutta toimivia. Hyvätuottoinen kohde, pyydä tarkemmat tiedot. Sopii sijoittajalle erinomaisesti! Pyydä tarkemmat laskelmat.
Ota yhteyttä välittäjään
Lähettämällä viestin hyväksyt palvelun ehdot.
Kohteen tiedot
Perustiedot
- Kohdenumero
- 611000
- Kohdetyyppi
- Muu toimitila
- Osoite
- Laukaantie 15, 41340 LAUKAA
- Huoneet
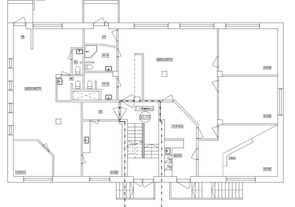
- 4 erill asuntoa, 2 liiketilaa, kell.tilat
- Kokonaispinta-ala
- 540 m2
- Vapautuminen
- vuokrattu
Hintatiedot
Hinta
- Velaton hinta
- 249 000,00 €
- Myyntihinta
- 249 000,00 €
- Lainaosuus
- 0,00 €
Muut maksut
kiinteistön vuosikulut ovat olleet n. 20.000-25.000 €/v, sisältäen sähkö, vesi, öljy, jätehuolto, kiinteistönhuolto, kiinteistövero, vakuutus, pienet korjaukset)
Osuuspankin lainalaskuri
Lainasi kuukausierä olisi 1 050 € kuukaudessa
Rakennuksen tiedot
- Energialuokka
- Ei energiatodistusta
- Lisätietoa energiatodistuksesta
- Kohteella ei ole lain edellyttämää energiatodistusta ja sen vuoksi energialuokka ei ole tiedossa
Tontti ja kaavoitus
- Tontin pinta-ala
- 1 200 m2
- Omistus
- Oma
- Kaavoitus
- asemakaava, kaavamerkintä ALK eli yhdistettyjen liike- ja asuntokerrostalojen korttelialue.
Lisätiedot
Tilajako: Katutasossa 2 liiketilaa; n. 145 m2 ja 90 m2. Toisessa kerroksessa neljä asuntoa: As1 2h,k 66m2, As2 2h,kk 42m2, As3 1h,k4 33m2, As4 3h,k 70 m2. Kellarikerroksessa saunatilat, varastotilat ja hyödynnettävissä oleva myymälätila. Kerrosalaksi on ilmoitettu n. 540m2 (ilman kellaria), ei tarkistusmitattu. Tehdyt remontit: v. 2017 ilma-vesilämpöpumppu asennettu (öljy rinnalla), varaaja uusittu, kattorakenteet uusittu kokonaan v. 2018 tulipalon jäljiltä, asuntojen pintoja uusittu (laajimmin asunto 1) Osittain sähkö- vesi ja viemäriremonttia.
Kuvat











Sijainti
Kohdetta välittää
Jyväskylä OP Koti Sisä-Suomi Oy LKV Kauppakatu 22, JYVÄSKYLÄ
010 256 5950 Katso puheluhinnat
opkoti.keski-suomi@op.fi
Huomaathan, että OP Kodin kohdeilmoituksessa ei ole kaikkia tietoja kohteesta.
Varmista tiedot kohteen virallisesta myyntiesitteestä.