Rimpiläntie 12, Kuusa, Laukaa
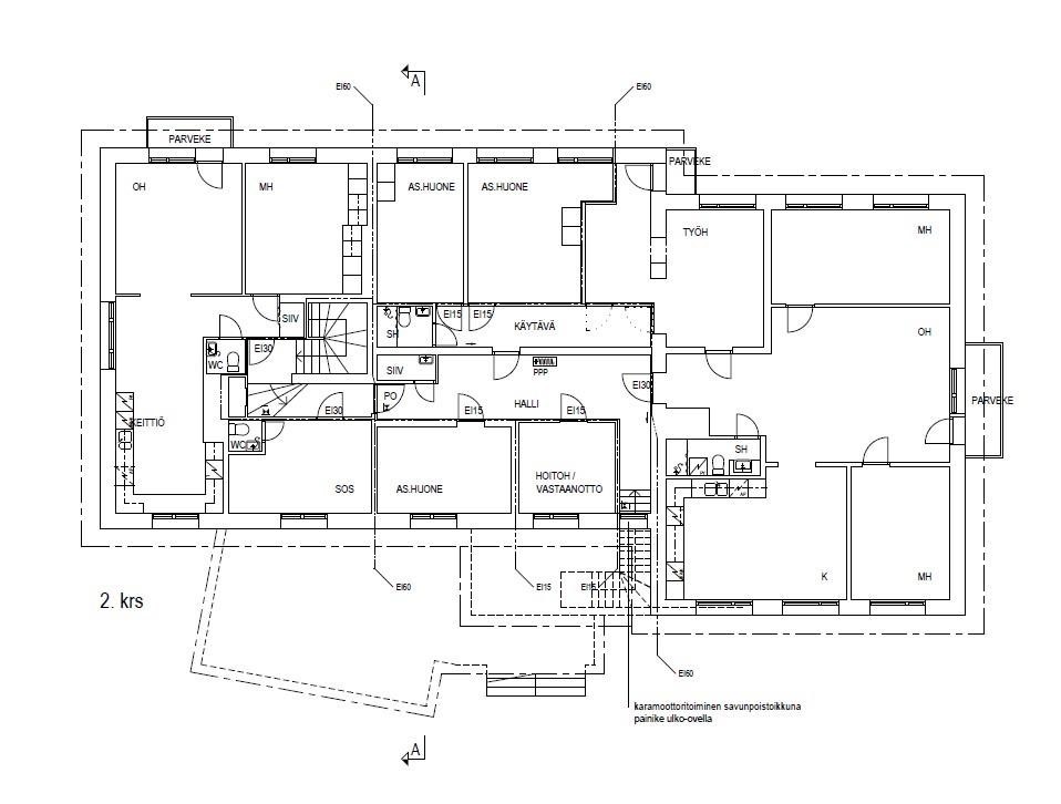
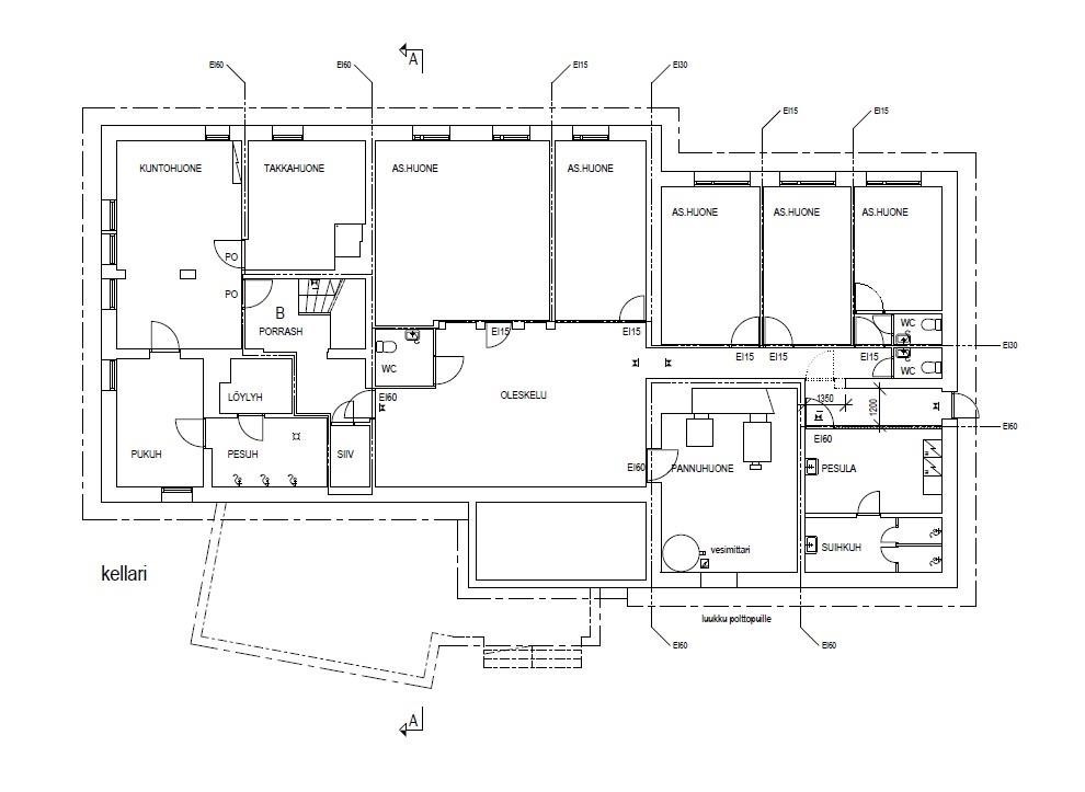
Laukaan Kuusaassa v. 1931 rakennettu entinen koulukiinteistö, joka muutettu nykyiseen käyttötarkoitukseensa hoitolarakennukseksi v. 2005. Tilat ovat kolmessa kerroksessa. Katutasossa oleskelutila, ruokailutila, tilava keittiö, aula sekä 7 asuinhuonetta, wc:t. Toisessa kerroksessa erillinen 2h,k ja 4h,k sekä oheistiloja. Kellarikerroksessa 5 asuinhuonetta, oleskeluhuone, kuntohuone, saunatilat ja pesutupa. Rakennuksessa on öljylämmitys. Tiloihin tehty sprinklausjärjestelmä. Oma hehtaarin tontti, jossa hedelmäpuita, nurmikkoa. Uimaranta myös kävelymatkan päässä. Kuntokartoitus löytyy vuodelta 2018. Rakennuksessa on ollut toimintaa kuluvan vuoden kevääseen saakka. Sovi esittely, niin katsotaan paikanpäällä.
Ota yhteyttä välittäjään
Lähettämällä viestin hyväksyt palvelun ehdot.
Kohteen tiedot
Perustiedot
- Kohdenumero
- 610989
- Kohdetyyppi
- Muu toimitila
- Osoite
- Rimpiläntie 12, 41370 KUUSA
- Huoneet
- ks erillinen tilakuvaus
- Kokonaispinta-ala
- 838 m2
- Vapautuminen
- Sopimuksen mukaan
Hintatiedot
Hinta
- Velaton hinta
- 75 000,00 €
- Myyntihinta
- 75 000,00 €
- Lainaosuus
- 0,00 €
Muut maksut
Öljyn vuosikulutus ollut v. 2024 n.17.000 litraa. Vesi ja viemäröinti Laukaan vesihuollon kautta Kiinteistövero n. 7100 €/v
Osuuspankin lainalaskuri
Lainasi kuukausierä olisi 316 € kuukaudessa
Rakennuksen tiedot
- Energialuokka
- Ei energiatodistusta
- Lisätietoa energiatodistuksesta
- Kohteella ei ole lain edellyttämää energiatodistusta ja sen vuoksi energialuokka ei ole tiedossa
Tontti ja kaavoitus
- Tontin pinta-ala
- 1 ha
- Omistus
- Oma
- Kaavoitus
- ei kaavaa
Kuvat



















Sijainti
Kohdetta välittää
Jyväskylä OP Koti Sisä-Suomi Oy LKV Kauppakatu 22, JYVÄSKYLÄ
010 256 5950 Katso puheluhinnat
opkoti.keski-suomi@op.fi
Huomaathan, että OP Kodin kohdeilmoituksessa ei ole kaikkia tietoja kohteesta.
Varmista tiedot kohteen virallisesta myyntiesitteestä.