Ratastie 10, Teollisuuskylä, Muurame
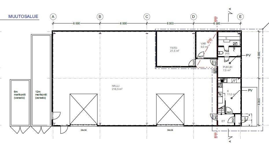
Muuramen teollisuuskylässä v. 1985 rakennettu siistikuntoinen ja ryhdikäs teollisuushalli. Rakennuksessa on yhtenäistä hallitilaa (halliin tehty myös erillinen neuvotteluhuone). Päädyssä katutasossa keittiö-/taukotila sekä saunatilat. Päätyyn, toiseen kerrokseen on tehty lisäksi kolme toimistohuonetta. Hyvä varustetaso; ilmalämpöpumppulämmitys hallitilassa, voimavirta, nosturi 0,5 tn, koneellinen iv, paineilmaverkosto. Oma asfaltoitu tontti, jossa rakennusoikeutta jäjellä runsaasti (käyttämättä n.850 kem2). Heti vapaa! Sovi esittely.
Ota yhteyttä välittäjään
Lähettämällä viestin hyväksyt palvelun ehdot.
Kohteen tiedot
Perustiedot
- Kohdenumero
- 610978
- Kohdetyyppi
- Tuotantotila
- Osoite
- Ratastie 10, 40950 MUURAME
- Huoneet
- hallitila, k, 3 tstoa, saunatilat, neuvotteluh
- Kokonaispinta-ala
- 320 m2
- Vapautuminen
- Heti
Hintatiedot
Hinta
- Velaton hinta
- 189 000,00 €
- Myyntihinta
- 189 000,00 €
- Lainaosuus
- 0,00 €
Muut maksut
Kiinteistövero 460 €/v, lämpöarvio n. 3000-4000 €/v. vakuutus n. 600 €.
Osuuspankin lainalaskuri
Lainasi kuukausierä olisi 797 € kuukaudessa
Rakennuksen tiedot
- Energialuokka
- Ei energiatodistusta
- Lisätietoa energiatodistuksesta
- Kohteelle ei lain mukaan tarvitse hankkia energiatodistusta
Tontti ja kaavoitus
- Tontin pinta-ala
- 2 528 m2
- Omistus
- Oma
- Kaavoitus
- asemakaava
Kuvat





























Sijainti
Kohdetta välittää
Jyväskylä OP Koti Sisä-Suomi Oy LKV Kauppakatu 22, JYVÄSKYLÄ
010 256 5950 Katso puheluhinnat
opkoti.keski-suomi@op.fi
Huomaathan, että OP Kodin kohdeilmoituksessa ei ole kaikkia tietoja kohteesta.
Varmista tiedot kohteen virallisesta myyntiesitteestä.