Teollisuuskatu 42, Laajalahti, Äänekoski
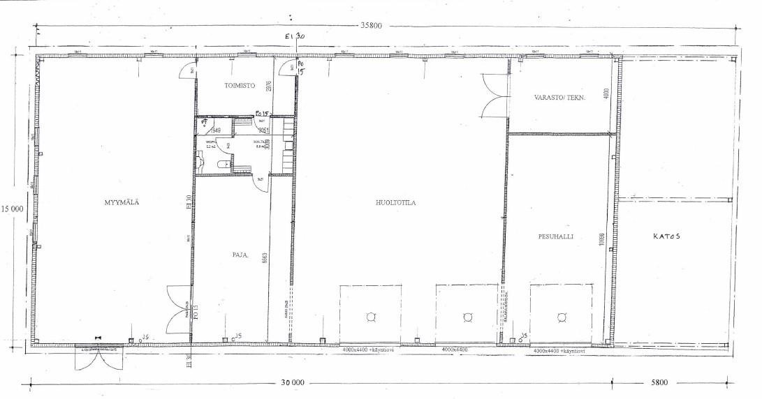
Tarkistettuun hintaan Teollisuuskadulla myytävänä toimiva ja monipuolinen kiinteistökokonaisuus. Ns.Teletalon nimellä tunnettu toimitilarakennus (v.1978) on pinta-alaltaan n. 1200 m2 ja käsittää varastohallin 115m2 (kork. palkkiin n.4m), keskivarasto n. 150 m2 ja päädyssä n.150+300 m2 hallitilat (vk n. 4,9m). Rakennuksen toisessa päädyssä on lisäksi toimisto- ja sostilat sekä kellarikerroksessa varasto- ja tekniset tilat. Rakennusta remontoitu kattavasti v. 2011-2012, mm. uusi ilmanvaihto (2kpl) ja laajennus lämpimäksi tilaksi. Rakennuksessa on 3 nosto-ovea.
Uudempi myymälä/korjaamorakennus on valmistunut v. 2017 ja on huoneistoalaltaan n.450 m2 ja rakennussalaltaan 537 m2. Myymälän osuus oheistiloineen on n. 200 m2. Rakennuksessa on edustava, korkea myymälätila suurine ikkunoineen, 2 toimistoa, minikeittiön ja 2 wc:tä. Toisessa kerroksessa on lisäksi toimisto ja varastotilaa. Myymälän takaosassa on korjaamotilat ja pesuhalli (vapaa kork. 6m). Varustuksena 4 öljynerotuskaivoa, nosto-ovet, ledivalaistus, nosturi 500 kg, paineilma. Lämmitys rakennuksissa on öljyllä (pannuhuone ja säiliö teletalossa).
Piha-alue on pääosin asfaltoitu ja aidattu. Pihapiirissä on myös metallinen n. 240 m2 varastokatos.
Ota yhteyttä välittäjään
Lähettämällä viestin hyväksyt palvelun ehdot.
Kohteen tiedot
Perustiedot
- Kohdenumero
- 610961
- Kohdetyyppi
- Tuotantotila
- Osoite
- Teollisuuskatu 42, 44100 ÄÄNEKOSKI
- Huoneet
- myymälä-korjaamorakennus , erill. toimitilarak.
- Kokonaispinta-ala
- 1 700 m2
- Vapautuminen
- Sopimuksen mukaan
Hintatiedot
Hinta
- Velaton hinta
- 445 000,00 €
- Myyntihinta
- 445 000,00 €
- Lainaosuus
- 0,00 €
Osuuspankin lainalaskuri
Lainasi kuukausierä olisi 1 876 € kuukaudessa
Tontti ja kaavoitus
- Tontin pinta-ala
- 6 373 m2
- Omistus
- Oma
- Kaavoitus
- Asemakaava
Pohja

Kuvat


















Sijainti
Kohdetta välittää
Jyväskylä OP Koti Sisä-Suomi Oy LKV Kauppakatu 22, JYVÄSKYLÄ
010 256 5950 Katso puheluhinnat
opkoti.keski-suomi@op.fi
Huomaathan, että OP Kodin kohdeilmoituksessa ei ole kaikkia tietoja kohteesta.
Varmista tiedot kohteen virallisesta myyntiesitteestä.