Gummeruksenkatu 7 hsto 79, Keskusta, Jyväskylä
Vuokra1 450 €/kk
Pinta-ala
124 m2
4h, taukotila, wcKirkkopuiston laidalla siistikuntoinen toimistotila. Tilavat huoneet, erillinen suihkutila ja wc. Läpitalon. Sijainti katutasosta puolikerrosta alas. Oma käynti, jossa lukollinen portti. Helppo löytää paikalle: täsmälleen kirkon pääsisäänkäyntiä vastapäätä. Heti vapaa! Sovi esittely
Kohdetta välittää:
Ota yhteyttä välittäjään
Viesti
Etunimi *
Sukunimi *
Sukunimi *
Puhelinnumero *
Sähköposti *
Lähettämällä viestin hyväksyt palvelun ehdot.
Kohteen tiedot
Perustiedot
- Kohdenumero
- 610951
- Kohdetyyppi
- Toimistotila
- Osoite
- Gummeruksenkatu 7 hsto 79, 40100 JYVÄSKYLÄ
- Huoneet
- 4h, taukotila, wc
- Kokonaispinta-ala
- 124 m2
- Vapautuminen
- 1.10.2024 mennessä
Hinta ja ehdot
Hinta
- Vuokra
- 1 450,00 €/kk
Muut maksut
vesi ja sähkö. Tila on alviton
Osuuspankin lainalaskuri
Euro
63 €/kk
Lainasi kuukausierä olisi 63 € kuukaudessa
Taloyhtiö
- Autopaikat
- Autotalleja tai hallipaikkoja , autokatospaikkoja , sähköpistokepaikkoja , piha-autopaikkoja
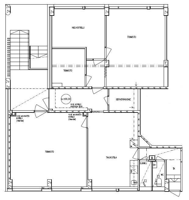
Pohja

Kuvat






Sijainti
Powered by Esri
Kohdetta välittää
Jyväskylä OP Koti Sisä-Suomi Oy LKV Kauppakatu 22, JYVÄSKYLÄ
010 256 5950 Katso puheluhinnat
opkoti.keski-suomi@op.fi
Huomaathan, että OP Kodin kohdeilmoituksessa ei ole kaikkia tietoja kohteesta.
Varmista tiedot kohteen virallisesta myyntiesitteestä.
Hae asuntolainaaOsuuspankista!