Lapiotie 5, Seppälänkangas, Jyväskylä
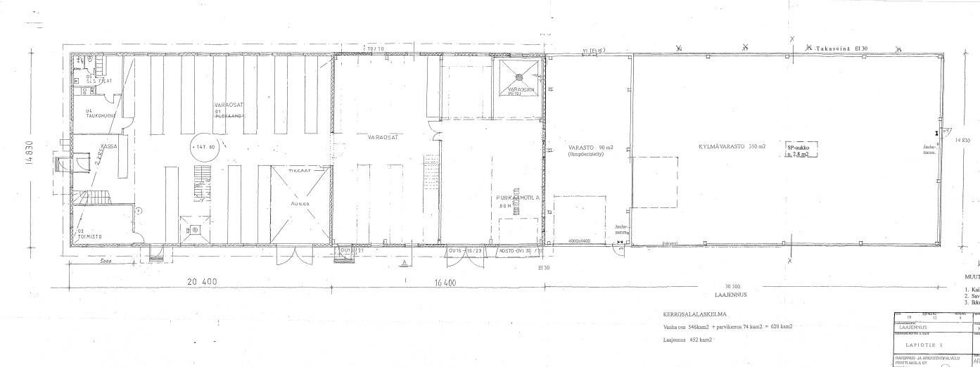
Seppälänkankaan Lapiotiellä päättyvän kadun päässä omalla 6614 m2 tasamaa tontilla teollisuuskiinteistö, jossa kolme erillistä hallia. Päärakennus rakennettu alunperin v. 1988 ja laajennettu v.2015. Kerrosala n. 1072m2. Ko. hallin laajennusosasta n. 350 m2 kylmää tilaa, joka saatettavissa puolilämpimäksi. Muu osa lämmintä hallitilaa ja 2.krs n. 75 m2 oheistiloja. Pihapiirissä myös v. 2015 rakennettu 604 m2 kylmä korkea kalustohalli (asfalttilattia, sähköt) ja v. 1975 tehty alkuperäinen retro kaarihalli 102m2 (nyt kylmillään, ollut lämmössä). Kaikki tilat on vuokrattu tunnetulle toimijalle, hyvä vuokratuotto ja kohde! Sovi yksittäisesittely.
Ota yhteyttä välittäjään
Lähettämällä viestin hyväksyt palvelun ehdot.
Kohteen tiedot
Perustiedot
- Kohdenumero
- 610945
- Kohdetyyppi
- Varastotila
- Osoite
- Lapiotie 5, 40320 JYVÄSKYLÄ
- Huoneet
- kolme eri hallia
- Kokonaispinta-ala
- 1 778 m2
Hintatiedot
Hinta
- Velaton hinta
- 720 000,00 €
- Myyntihinta
- 720 000,00 €
- Lainaosuus
- 0,00 €
Muut maksut
kiinteistövero n. 6000 €/v, kiinteistön hoito n. 4500€/v, hulevesi 600 €/v, vakuutusmaksut n. 3500 €/v
Osuuspankin lainalaskuri
Lainasi kuukausierä olisi 3 036 € kuukaudessa
Rakennuksen tiedot
- Energialuokka
- Ei energiatodistusta
- Lisätietoa energiatodistuksesta
- Kohteella ei ole lain edellyttämää energiatodistusta ja sen vuoksi energialuokka ei ole tiedossa
Tontti ja kaavoitus
- Tontin pinta-ala
- 6 614 m2
- Omistus
- Oma
- Kaavoitus
- asemakaava TTV, eli teollisuus ja varastorakennusten korttelialue.
Pohja

Kuvat





Sijainti
Kohdetta välittää
Jyväskylä OP Koti Sisä-Suomi Oy LKV Kauppakatu 22, JYVÄSKYLÄ
010 256 5950 Katso puheluhinnat
opkoti.keski-suomi@op.fi
Huomaathan, että OP Kodin kohdeilmoituksessa ei ole kaikkia tietoja kohteesta.
Varmista tiedot kohteen virallisesta myyntiesitteestä.