Huletie 8, Palokangas, Jyväskylä
VuokraKysy välittäjältä
Pinta-ala
130 m2
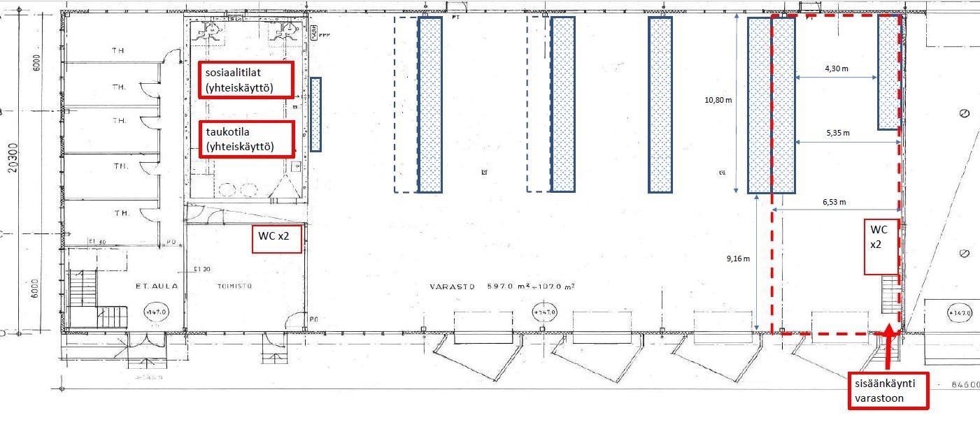
terminaalitilaa 120-240 m2, oheistilatNyt vuokrattavissa v. 2022 valmistuneesta rakennuksesta nykyaikaista viimeisen päälle terminaalitilaa. Pinta-alahaarukka n.120-240 m2. Eurolavapaikkoja 52+36 kpl, lastaussilta, erill käyntiovi. Mahdollista ostaa terminaali-/varastointipalvelut. Sommitellaan tästä hyvä ja toimiva kokonaisuus yritystoiminnallesi.
Kohdetta välittää:
Ota yhteyttä välittäjään
Viesti
Etunimi *
Sukunimi *
Sukunimi *
Puhelinnumero *
Sähköposti *
Lähettämällä viestin hyväksyt palvelun ehdot.
Kohteen tiedot
Perustiedot
- Kohdenumero
- 610937
- Kohdetyyppi
- Varastotila
- Osoite
- Huletie 8, 40320 JYVÄSKYLÄ
- Huoneet
- terminaalitilaa 120-240 m2, oheistilat
- Kokonaispinta-ala
- 130 m2
- Vapautuminen
- Sopimuksen mukaan
Hinta ja ehdot
Hinta
- Vuokra
- Kysy välittäjältä
Muut maksut
mahdolliset terminaali lisäpalvelut
Osuuspankin lainalaskuri
Euro
63 €/kk
Lainasi kuukausierä olisi 63 € kuukaudessa
Kuvat





Sijainti
Powered by Esri
Kohdetta välittää
Jyväskylä OP Koti Sisä-Suomi Oy LKV Kauppakatu 22, JYVÄSKYLÄ
010 256 5950 Katso puheluhinnat
opkoti.keski-suomi@op.fi
Huomaathan, että OP Kodin kohdeilmoituksessa ei ole kaikkia tietoja kohteesta.
Varmista tiedot kohteen virallisesta myyntiesitteestä.
Hae asuntolainaaOsuuspankista!