Yliopistonkatu 20 A 1, Keskusta, Jyväskylä
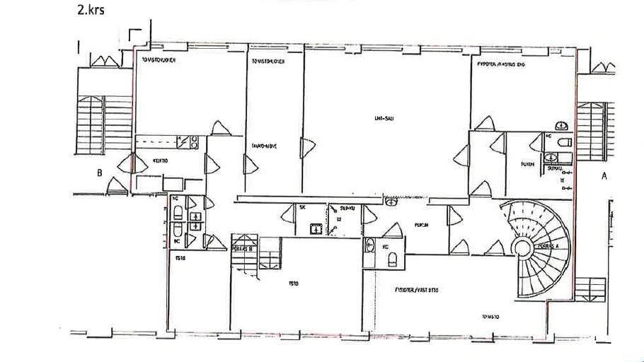
Myydään vuokrattuna Yliopistonkadun varrelta pohjakerroksen/1. kerroksen hyväkuntoinen toimistotila kokonaisuus. Yhtiöjärjestyksen mukaan kyseessä on kerhotila ja sen yhteydessä oleva asunto, yhteistpinta-alaltaan 483 m2, mutta tilat on vuokrattu toimistokäyttöön. Tilaan on käynti Yliopistonkadulta sekä sisäpihan puolelta. Alakerrassa on tilava aulatila, wc.t, ja 6 eri kokoista toimisto-/neuvottelutilaa. Kerrosta ylempänä on tilava keitiö-/taukotila, wc.t ja kuusi toimistohuonetta, osa pohjapiirroksen mukaisesti hyvinkin tilavia. Tilaan on tehty laaja pintaremontti v. 2000 ja v. 2009 tilajärjestystä on osin muutettu. Itse yhtiössä on tehty hyvin remontteja, mm. laaja putkistosaneeraus, sähköt, ikkunat, julkisivut, vesikatto. Pyydä lisätiedot.
Ota yhteyttä välittäjään
Lähettämällä viestin hyväksyt palvelun ehdot.
Kohteen tiedot
Perustiedot
- Kohdenumero
- 610926
- Kohdetyyppi
- Toimistotila
- Osoite
- Yliopistonkatu 20 A 1, 40100 JYVÄSKYLÄ
- Huoneet
- 12 tstoa, neuvotteluh, taukotilat, aula, 6wc, kh
- Kokonaispinta-ala
- 483 m2
Hintatiedot
Hinta
- Velaton hinta
- 490 000,00 €
- Myyntihinta
- 255 479,00 €
- Lainaosuus
- 234 521,00 €
Kohde on yhtiölainoitettu - lainaosuus 234 521,00 €
Taloyhtiölainasta on vastuussa jokainen osakas. Jos lainaa koskevia pääomavastikkeita ei saada joidenkin asuntojen osalta muutoin perittyä, maksuvelvollisuus voi langeta viime kädessä muille osakkaille.
Osuuspankin lainalaskuri
Lainasi kuukausierä olisi 2 066 € kuukaudessa
Taloyhtiö
- Autopaikat
- Autotalleja tai hallipaikkoja , autokatospaikkoja , sähköpistokepaikkoja , piha-autopaikkoja
Tehdyt korjaukset
ks istod
Kuvat












Sijainti
Kohdetta välittää
Jyväskylä OP Koti Sisä-Suomi Oy LKV Kauppakatu 22, JYVÄSKYLÄ
010 256 5950 Katso puheluhinnat
opkoti.keski-suomi@op.fi
Huomaathan, että OP Kodin kohdeilmoituksessa ei ole kaikkia tietoja kohteesta.
Varmista tiedot kohteen virallisesta myyntiesitteestä.