Väinönkatu 36 b 36, Keskusta, Jyväskylä
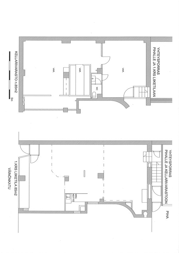
Siistikuntoinen, valoisa katutason liiketila torin laidalla Väinönkadulla. Katutasossa yhtenäinen 85 m2 liiketila, joka on muunneltavissa väliseinin. Tilan alapuolella, kellarikerroksessa 85 m2 varastotilaa ja wc. Myydään tai vuokrataan. Heti vapaa.
Ota yhteyttä välittäjään
Lähettämällä viestin hyväksyt palvelun ehdot.
Kohteen tiedot
Perustiedot
- Kohdenumero
- 610899
- Kohdetyyppi
- Liiketila
- Osoite
- Väinönkatu 36 b 36, 40100 JYVÄSKYLÄ
- Huoneluku
- 2
- Huoneet
- liiketila, ak: varastotilaa, wc
- Kokonaispinta-ala
- 85 m2
- Vapautuminen
- Sopimuksen mukaan
Hinta ja ehdot
Hinta
- Vuokra
- 1 500,00 €/kk
- Velaton hinta
- 90 000,00 €
- Myyntihinta
- 90 000,00 €
- Lainaosuus
- 0,00 €
Osuuspankin lainalaskuri
Lainasi kuukausierä olisi 379 € kuukaudessa
Taloyhtiö
- Autopaikat
- Autotalleja tai hallipaikkoja , autokatospaikkoja , sähköpistokepaikkoja , piha-autopaikkoja
Rakennuksen tiedot
- Energialuokka
- D 2018
Tehdyt korjaukset
- Viemäreiden pinnoitus ruiskuvalulla, osin sukituksella ja pohjaviemärin loppupää uusimalla 2016 - taloussähköt uusittu, huoneistoissa liesijohdot, yleiskaapelointi, porraskäytävät kunnostettu 2017 - hissien ohjaus uusittu 2020-21 - ulko-ovien sekä yhteisten ja teknisten tilojen lukot uusittu 2022
Kuvat


Sijainti
Kohdetta välittää
Jyväskylä OP Koti Sisä-Suomi Oy LKV Kauppakatu 22, JYVÄSKYLÄ
010 256 5950 Katso puheluhinnat
opkoti.keski-suomi@op.fi
Huomaathan, että OP Kodin kohdeilmoituksessa ei ole kaikkia tietoja kohteesta.
Varmista tiedot kohteen virallisesta myyntiesitteestä.