Kauppiaantie 1 L 1, Oulunsalo, Oulu
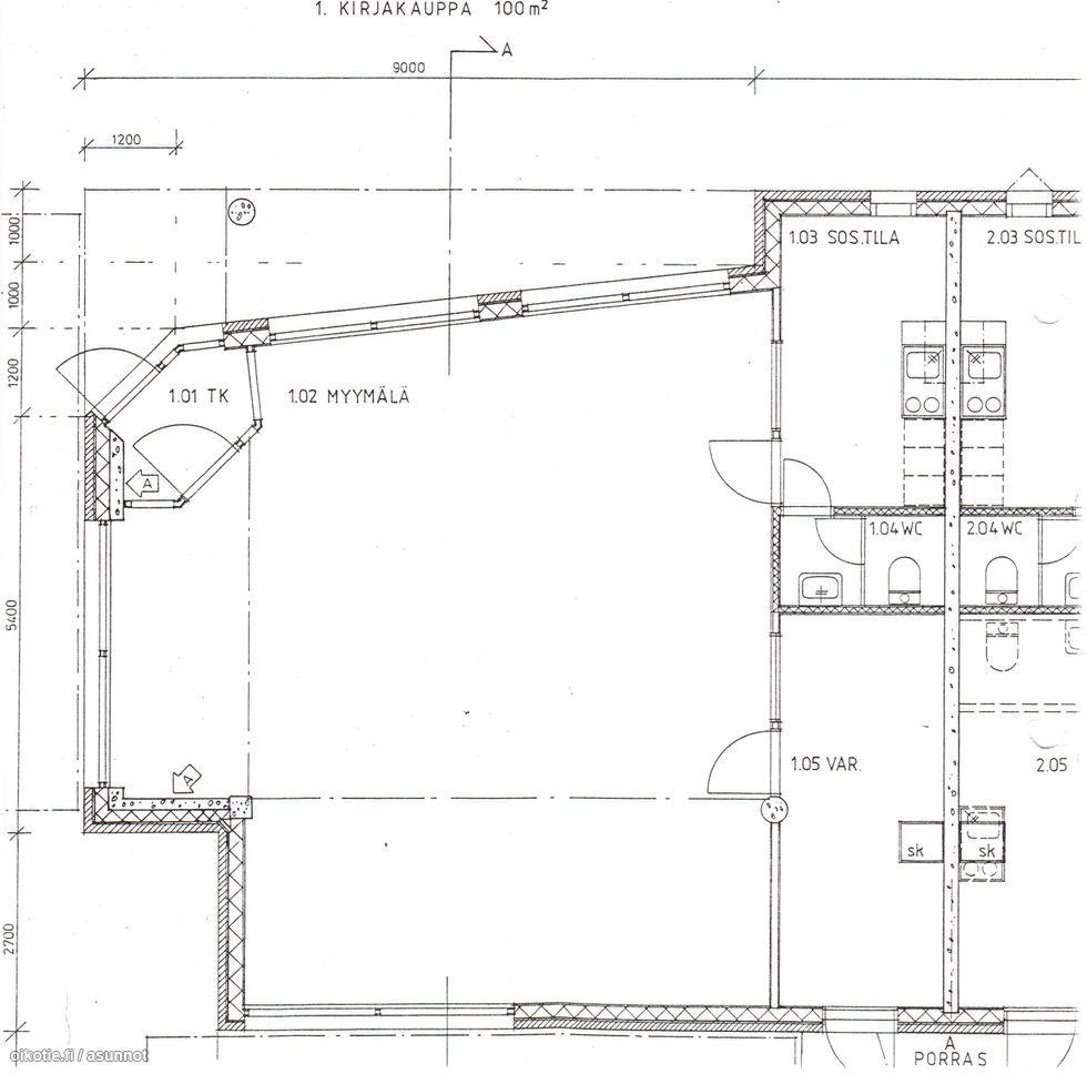
Oulunsalon S-marketin läheisyydestä katutason liiketila. Tila sijaitsee talon päädyssä, ikkunoita kolmeen suuntaan. Liiketila koostuu avotilasta, keittiötilasta, wc:stä ja takatilasta. Tilaan on kaksi sisäänkäyntiä.
Heti vapaa uudelle käyttäjälle!
Esittelyt ja lisätietoa Julia Hoikkala 050 411 8747 tai julia.hoikkala@op.fi.
Ota yhteyttä välittäjään
Lähettämällä viestin hyväksyt palvelun ehdot.
Kohteen tiedot
Perustiedot
- Kohdenumero
- 610292
- Kohdetyyppi
- Liiketila
- Osoite
- Kauppiaantie 1 L 1, 90460 OULUNSALO
- Huoneet
- Katutason liiketila, keittiötila, wc
- Kokonaispinta-ala
- 100 m2
- Vapautuminen
- Heti
Hintatiedot
Hinta
- Velaton hinta
- 35 000,00 €
- Myyntihinta
- 30 582,26 €
- Lainaosuus
- 4 417,74 €
Kohde on yhtiölainoitettu - lainaosuus 4 417,74 €
Taloyhtiölainasta on vastuussa jokainen osakas. Jos lainaa koskevia pääomavastikkeita ei saada joidenkin asuntojen osalta muutoin perittyä, maksuvelvollisuus voi langeta viime kädessä muille osakkaille.
Osuuspankin lainalaskuri
Lainasi kuukausierä olisi 148 € kuukaudessa
Taloyhtiö
Tehdyt korjaukset
2017 Liikehuoneiston ulkoseinien alaosien kengitys ja ulkoseinien tiivistyskorjaus. Suoritetut korjaukset: kts. kunnossapitotarveselvitys. 2025 Vesikaton pinnoitus. 2023-2024 LH 6 liiketilan kengitysremontti tehty. Pelastussuunnitelma tehty 2023 verkkopalveluun Safetum Oy. Entisen Oralin liiketilan ilmanvaihdon ja alaslaskun korjaus 2022. -- 2020 Korjaukset: Kattorakenteiden huoltokorjauksia (vesirännit, syöksyt) -- 2019 Korjaukset: 2019 Huoneiston Lh 7 ulkoseinän kengityskorjaus. -- 2017 Korjaukset: 2017 Liikehuoneisto 1 ulkoseinien alaosien kengitys ja ulkoseinien tiivistyskorjaus -- 2015 Korjaukset: 2015 Kiinteistössä on sattunut palovahinko 8.5.2015. Palo- ja savuvahinkoja tuli huoneistoin LH 1. LH 2, LH 3, LH4 ja H9 (A1). Korjaukset on suoritettu. Vakuutus korvannut pääosin vahingot. 2015 Ilmanvaihtojärjestelmät nuohottu ja säädetty -- 2013 Lämmönsiirrin uusittu (alajakokeskus): -- 2009 Katosten ja syöksytorvien muutostyöt: -- 2008 Julkisivujen maalaustyöt: -- 2003 Korjaukset: 2003 Vanhan IV-konehuoneen itäpuolen ulkoseinäpaneelit uusittu -- 1997 Korjaukset: 1997 Hstosta nro 11 muodostettu 6 kpl:tta asunto-/ toimistohuoneistoa. 1997 Rakennettu erillinen varastorakennus.
Suunnitellut korjaukset
Kiinteistöyhtiölle on laadittu elinkaaritaulukko 1990 - 2050. Taulukkoon on merkitty kuluvan vuoden kunnossapitotarpeet sekä viiden vuoden tulevat kunnossapitotarpeet. Voit pyytää taulukko välittäjältä.
Lisätiedot
Valmistumisvuosi: 1990. Koneellinen poistoilmanvaihto. Kaukolämmitys. Oma tontti. Hoitovastike: 560€ /kk. Pääomavastike: 104,34€ /kk.
Pohja

Kuvat








Sijainti
Kohdetta välittää
Oulu OP Koti Pohjoinen Oy LKV Lekatie 6, OULU
Huomaathan, että OP Kodin kohdeilmoituksessa ei ole kaikkia tietoja kohteesta.
Varmista tiedot kohteen virallisesta myyntiesitteestä.