Albertinkatu 9 A 22, Keskusta, Oulu
Tarjolla tyylikäs asunto aivan keskustasta As Oy Oulun Marskinpuistosta.
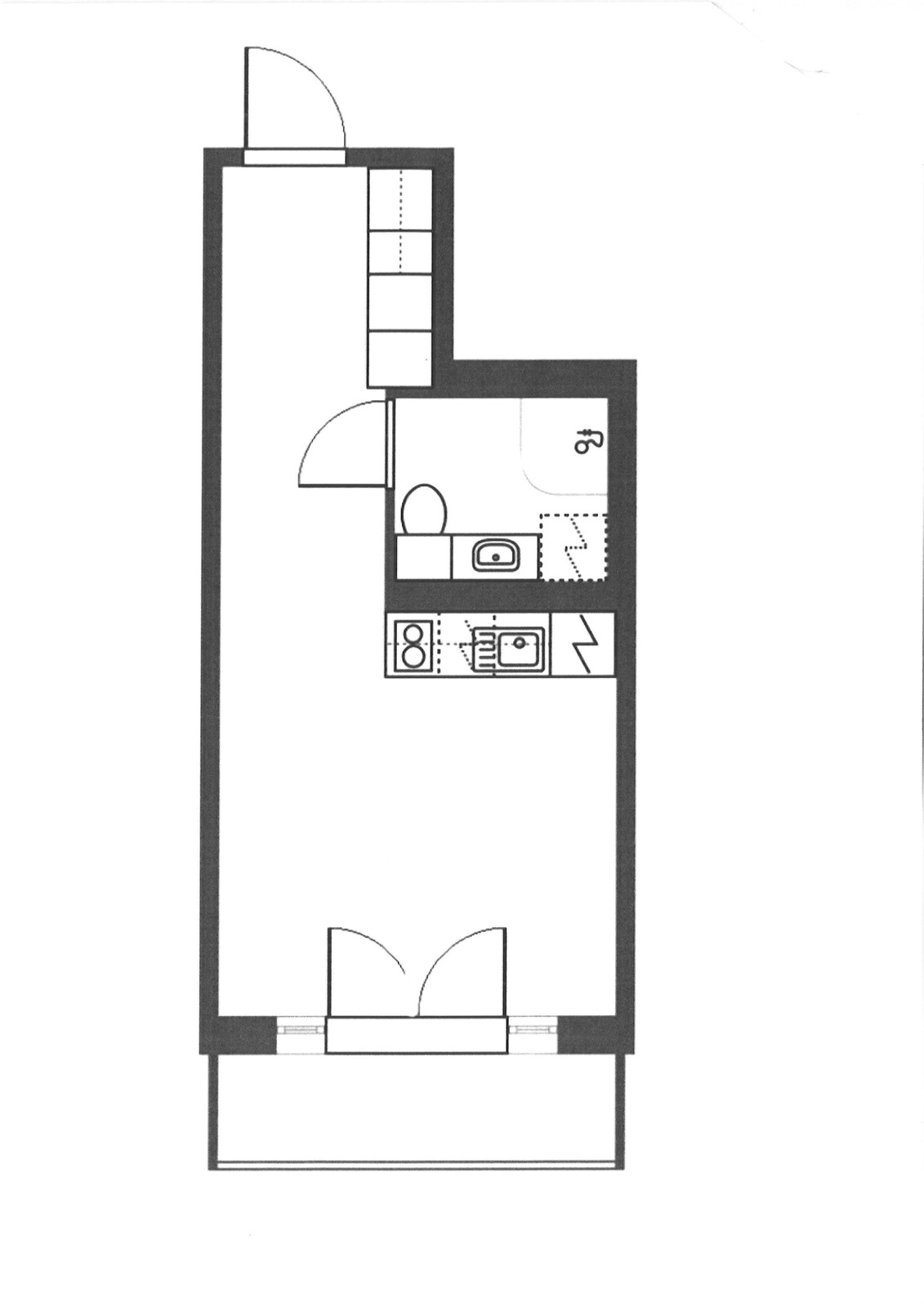
Huoneisto sijaitsee huippu paikalla aivan keskustan ytimessä palveluiden läheisyydessä. Asunnossa on toimiva pohjaratkaisu ja laadukkaat pintamateriaalit. Lattiat on laminaattiia ja seinät maalipinnoilla. Kaakeloidussa kylpyhuoneessa on paikka pyykinpesukoneelle.
Talo on kaukolämmössä eli lämmitys sisältyy vuokraan. Vuokralainen tekee oman sopimuksen käyttösähköstä sekä ottaa asuntoon laajan kotivakuutuksen. Vesimaksut mittarin mukaan, vesimaksuennakko 17,50€/hlö/kk. Asunnon mukana on mahdollista vuokrata lämmin autohallipaikka hintaan 135€/kk.
Asunto on heti vapaa! Soita puh. 050-5218444 tai jätä yhteydenottopyyntö, niin sovitaan esittely.
Hae tätä asuntoa
Ota yhteyttä välittäjään
Lähettämällä viestin hyväksyt palvelun ehdot.
Kohteen tiedot
Perustiedot
- Kohdenumero
- 609791
- Kohdetyyppi
- Kerrostalo
- Osoite
- Albertinkatu 9 A 22, 90100 OULU
- Omistusmuoto
- Vuokra
- Huoneluku
- 1
- Huoneet
- 1h, kt, kh, parv
- Asuinpinta-ala
- 26,5 m2
- Kokonaispinta-ala
- 26,5 m2
- Käyttöönottovuosi
- 2020
- Yleiskunto
- Hyvä
- Kerros
- 3/12
- Hissi
- Kyllä
- Sauna
- Ei
- Parveke
- On
- Vapautuminen
- Heti
Hinta ja ehdot
Hinta
- Vuokra
- 610,00 €/kk
- Vuokravakuus
- 610,00 €
- Vuokra-aika
- Toistaiseksi, irtisanomisajan alkamiskohta aikaisintaan 11 kk vuokrasuhteen alusta.
- Lisätietoa vuokra-ajasta
- alle vuoden asumisesta 1 kk.n vuokran suuruinen korvaus
- Erityisehdot
- Ei lemmikkejä, ei tupakointia, laaja kotivakuutus
- Vuokrataan kalustettuna
- Ei
Muut maksut
Sähkö oma sähkösopimus. Vesi oma mittari, ennakko 20€/hlö/kk. AHP 135€/kk.
Osuuspankin lainalaskuri
Lainasi kuukausierä olisi 63 € kuukaudessa
Varustus
- Keittiö
- Jenkkikaappi, erillisuuni, induktioliesi, liesituuletin, astianpesukone, kaapistot, irralliset kaapistot, kiinteät valaisimet.
- Pesutilat
- Kylpyhuone, suihku, suihkuseinä, peilit, allaskaappi, pesukoneliitäntä, lattialämmitys, kiinteät valaisimet.
- Säilytystilat
- Kellari
Materiaalit
Seinät: maalattu. Lattiat: laminaatti. kph: laatoitettu.
Rakennuksen tiedot
- Rakennusmateriaali
- Betoni
- Energialuokka
- B 2018
Joustoa muuttoon ja
remonttiin
Tutustu OP:n joustoluottoonHanki kotisi
kokoinen vakuutus
Tutustu Pohjola KotivakuutukseenPohja

Kuvat










Sijainti
Kohdetta välittää
Oulu OP Koti Pohjoinen Oy LKV Lekatie 6, OULU
Huomaathan, että OP Kodin kohdeilmoituksessa ei ole kaikkia tietoja kohteesta.
Varmista tiedot kohteen virallisesta myyntiesitteestä.