Kirkkokatu 23-25 B6, Keskusta, Oulu
Vuokrattavana hyväkuntoinen ja tilava kaksio ydinkeskustasta. Huoneisto on hissillisen talon kolmannessa (3/5) kerroksessa. Lattiat on laminaattia ja seinät valkoiseksi maalatut. Kaakeloidussa kylpyhuoneessa on paikka ja liitännät pyykinpesukoneelle. Hakijoilta tarkastetaan luottotiedot.
Asunto on heti vapaa! Soita puh. 050-5218444 tai jätä yhteydenottopyyntö, niin sovitaan esittely.
Hae tätä asuntoa
Ota yhteyttä välittäjään
Lähettämällä viestin hyväksyt palvelun ehdot.
Kohteen tiedot
Perustiedot
- Kohdenumero
- 609746
- Kohdetyyppi
- Kerrostalo
- Osoite
- Kirkkokatu 23-25 B6, 90100 OULU
- Omistusmuoto
- Vuokra
- Huoneluku
- 2
- Huoneet
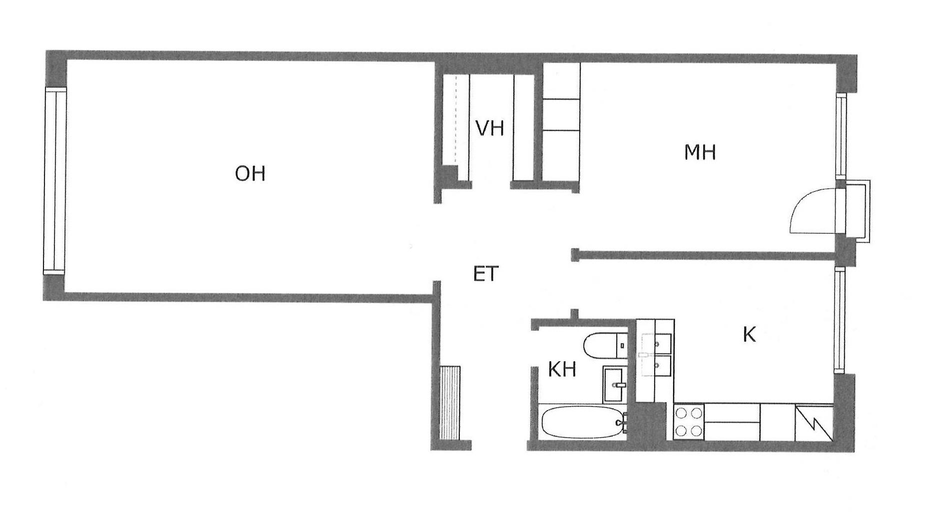
- 2h, k, kph, parveke
- Asuinpinta-ala
- 62 m2
- Kokonaispinta-ala
- 62 m2
- Käyttöönottovuosi
- 1962
- Yleiskunto
- Hyvä
- Kerros
- 3/-
- Hissi
- Kyllä
- Sauna
- Ei
- Parveke
- On
- Parvekkeen kuvaus
- Sisäpihalle
- Ikkunat ja näköalat
- Rotuaari/sisäpiha
- Vapautuminen
- 1.1.2026 mennessä
Hinta ja ehdot
Hinta
- Vuokra
- 773,00 €/kk
- Vuokravakuus
- 1 546,00 €
- Vuokra-aika
- Toistaiseksi, irtisanomisajan alkamiskohta aikaisintaan 11 kk vuokrasuhteen alusta.
- Lisätietoa vuokra-ajasta
- alle vuoden asumisesta 1kk:n vuokran suuruinen korvaus
- Erityisehdot
- Ei tupakointia, laaja kotivakuutus
- Vuokrataan kalustettuna
- Ei
Muut maksut
Sähkö oma sopimus käyttösähköstä. Vesi ennakkomaksu 20€/hlö/kk..
Osuuspankin lainalaskuri
Lainasi kuukausierä olisi 63 € kuukaudessa
Varustus
- Keittiö
- Jääkaappipakastin, lattialiesi, liesituuletin, astianpesukone, kaapistot.
- Pesutilat
- Kylpyhuone, suihku, suihkuseinä, peilikaappi, pesukoneliitäntä, lattialämmitys sähkö, kiinteät valaisimet.
- Säilytystilat
- Vaatehuone
Materiaalit
lattiat: laminaatti. seinät: maali.
Rakennuksen tiedot
- Rakennusmateriaali
- Betoni
- Energialuokka
- B 2018
Tehdyt korjaukset
2007 saneerattu vesijohto- ja viemäriverkosto, 2005 antenniverkon digikunnostus, 2001 uusittu lämmönvaihdin, patteri- ja linjasäätöventtiilit, 1992 uusittu ikkunat, 1995 ovipuhelimet, ulko-ovet ja katto, 1998 piha asfaltoitu, 1999 roskakatos ja pihan puoleinen lasikatos, 2011 julkisivu- ja parvekeremontti. 2015 porttipuomi uusittu.
Joustoa muuttoon ja
remonttiin
Tutustu OP:n joustoluottoonHanki kotisi
kokoinen vakuutus
Tutustu Pohjola KotivakuutukseenPohja

Kuvat











Sijainti
Kohdetta välittää
Oulu OP Koti Pohjoinen Oy LKV Lekatie 6, OULU
Huomaathan, että OP Kodin kohdeilmoituksessa ei ole kaikkia tietoja kohteesta.
Varmista tiedot kohteen virallisesta myyntiesitteestä.