Taulumäentie 55 C, Taulumäki, Jyväskylä
TOIMI NOPEASTI JA VARAA OMA UUSI ASUNTO OP KODILTA - NYT ENNAKKOMARKKINOINNISSA.
TERVETULOA ENSIESITTELYYN SUNNUNTAINA 7.12. KLO 12:00-13:00. ESITTELY PIDETÄÄN RAKENNUSPAIKALLA JA RAKENTEILLA OLEVAN NAAPURIYHTIÖ AAVAN MALLIASUNNOSSA.
Uusia upeita koteja Tuomiojärven rantaan!
Yksi kaupungin halutuimmista asuinalueista saa jatkoa uudella As Oy Jyväskylän Kivelänrannan Loisteella, joka rakentuu osana talokokonaisuuden toista vaihetta, upealle paikalle aivan Tuomijärven rantamaisemiin. Loisteen asunnot ovat suunniteltu juuri tälle paikalle siten, että lähes kaikkien huoneistojen suurista ikkunoista, lasiliukuovista ja tilavista maisemaparvekkeista on näkymät Tuomiojärvelle. Lisäksi alimman kerroksen huoneistot saavat viihtyisän terassialueen sekä asuntopihan.
Omalle tontille rakentuva Loiste pitää sisällään yhteensä 35 asuinhuoneistoa ja erillisinä osakkeina myytäviä pihapaikkoja ja katospaikkoja autoille. Lämmitysmuotona on kaukolämpö vesikiertoisella lattialämmityksellä. Ilmanvaihto tapahtuu huoneistokohtaisilla ilmanvaihtokoneilla ja taloyhtiöön liitetään kaapeli-tv ja kuituyhteys. Taloyhtiön energiatehokkuutta on parantamassa katolle asennettavat aurinkopaneelit.
Kivelänranta on poikkeuksellisen hyvä sijainti monenlaiselle asukkaalle, kotiovelta on kävelymatka kaupungin keskustaan, uimarannalle ja lenkkipoluille. Bussipysäkki löytyy kodin edustalta ja liikenneyhteydet ovat monipuoliset useampaan suutaan. Parin kilometrin säteellä löytyy lähikaupat sekä kauppakeskukset.
Rakentamisen suunniteltu aloitus on kevät/2026 ja valmistuminen on kevät/2027.
Kivelänranan Loisteen asunnot ovat nyt varattavissa, toimi nopeasti ja kysy lisää OP Kodin välittäjiltä!
Kohdetta välittää:
Ota yhteyttä välittäjään
Lähettämällä viestin hyväksyt palvelun ehdot.
Kohteen tiedot
Perustiedot
- Kohdenumero
- 609602
- Kohdetyyppi
- Kerrostalo
- Osoite
- Taulumäentie 55 C, 40200 JYVÄSKYLÄ
- Omistusmuoto
- Omistus
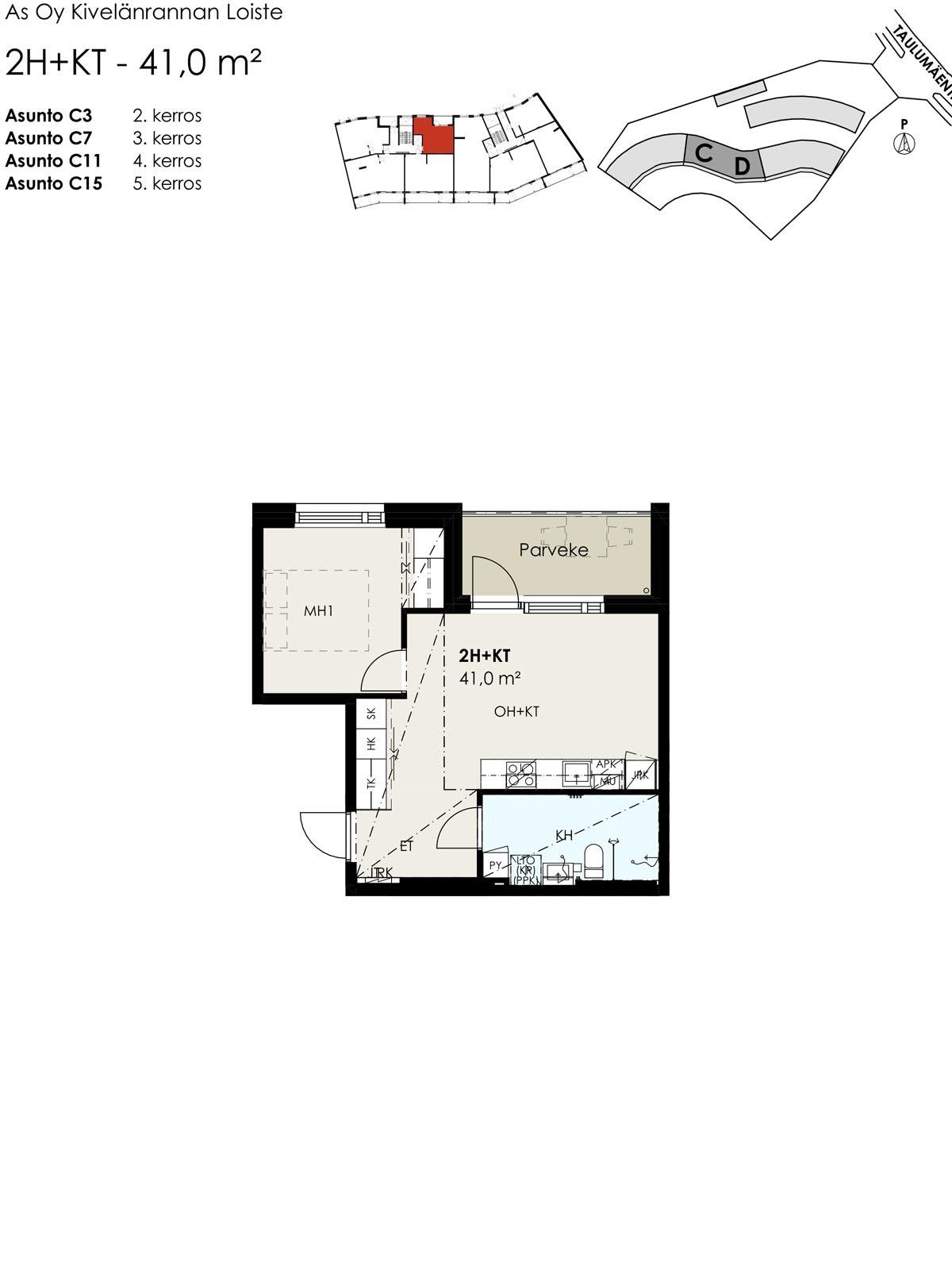
- Huoneluku
- 2
- Huoneet
- 2h + kt
- Asuinpinta-ala
- 41 m2
- Kokonaispinta-ala
- 41 m2
- Käyttöönottovuosi
- 2027
- Yleiskunto
- Uusi
- Kerros
- 5/5
- Hissi
- Kyllä
- Sauna
- Ei
- Parveke
- On, lasitettu
- Vapautuminen
- kun kohde valmistuu
Hintatiedot
Velaton hinta
169 000,00 €
Myyntihinta
60 667,23 €
Lainaosuus
108 332,77 €
Neliöhinta
4 121,95 € /m²
Kohde on yhtiölainoitettu - lainaosuus 108 332,77 €
Taloyhtiölainasta on vastuussa jokainen osakas. Jos lainaa koskevia pääomavastikkeita ei saada joidenkin asuntojen osalta muutoin perittyä, maksuvelvollisuus voi langeta viime kädessä muille osakkaille.
Hoitovastike
159,90 € /kk
Yhtiövastike yhteensä
159,90 € /kk
Lisää tietoa vastikkeista
Pääomavastikkeen ja yhtiölainan määrät tarkentuvat RS-sopimuksen laatimisen yhteydessä yhtiölainaehtojen mukaisesti.
Vesimaksu
30,00 €/kk/henkilö
Vesimaksu 30,00 €/hlö/kk.
Osuuspankin lainalaskuri
Lainasi kuukausierä olisi 713 € kuukaudessa
Varustus
- Keittiö
- Jääkaappipakastin, erillisuuni, induktioliesi, liesikupu, mikroaaltouuni, astianpesukone.
- Pesutilat
- Suihku, suihkukaappi, pesukoneliitäntä.
Materiaalit
- Keittiö: Lattia lautaparketti tai vinyyli, seinät maali. Kylpyhuone: lattia ja seinät laatta. Asuinhuoneet: lattia lautaparketti tai vinyyli, seinät maali.
Taloyhtiö
- Taloyhtiön nimi
- Asunto Oy Kivelänrannan Loiste, Jyväskylä
- Kiinteistönhuolto
- Huoltoyhtiö
- Asuinhuoneistoja
- 35
- Autopaikat
- Autokatospaikkoja 19 kpl, sähköpistokepaikkoja 16 kpl
- Taloyhtiössä on
- Urheiluvälinevarasto, lastenvaunuvarasto, väestösuoja, kaapeli-TV, tietoliikenneyhteys, huoneistokohtaiset irtainvarastot
Rakennuksen tiedot
- Rakennusmateriaali
- Betoni. Ulkoseinät ovat pääosin betonielementtejä. Ulkoverhouksena on tiilimuuraus ja parveketaustat puuverhoiltuja.
- Kattotyyppi
- Tasa
- Kattomateriaali
- Muu
- Lämmitysjärjestelmä
- Kaukolämpö
- Lämmönjakojärjestelmä
- Lattialämmitys vesi
- Ilmanvaihtojärjestelmä
- Koneellinen tulo- ja postoilmanvaihto huoneistokohtaisella ilmanvaihtokoneella (ilman jäähdytystä).
- Energialuokka
- Ei energiatodistusta
- Lisätietoa energiatodistuksesta
- Kohteella ei ole lain edellyttämää energiatodistusta ja sen vuoksi energialuokka ei ole tiedossa
Tontti ja kaavoitus
- Kaavoitus
- Asemakaava. Jyväskylän kaupunki, rakennusvalvonta
Palvelut ja liikenneyhteydet
Palvelut: Palokankeskus n. 3,5km. Seppälä n.2km. Jyväskylän keskusta n. 1,8km. Liikenneyhteydet: Linja-autopysäkki 100m.
Asuntolaina –
Avain unelmiesi kotiin
Tutustu OP:n asuntolainaanHanki kotisi
kokoinen vakuutus
Tutustu Pohjola KotivakuutukseenPohja

Kuvat










Sijainti
Kohdetta välittää
Jyväskylä OP Koti Keski-Suomi Oy LKV
Kauppakatu 22, JYVÄSKYLÄ
010 256 5950 Katso puheluhinnat
opkoti.keski-suomi@op.fi
Huomaathan, että OP Kodin kohdeilmoituksessa ei ole kaikkia tietoja kohteesta.
Varmista tiedot kohteen virallisesta myyntiesitteestä.