Rumpumarssi 10 E, Soittajankangas, Oulu
Mukavaa asumista Soittajankankaalla!
Tämä tilava erillistalo tarjoaa asukkailleen viihtyisää ja kodikasta asumista Oulun Soittajankankaalla. Vuonna 2022 valmistunut koti on suunniteltu perheystävälliseksi ja sen pohjaratkaisu mahdollistaa monipuoliset sisustusratkaisut. Kodin sijainti rauhallisella alueella ja luonnon lähettyvillä takaa miellyttävät puitteet arjen kiireisiin.
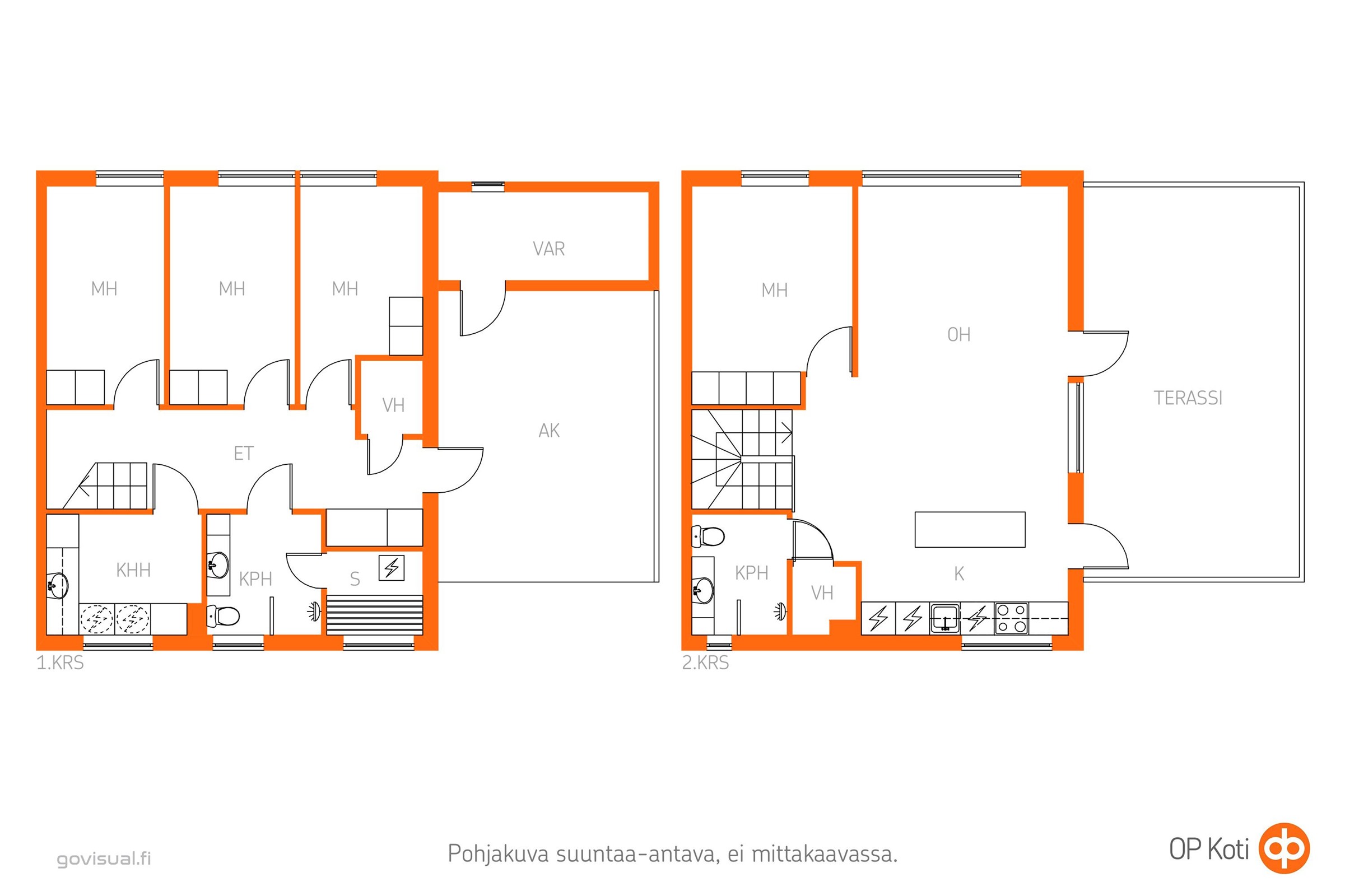
Koti kätkee sisäänsä 112 neliömetriä asuintilaa. Alakerrassa sijaitsee kodin kolme makuuhuonetta ja pesutilat, sauna sekä kodinhoitohuone. Yläkerrassa sijaitseva moderni keittiö saarekkeineen on varustettu laadukkailla kodinkoneilla. Keittiön yhteydessä on tilava olohuone, josta pääsee suoraan tilavalle parvekkeelle. Yläkerrassa on myös yksi kodin makuuhuoneista ja wc. Asunnossa on myös vaatehuone ja ulkovarasto, jotka takaavat riittävät säilytystilat. Lisäksi autopaikka jo on kaksi.
Teknisesti erinomaisessa kunnossa oleva koti hyötyy huoneistokohtaisesta koneellisesta ilmanvaihdosta ja energiatehokkaasta lattialämmityksestä. Taloyhtiössä on kaukolämpö, ja energialuokka on B2018, mikä takaa taloudelliset asumiskustannukset.
Soittajankangas tarjoaa asukkailleen erinomaiset palvelut ja liikenneyhteydet. Lähialueen päiväkodit, koulut ja kaupat ovat helposti saavutettavissa, ja Oulun keskustaan on sujuvat kulkuyhteydet niin autolla kuin julkisilla. Hyvät ulkoilumahdollisuudet ja leikkipuistot tekevät alueesta ihanteellisen perheille ja luonnon ystäville.
Tämä koti on heti vapaana uusille asukkaille, joten ota yhteyttä ja varaa oma esittelyaikasi!
Ota yhteyttä välittäjään
Lähettämällä viestin hyväksyt palvelun ehdot.
Kohteen tiedot
Perustiedot
- Kohdenumero
- 608881
- Kohdetyyppi
- Erillistalo
- Osoite
- Rumpumarssi 10 E, 90670 OULU
- Omistusmuoto
- Omistus
- Huoneluku
- 5
- Huoneet
- 5h, k, s
- Asuinpinta-ala
- 112 m2
- Kokonaispinta-ala
- 112 m2
- Käyttöönottovuosi
- 2022
- Kerros
- 1-2/2
- Hissi
- Ei
- Sauna
- Kyllä
- Parveke
- On
- Ikkunat ja näköalat
- Tilava parveke sijoittuu osittain katettuna autokatoksen yläpuolelle.
- Vapautuminen
- Heti
Hintatiedot
Hinta
- Velaton hinta
- 289 000,00 €
- Myyntihinta
- 289 000,00 €
- Lainaosuus
- 0,00 €
- Neliöhinta
- 2 580,36 €/m²
Vastikkeet
- Hoitovastike
- 442,40 €/kk
- Yhtiövastike yhteensä
- 442,40 €/kk
Muut maksut
Tietoliikenneyhteysmaksu 5,00 €/kk. Vesiennakko 15 €/hlö/kk, tasaus kulutuksen mukaan (kylmä 3,92 €/m³ ja lämmin 9,65 €/m³). Ostaja vastaa varainsiirtoverosta ja omistusoikeuden rekisteröintikustannuksista.
Osuuspankin lainalaskuri
Lainasi kuukausierä olisi 1 218 € kuukaudessa
Varustus
- Keittiö
- Jääkaappi, pakastekaappi, erillisuuni, liesitaso, liesituuletin, mikroaaltouuni, astianpesukone, kaapistot, kiinteät valaisimet.
- Pesutilat
- Sauna, sähkökiuas, kylpyhuone, erillinen wc, suihku, peilit, peilikaappi, kaapit, allaskaappi, pesukoneliitäntä, lattialämmitys, kiinteät valaisimet.
- Säilytystilat
- Vaatehuone, ulkovarasto
Materiaalit
Keittiö: parketti, maali. Olohuone: parketti, maali. Makuuhuone 1: parketti, maali. Makuuhuone 2: parketti, maali. Makuuhuone 3: parketti, maali. Kodinhoitohuone: laatta, kaakeli. Sauna: laatta, paneeli. Kylpyhuone: laatta. kaakeli. Eteinen: laatta, maali. Wc: laatta, kaakeli. Makuuhuone 4: parketti, maali.
Taloyhtiö
- Taloyhtiön nimi
- Asunto Oy Hiukkavaaran Kajo
- Isännöitsijä
- Isännöinti Vuorma Oy
- Kiinteistönhuolto
- Huoltoyhtiö
- Asuinhuoneistoja
- 14
- Taloyhtiössä on
- Kaapeli-TV
Rakennuksen tiedot
- Rakennusmateriaali
- Puu. Betoni.
- Kattotyyppi
- Harja
- Kattomateriaali
- Huopa
- Lämmitysjärjestelmä
- Kaukolämpö
- Lämmönjakojärjestelmä
- Lattialämmitys vesi
- Ilmanvaihtojärjestelmä
- Huoneistokohtainen koneellinen ilmanvaihto
- Energialuokka
- B 2018
- Lisätietoa energiatodistuksesta
- E-luku 98, voimassa 1.7.2032 asti.
Suunnitellut korjaukset
Kunnossapitotarveselvityksen mukaan: Kuntoarvion teettäminen 2029. Salaojajärjestelmät tarkistus 3-5 vuoden välein. Katon kuntotutkimus 2026.
Tontti ja kaavoitus
- Tontin pinta-ala
- 3 150 m2
- Omistus
- Vuokrattu
- Vuokralleantaja
- Oulun kaupunki
- Tontin vuokra-aika
- Vuokrasopimus päättyy 31.12.2081
- Kaavoitus
- Asemakaava. Oulun kaupunki
Asuntolaina –
Avain unelmiesi kotiin
Tutustu OP:n asuntolainaanHanki kotisi
kokoinen vakuutus
Tutustu Pohjola KotivakuutukseenPohja

Kuvat
























Sijainti
Kohdetta välittää
Oulu OP Koti Pohjoinen Oy LKV Lekatie 6, OULU
Huomaathan, että OP Kodin kohdeilmoituksessa ei ole kaikkia tietoja kohteesta.
Varmista tiedot kohteen virallisesta myyntiesitteestä.