Virnakuja 10-12 a, Krookila, Raisio
Tervetuloa tutustumaan kodikkaaseen rivitaloasuntoon Raision Krookilassa, missä asuminen on vaivatonta ja viihtyisää. Tämä 97,5 neliömetrin koti tarjoaa tilaa ja mukavuutta koko perheelle yhdessä tasossa. Lasitetulla terassilla voit nauttia rauhallisista aamukahveista ja seurata vuodenaikojen vaihtelua.
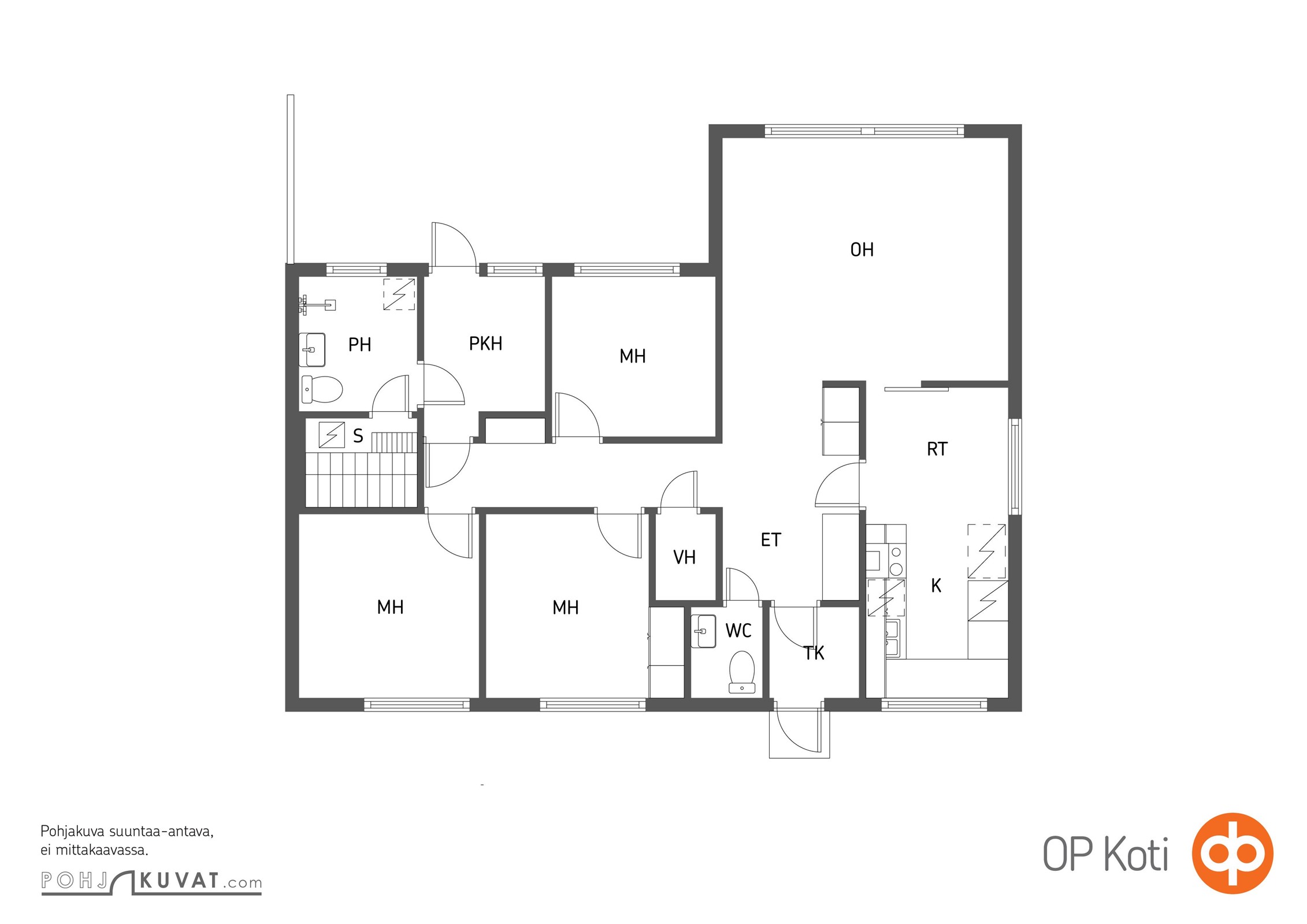
Asunto koostuu neljästä huoneesta, keittiöstä, saunasta ja erillisestä WC:stä, mikä tekee siitä käytännöllisen arjen kiireisiin. Keittiöstä löydät kaiken tarvittavan ruoanlaittoon, ja olohuoneessa on tilaa yhteisiin hetkiin perheen kanssa. Makuuhuoneet ovat valoisia, ja vaatehuone tarjoaa runsaasti säilytystilaa. Kylpyhuoneen lattialämmitys tuo lisämukavuutta, ja sauna kutsuu rentoutumaan päivän päätteeksi.
Krookilan alueella kaikki tärkeät palvelut ovat lähellä, ja liikenneyhteydet Turun suuntaan ovat erinomaiset. Lähikauppa, koulut ja päiväkodit ovat kävelymatkan päässä, mikä tekee arjen pyörittämisestä helppoa. Alueen rauhallinen tunnelma ja vehreät puistoalueet kutsuvat ulkoilemaan ja rentoutumaan.
Asunto Oy Krookilanorvokki on taloyhtiö, jossa huolto- ja parannustöitä on tehty säännöllisesti. Vuosien varrella on toteutettu muun muassa lämmitysjärjestelmän uusinta energiatehokkaaseen maalämpöön sekä Patteriventtiilien uusiminen ja tasapainotus . Tulevissa suunnitelmissa on ovien ja ikkunoiden uusiminen, mikä entisestään lisää kodin viihtyisyyttä ja energiatehokkuutta.
Ota yhteyttä ja sovi oma esittelyaikasi - autan mielelläni myös nykyisen kotisi myynnissä. Jari Heiniola, puh. 0400 234 120, jari.heiniola@op.fi
Ota yhteyttä välittäjään
Lähettämällä viestin hyväksyt palvelun ehdot.
Kohteen tiedot
Perustiedot
- Kohdenumero
- 608723
- Kohdetyyppi
- Rivitalo
- Osoite
- Virnakuja 10-12 a, 21200 RAISIO
- Omistusmuoto
- Omistus
- Huoneluku
- 4
- Huoneet
- 4h + k + s + wc + vh (yht.j. 4h + k + s)
- Asuinpinta-ala
- 97,5 m2
- Kokonaispinta-ala
- 97,5 m2
- Käyttöönottovuosi
- 1983
- Kerros
- 1/1
- Hissi
- Ei
- Sauna
- Kyllä
- Parveke
- Ei
- Vapautuminen
- Heti
Hintatiedot
Hinta
- Velaton hinta
- 169 000,00 €
- Myyntihinta
- 169 000,00 €
- Lainaosuus
- 0,00 €
- Neliöhinta
- 1 733,33 €/m²
Vastikkeet
- Hoitovastike
- 511,88 €/kk
- Yhtiövastike yhteensä
- 511,88 €/kk
Muut maksut
- Vesimaksu
- 22,00 €/kk/henkilö
Vesimaksu 22,00 €/hlö/kk.
Osuuspankin lainalaskuri
Lainasi kuukausierä olisi 713 € kuukaudessa
Varustus
- Keittiö
- Jääkaappipakastin, induktioliesi, liesituuletin, astianpesukone, kaapistot, kiinteät valaisimet.
- Pesutilat
- Sauna, sähkökiuas, kylpyhuone, erillinen wc, suihku, suihkuseinä, peilit kylpyhuone, peilikaappi WC, allaskaappi kylpyhuone, pesukoneliitäntä, lattialämmitys kylpyhuone, kiinteät valaisimet.
- Säilytystilat
- Vaatehuone, ulkovarasto
Materiaalit
Keittiö: lattia muovimatto ja seinät maalattu. Olohuone: lattia parketti ja seinät maalattu. Makuuhuone 1: lattia muovimatto ja seinät tapetti. Makuuhuone 2: lattia muovimatto ja seinät maalattu. Makuuhuone 3: lattia muovimatto ja seinät maalattu. Sauna: lattia laatta ja seinät puupaneeli. Kylpyhuone: lattia laatta ja seinät laatta. Eteinen: lattia muovimatto/parketti ja seinät maalattu. Wc: lattia laatta ja seinät laatta. pukuhuone: lattia muovimatto ja seinät maalattu.
Taloyhtiö
- Taloyhtiön nimi
- Asunto Oy Krookilanorvokki
- Isännöitsijä
- Suomen Isännöitsijäpalvely Oy / Jyri Levasma p. 040 731 0275
- Kiinteistönhuolto
- Huoltoyhtiö
- Asuinhuoneistoja
- 6
- Taloyhtiössä on
- Kaapeli-TV, tietoliikenneyhteys, mahdollisuus autopaikkaan
Rakennuksen tiedot
- Rakennusmateriaali
- Puu
- Kattotyyppi
- Harja
- Kattomateriaali
- Muu
- Lämmitysjärjestelmä
- Maalämpö
- Lämmönjakojärjestelmä
- Vesikiertoinen patterilämmitys
- Ilmanvaihtojärjestelmä
- Koneellinen.
- Energialuokka
- D 2018
- Lisätietoa energiatodistuksesta
- Viimeinen voimassaolopäivä 14.03.2035
Tehdyt korjaukset
2026 Krookilan huolto Oy lisaa yhtiön maalampöön 2 kaivoa lisaa ja uusii lämmönjakokeskuksen. Samalla lisätään toinen rakennus lämmönjakokeskukseen, jotta kaikki maalämmön laitteet mahtuvat tiloihin. 2023 as 1-3 kattojen puhdistus ja tarkastus 2020 as 4-6 katot puhdistettu 2020 as 3 kylpyhuone saneeraus 2018 Piha-alueiden tasausta ja pihakaivojen korjausta 2017 Asuntojen 1-3 kattojen puhdistus 2017 Lisävaraajan asennus lämpimän käyttöveden kapasiteetin lisäämiseksi 2017 Lämminkiertovesipumpun uusiminen 2015 IV-kanaviston puhdistus ja perussäätö 2014 Ikkunoiden ulkopuitteiden huoltomaalaus 2012 Patteriventtiilien uusiminen ja tasapainotus 2011-2010 Lämmitysjärjestelmän uusiminen 2006 Valokatteiden uusiminen/hankinta terasseille 2004 Etelänpuoleisen julkisivulaudoituksen uusinta ja maalaus 2004 Huoneistokohtaisten varastojen ulkoverhouksen uusiminen ja maalaus 2004 Sähköpääkeskuksen oven uusiminen 2004 Otsalautojen uusiminen ja maalaus. Asunnon remontit: Asunnossa on keittiöremontti tehty v. 2014. Pesuhuone ja wc on remontoitu 2001-2002 ja sauna on kunnostettu v. 2017, olohuone ja kaksi makuuhuonetta maalattu 2019
Suunnitellut korjaukset
Yhtiöllä on päätös kahden puun kaatamiseksi. Yhtiö valmistelee ikkunoiden uusimista. Tarkoitus toteutttaa 2026.
Tontti ja kaavoitus
- Tontin pinta-ala
- 2 840 m2
- Omistus
- Oma
- Kaavoitus
- Asemakaava. Raision kaupunki
Asuntolaina –
Avain unelmiesi kotiin
Tutustu OP:n asuntolainaanHanki kotisi
kokoinen vakuutus
Tutustu Pohjola KotivakuutukseenPohja

Kuvat






































Sijainti
Kohdetta välittää
Raisio OP Koti Varsinais-Suomi Oy LKV Torikuja 1, RAISIO
010 2569 118 Katso puheluhinnat
opkoti.varsinais-suomi@op.fi
Huomaathan, että OP Kodin kohdeilmoituksessa ei ole kaikkia tietoja kohteesta.
Varmista tiedot kohteen virallisesta myyntiesitteestä.