Voudintie 1, Limingantulli, Oulu
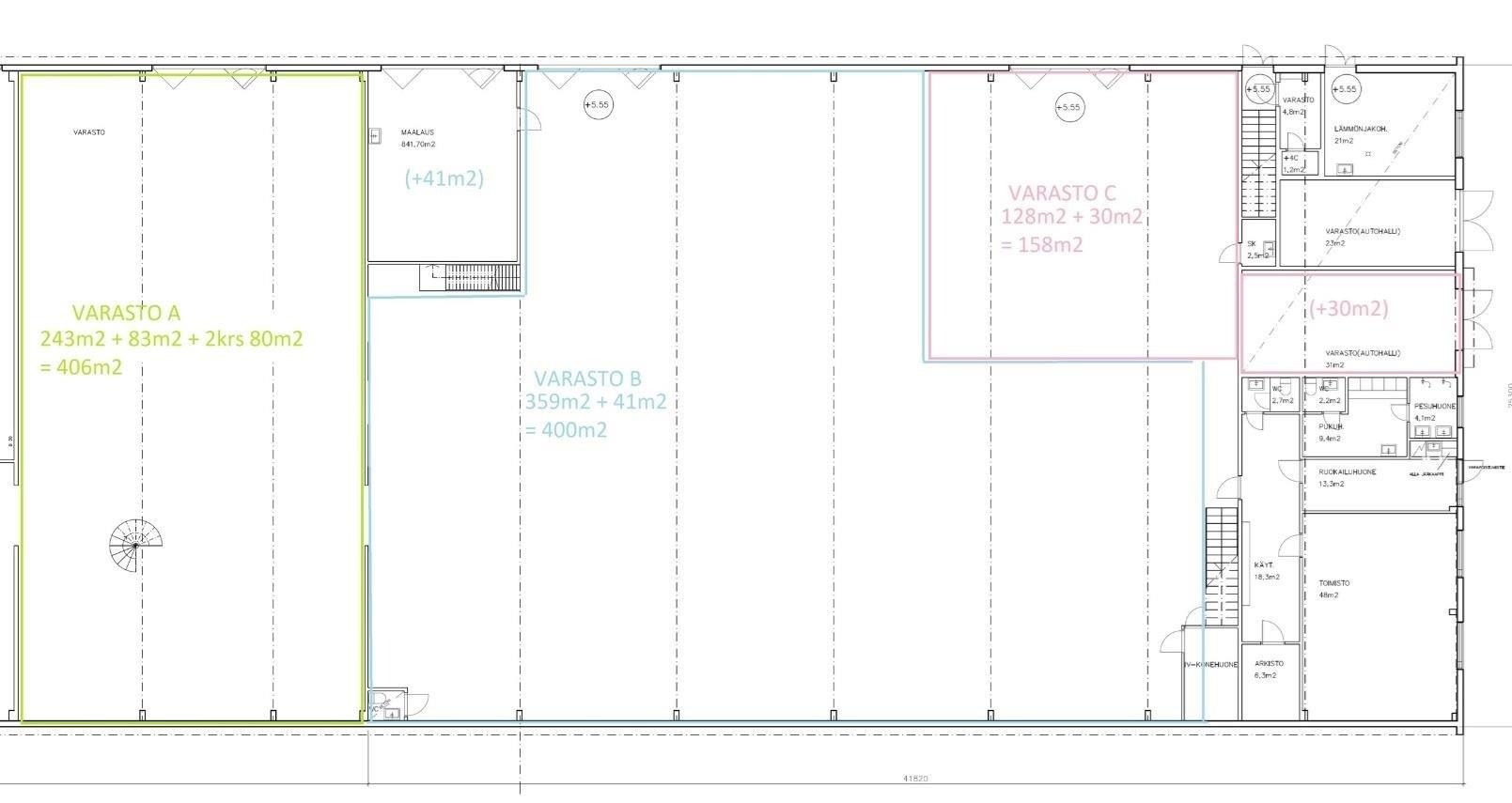
Limingantullissa, Voudintie 1, vuokrattavana eri kokoisia kokonaisuuksia aina yksittäisistä autotalleista isompiin varastoihin ja toimistoihin (30m2 - 1175m2). Varastoja on mahdollista yhdistää.
Kohteessa vuorkattavana: Toimisto (369m2), jossa edustustilat ja sauna.
Varasto A (406m2). Tässä tilassa on toisessa kerroksessa taukotilat ja toimistohuoneet 2kpl.
Varasto B (359m2 + 41m2 autotalli). Tässä tilassa on 1kpl wc ja siltanosturi.
Varasto C (128m2 + 30m2). Tilassa 1kpl wc ja 30m2 autotalli/varastotila.
Vuokrataso 9€/m2 sisältää lämmityksen, kiinteistöhuollon sekä veden. Käyttösähkö 0.30€/m2/kk. Hintoihin lisätään alv. Pinta-alat on suuntaa-antavat.
Ota yhteyttä niin katsotaan teille sopiva kokonaisuus! Julia Hoikkala 050 411 8747 tai julia.hoikkala@op.fi.
Ota yhteyttä välittäjään
Lähettämällä viestin hyväksyt palvelun ehdot.
Kohteen tiedot
Perustiedot
- Kohdenumero
- 608699
- Kohdetyyppi
- Varastotila
- Osoite
- Voudintie 1, 90400 OULU
- Huoneet
- Varastotila
- Kokonaispinta-ala
- 128 m2
- Vapautuminen
- Heti
Hinta ja ehdot
Hinta
- Vuokra
- Kysy välittäjältä
Muut maksut
Vuokra 1150€ + alv25.5% sisältää lämmityksen, kiinteistöhuollon sekä veden. Käyttösähkö 0,30€ /m2/kk.
Osuuspankin lainalaskuri
Lainasi kuukausierä olisi 63 € kuukaudessa
Taloyhtiö
Rakennuksen tiedot
- Energialuokka
- Ei energiatodistusta
- Lisätietoa energiatodistuksesta
- Kohteelle ei lain mukaan tarvitse hankkia energiatodistusta
Pohja

Kuvat






Sijainti
Kohdetta välittää
Oulu OP Koti Pohjoinen Oy LKV Lekatie 6, OULU
Huomaathan, että OP Kodin kohdeilmoituksessa ei ole kaikkia tietoja kohteesta.
Varmista tiedot kohteen virallisesta myyntiesitteestä.