Halkiantie 20, Pietilä, Järvenpää
Svengin yritysalueella tarjoalla uusia ja tasokkaita tallitiloja energiatehokkaasta rakennuksesta. Rakennuksessa on juuri tehty käyttöönottotarkastus, joten tilat ovat heti valmiita käytettäväksi !
Arvioitu hoitovastike vain 1,5 € /m² !
Siijainti on erinomainen, vain alle kilometrin päässä Lahden moottoritien rampista, ja yhteydet pääkaupunkiseudulle sekä Lahden suuntaan ovat sujuvat.
Tarjolla yhden kahde tai kolmen tallin kokonaisuus !
Sijoittajalle tilat ovat vuorattavuudeltaan hyviä ja vuokralaiskysyntää on jo ollut !
Rakennus on korkeatasoisesti varusteltu. Siinä on täysi betonirunko, talleissa 6 metriä huonekorkeutta. Sähköiset nosto-ovet kooltaan 4x5 m. Energiatehokas maalämpö ja aurinkosähkö. Tiloissa vesikiertoinen lattialämmitys, sekä vesipiste ja wc jokaisessa hallissa. Jokaisessa hallissa myös oma veden- ja sähkönmittaus.
Tontti on aidataan, asfaltoidaan ja rakennus on varustettu kameravalvonnalla.
Lisätietoja ja esittelyt: Mika Nyman 0400347758 mika.nyman@op.fi
Ota yhteyttä välittäjään
Lähettämällä viestin hyväksyt palvelun ehdot.
Kohteen tiedot
Perustiedot
- Kohdenumero
- 607557
- Kohdetyyppi
- Tuotantotila
- Osoite
- Halkiantie 20, 04410 JÄRVENPÄÄ
- Huoneet
- Teollisuusvarasto rakennus
- Kokonaispinta-ala
- 313,5 m2
- Vapautuminen
- Heti
Hintatiedot
Hinta
- Velaton hinta
- 501 600,00 €
- Myyntihinta
- 501 600,00 €
- Lainaosuus
- 0,00 €
Osuuspankin lainalaskuri
Lainasi kuukausierä olisi 2 115 € kuukaudessa
Taloyhtiö
Rakennuksen tiedot
- Energialuokka
- B 2018
- Lisätietoa energiatodistuksesta
- Energiatodistuksen voimassaolo 10.10.2034 asti.
Lisätiedot
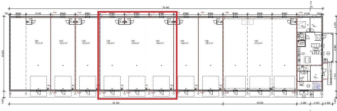
Kaupankohteena Kiinteistö Oy Halkiantie 20. Kolmen tallin kokonaisuus, Talli 4, 5, ja 6 yht. 313,5 m² (yksittäinen talli 104,5 m²) Talleissa nosto-ovi 4 x 5m. Vapaakorkeus > 6 m. Jokaisessa tallissa vesi- ja viemäri, sekä sähkö omalla mittauksella. Öljyn- ja hiekan erotuskaivo. Halleissa poistoilma puhaltimet ja varaus koneelliselle ilmanvaihdolle. Yleistietoja yhtiöstä Vuokratontti 3871 m². Vuokranantaja Järvenpään kaupunki. Vuokrasopimus voimassa 31.7.2072. Vuokraoikeuteen ei kohdistu rasitteita eikä kiinnityksiä ! Teollisuus- ja pienteollisuustalot rakennus. Loppukatselmus tehdään keväällä, kun pihat on asfaltoitu. Kantava rakennen betoni. Julksivussa maali ja osin peltiverhous. Uretaanieriste, yläpohjassa puhallusvilla. Kuitubetonilattiat, MasterTop- pinnoite ja Fescon siroite pinnoite. Harjakatto, peltikate Rakennuksen huoneistoala 1404,5 m². Kerrosala US250 1499 m². Rakennuksessa 11 erillistä osakeryhmää, jotka ovat halli/talli tiloja, sekä toimisto ja asunto. Maalämpö ja aurinkosähkö. Kiinteistöautomaation etähallinta. Tiloissa vesikieroinen lattialämmitys. Rakennuksessa kameravalvonta. Tontti aidataan ja varustetaan sähköisellä portilla. Pihat asfaltoidaan Asemakaava, Svengin yritysalue KTY-5 e=0,50 II Toimitilarakennusten korttelialue. Tarkemmat kaavamääräyksen asemakaavaotteella.
Pohja

Kuvat
















Sijainti
Kohdetta välittää
Helsinki OP Koti Uusimaa Oy LKV Arkadiankatu 23, HELSINKI
0400 347 758 Katso puheluhinnat
mika.nyman@op.fi
Huomaathan, että OP Kodin kohdeilmoituksessa ei ole kaikkia tietoja kohteesta.
Varmista tiedot kohteen virallisesta myyntiesitteestä.