Kelatie 9, Ruskonselkä, Oulu
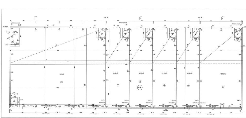
Uutta hallitilaa tarjolla hyvällä sijainnilla Ruskonselän alueella. Hallitilan koko 93,5 m2, korkeus noin 5,8 metriä, hallioven korkeus noin 5,5 metriä, hallin leveys noin 4,5 metriä ja pituus noin 20,8 metriä.
Edullinen kaukolämpö ja vesikiertolattialämmityksellä. Halleilla omat sähkö- ja vesimittarit. Koneellinen poisto. Edullinen vastike 2,50 €/m2.
Samasta kokonaisuudesta tarjolla myös isompaa hallitilaa mm. 169 m2.
Halleihin mahdollisuus tehdä tarvittaessa parvitila ja kylpyhuone, oma erillinen wc on kaikissa halleissa.
Ota rohkeasti yhteyttä ja tehdään hyvät kaupat !
Ota yhteyttä välittäjään
Lähettämällä viestin hyväksyt palvelun ehdot.
Kohteen tiedot
Perustiedot
- Kohdenumero
- 607478
- Kohdetyyppi
- Muu toimitila
- Osoite
- Kelatie 9, 90630 OULU
- Huoneluku
- 1
- Huoneet
- Hallitila ja erillinen wc
- Kokonaispinta-ala
- 93,5 m2
- Vapautuminen
- Heti
Hinta ja ehdot
Hinta
- Vuokra
- 841,50 €/kk
- Velaton hinta
- 112 320,00 €
- Myyntihinta
- 112 320,00 €
- Lainaosuus
- 0,00 €
Muut maksut
Sähkö ja vesi kulutuksen mukaan. Hallitiloilla on omat sähkö- ja vesimittarit.
Osuuspankin lainalaskuri
Lainasi kuukausierä olisi 474 € kuukaudessa
Taloyhtiö
Rakennuksen tiedot
- Energialuokka
- Ei energiatodistusta
- Lisätietoa energiatodistuksesta
- Kohteelle ei lain mukaan tarvitse hankkia energiatodistusta
Tehdyt korjaukset
Kohde on uusi ja valmistuu marraskuussa 2025.
Lisätiedot
Uutta hallitilaa tarjolla hyvällä sijainnilla Ruskonselän alueella. Hallitilan koko 93,5 m2, korkeus noin 5,8 metriä, hallioven korkeus noin 5,5 metriä, hallin leveys noin 4,5 metriä ja pituus noin 20,8 metriä. Edullinen kaukolämpö ja vesikiertolattialämmityksellä. Halleilla omat sähkö- ja vesimittarit. Koneellinen poisto. Edullinen vastike 2,50 €/m2. Samasta kokonaisuudesta tarjolla myös isompaa hallitilaa mm. 169 m2. Halleihin mahdollisuus tehdä tarvittaessa parvitila ja kylpyhuone, oma erillinen wc on kaikissa halleissa. Ota rohkeasti yhteyttä ja tehdään hyvät kaupat ! Kohde on rakennettu Oulun kaupungin vuokratontille, tontin pinta-ala on 3605 m2, voimassaoloaika 31.12.2059 ja tontin vuosivuokra 3783,09 €/vuosi (tontivuokra sisältyy hoitovastikkeeseen). Hoitovastike 233, 75 €/kk (2,50 €/kk), sisältää lämmityksen, kiinteistövakuutuksen, tontinvuokran, kiinteistöveron ja mahdolliset yhtiön omat sähkökulut. Halliosissa omat sähkö- ja vesimittarit.
Pohja

Kuvat










Sijainti
Kohdetta välittää
Oulu OP Koti Pohjoinen Oy LKV Lekatie 6, OULU
010 253 5400 Katso puheluhinnat
opkoti.oulu@op.fi
Huomaathan, että OP Kodin kohdeilmoituksessa ei ole kaikkia tietoja kohteesta.
Varmista tiedot kohteen virallisesta myyntiesitteestä.