Karjalahdenkatu 22, Karjalahti, Kemi
Kemin Karjalahden alueella sijaitseva myymälä-, liike- ja toimistokiinteistö, joka soveltuu monipuoliseen käyttöön. Rakennus on valmistunut v. 1972 ja peruskorjattu v. 2000. Kyseessä on hallityyppinen rakennus, jonka ensimmäinen kerros on myymälätilaa ja toisessa toimisto- ja sos.tilat. Rakennus on betonirakenteinen ja se on liitetty kaukolämpöön.
Sovi aika tarkemmalle tutustumiselle. Julia Hoikkala 050 411 8747 tai julia.hoikkala@op.fi.
Kohdetta välittää:
Ota yhteyttä välittäjään
Lähettämällä viestin hyväksyt palvelun ehdot.
Kohteen tiedot
Perustiedot
- Kohdenumero
- 606283
- Kohdetyyppi
- Liiketila
- Osoite
- Karjalahdenkatu 22, 94600 KEMI
- Huoneet
- Liiketila, varastotilaa, toimistotilaa, sos.tilat
- Kokonaispinta-ala
- 1 318 m2
- Vapautuminen
- Heti
Hinta ja ehdot
- Vuokra
- 6 590,00 €/kk
- Muut kulut
- VUOKRAUS - pääomavuokra 5,00 / m2 (vuokranantaja maksaa vakuutuksen, kiinteistöveron ja korjaukset) - kokonaisvuokra 7,20 / m2 (vuokranantaja maksaa edellisten lisäksi lämmityksen ja normaalin käyttöveden) - mikäli vuokrataan pienempi tila, tai tiloihin tehdään muutostöistä vuokranantajan kustannuksella, neuvotellaan vuokra / m2 erikseen. MYYNTI - kiinteistön osakekannan velaton hinta 680.000 euroa. Kysy lisätiedot tarvittaessa.
VUOKRAUS - pääomavuokra 5,00 / m2 (vuokranantaja maksaa vakuutuksen, kiinteistöveron ja korjaukset) - kokonaisvuokra 7,20 / m2 (vuokranantaja maksaa edellisten lisäksi lämmityksen ja normaalin käyttöveden) - mikäli vuokrataan pienempi tila, tai tiloihin tehdään muutostöistä vuokranantajan kustannuksella, neuvotellaan vuokra / m2 erikseen. MYYNTI - kiinteistön osakekannan velaton hinta 680.000 euroa. Kysy lisätiedot tarvittaessa.
Osuuspankin lainalaskuri
Lainasi kuukausierä olisi 63 € kuukaudessa
Rakennuksen tiedot
- Energialuokka
- Ei energiatodistusta
- Lisätietoa energiatodistuksesta
- Kohteella ei ole lain edellyttämää energiatodistusta ja sen vuoksi energialuokka ei ole tiedossa
Tontti ja kaavoitus
- Tontin pinta-ala
- 5 105 m2
- Omistus
- Oma
- Kaavoitus
- Asemakaava
Lisätiedot
Kemin Karjalahden alueella sijaitseva myymälä-, liike- ja toimistokiinteistö, joka soveltuu monipuoliseen käyttöön. Rakennus on valmistunut v. 1972 ja peruskorjattu v. 2000. Kyseessä on hallityyppinen rakennus, jonka ensimmäinen kerros on myymälätilaa ja toisessa toimisto- ja sos.tilat. Rakennus on betonirakenteinen ja se on liitetty kaukolämpöön. VUOKRAUS - pääomavuokra 5,00 / m2 (vuokranantaja maksaa vakuutuksen, kiinteistöveron ja korjaukset) - kokonaisvuokra 7,20 / m2 (vuokranantaja maksaa edellisten lisäksi lämmityksen ja normaalin käyttöveden) - mikäli vuokrataan pienempi tila, tai tiloihin tehdään muutostöistä vuokranantajan kustannuksella, neuvotellaan vuokra / m2 erikseen. MYYNTI - kiinteistön osakekannan velaton hinta 680.000 euroa. Kysy lisätiedot tarvittaessa. Sovi aika tarkemmalle tutustumiselle.
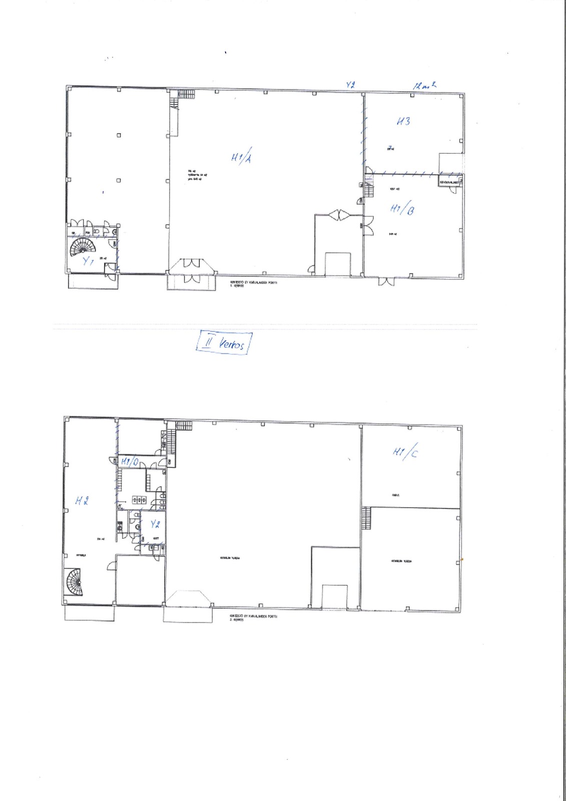
Pohja

Kuvat










Sijainti
Kohdetta välittää
Oulu OP Koti Pohjoinen Oy LKV
Poratie 4, OULU
Huomaathan, että OP Kodin kohdeilmoituksessa ei ole kaikkia tietoja kohteesta.
Varmista tiedot kohteen virallisesta myyntiesitteestä.