Kaskenkatu 3 B, Viksberg, Forssa
Kaskenkadun puistomaisemista löytyy viihtyisä ja rauhallinen rivitalokolmio, joka tarjoaa toimivan arjen ja mukavat puitteet vapaa-aikaan.
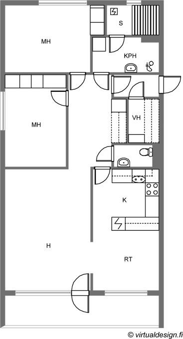
Huoneiston reilu 80 neliötä on jaettu selkeään ja käytännölliseen pohjaratkaisuun. Keittiö on suunniteltu sujuvaan ruoanlaittoon ja erilliseen ruokailutilaan sopii isompikin pöytäryhmä. Olohuone on avara ja valoisa, ja sen yhteydestä on käynti omalle parvekkeelle. Parvekkeelta avautuu kesäisin kauniin vehreä näkymä, joka luo luonnonläheisen tunnelman. Asunnossa on kaksi makuuhuonetta, joista kumpikin sopii erinomaisesti niin perheen käyttöön, työhuoneeksi kuin vierashuoneeksi. Reilun kokoinen vaatehuone, jossa on runsaasti säilytystilaa. Oman saunan löylyt kruunaavat asumismukavuuden ja tarjoavat rentoutumishetkiä kiireisen päivän jälkeen.
Klikkaa itsesi sisään virtuaaliesittelyyn ja astu peremmälle.
Tervetuloa tutustumaan Tero Rämö, 050 364 5126, tero.ramo@op.fi Teija Vahos, 050 551 8890, teija.vahos@op.fi Eetu Moberg, 050 917 5706, eetu.moberg@op.fi Hannu Pehkonen, 0500 611 424, hannu.pehkonen@op.fi
Onko oma asuntosi vielä myymättä? Ota yhteyttä niin laitetaan sen myynti alulle.
Ota yhteyttä välittäjään
Lähettämällä viestin hyväksyt palvelun ehdot.
Kohteen tiedot
Perustiedot
- Kohdenumero
- 605977
- Kohdetyyppi
- Luhtitalo
- Osoite
- Kaskenkatu 3 B, 30300 FORSSA
- Omistusmuoto
- Omistus
- Huoneluku
- 3
- Huoneet
- 3h, k, s
- Asuinpinta-ala
- 81 m2
- Kokonaispinta-ala
- 81 m2
- Käyttöönottovuosi
- 1974
- Kerros
- 2/2
- Hissi
- Ei
- Sauna
- Kyllä
- Parveke
- On, lasitettu
- Vapautuminen
- Sopimuksen mukaan
Hintatiedot
Hinta
- Velaton hinta
- 53 000,00 €
- Myyntihinta
- 53 000,00 €
- Lainaosuus
- 0,00 €
- Neliöhinta
- 654,32 €/m²
Vastikkeet
- Hoitovastike
- 287,55 €/kk
- Yhtiövastike yhteensä
- 287,55 €/kk
Muut maksut
- Vesimaksu
- 17,25 €/kk/henkilö
Vesimaksu 17,25 €/hlö/kk. Asukas tekee oman sähkösopimuksen.
Osuuspankin lainalaskuri
Lainasi kuukausierä olisi 223 € kuukaudessa
Varustus
- Keittiö
- Jääkaappipakastin, sähköliesi, astianpesukone, kaapistot, kiinteät valaisimet.
- Pesutilat
- Sauna, sähkökiuas, kylpyhuone, erillinen wc, suihku, peilikaappi, allaskaappi, pesukoneliitäntä, kiinteät valaisimet.
- Säilytystilat
- Vaatehuone, varastokomero
Materiaalit
Keittiö: maalatut seinät, laminaatti. Olohuone: tapetti, laminaatti. Makuuhuone 1: tapetti, laminaatti. Makuuhuone 2: tapetti, laminaatti. Sauna: paneeli, laatta. Kylpyhuone: laatta, laatta.
Taloyhtiö
- Taloyhtiön nimi
- Asunto Oy Forssan Kaskenkatu 1-5
- Isännöitsijä
- Asunto Oy Forssan Kaskenkatu 1-5. SP-Isännöintipalvelut Oy, Mari Moisander
- Kiinteistönhuolto
- Huoltoyhtiö
- Asuinhuoneistoja
- 32
- Autopaikat
- Autotalleja tai hallipaikkoja 30 kpl
- Taloyhtiössä on
- Talopesula, kuivaushuone, urheiluvälinevarasto, askarteluhuone, väestösuoja, kaapeli-TV, lounea laajakaista 100M/100M
Rakennuksen tiedot
- Rakennusmateriaali
- Tiili
- Kattotyyppi
- Harja
- Kattomateriaali
- Pelti
- Lämmitysjärjestelmä
- Kaukolämpö
- Lämmönjakojärjestelmä
- Vesikiertoinen patterilämmitys
- Energialuokka
- C 2018
Tehdyt korjaukset
1989: Harjakatto 2004: Käyttövesiputkisto ja asbestin purku 2007: Ilmanvaihtokanavien perusteellinen puhdistus ja huoneistojen ilmanvaihtoventtiilien säätö, liittyminen kaukolämpöön 2009: Parvekeremontti, talojen julkisivuremontti, patteritermostaatit ja linjasäätöventtiilit 2010: Parvekkeiden, patioiden ja talousrakennusten ulko-ovet 2011: Talo 5:n kylmiön korjaus, portaikkojen lasitusten uusiminen 2012: Asuntojen ulko-ovien uusiminen 2013: Valokuituliittymän rakentaminen, taloussiipien ja asuntojen tuulikaappien termostaattiventtiilien asennus 2014: Autotallien ovien maalaus 2015: Talo 1 viemärin kunnostus 2016: Pihalaattojen uusiminen 2017: Pihavalojen ajanmukaistaminen, autotallien sadevesirännit, talousrakennusten ovien maalaus 2018: Lämpölasien asennus, kolmen asunnon ulkopokien uusiminen ja maalaus, linjansäätöventtiilien uudelleen säätäminen 2019: Ilmanvaihtokanavien puhdistaminen ja ilmanvaihtoventtiilien säätö, piha-alueiden asvaltoinnin korjaus ja osalta uusiminen
Suunnitellut korjaukset
Kattoremontin toteutus 2025-2026. Asiasta tullaan päättämään vielä erikseen yhtiökokouksessa.
Tontti ja kaavoitus
- Tontin pinta-ala
- 8 444 m2
- Omistus
- Oma
- Kaavoitus
- Asemakaava. Forssan kaupunki
Palvelut ja liikenneyhteydet
Palvelut: Forssan keskustan palvelut 1-2 km etäisyydellä. Akvarellin koulu noin 1 km.
Lisätiedot
Taloyhtiössä kaksi yhtiökokousta vuodessa.
Asuntolaina –
Avain unelmiesi kotiin
Tutustu OP:n asuntolainaanHanki kotisi
kokoinen vakuutus
Tutustu Pohjola KotivakuutukseenPohja

Kuvat






























Sijainti
Kohdetta välittää
Forssa OP Koti Lounaismaa Oy Sibeliuksenkatu 3, FORSSA
010 256 1309 Katso puheluhinnat
opkoti.forssa@op.fi
Huomaathan, että OP Kodin kohdeilmoituksessa ei ole kaikkia tietoja kohteesta.
Varmista tiedot kohteen virallisesta myyntiesitteestä.