Kivenkatu 6 B, Myllymäki, Kankaanpää
Todella siisti ja toimiva 3. kerroksen koti Myllymäessä. Vaaleasävyiset lattiat ja harmoniset seinäpinnat. Keittiö remontoitu 2010 ja kylpyhuone 2011. Lasitettu parveke lounaaseen, eli auringon kannalta parhaaseen suuntaan.
Yhtiössä jokaisella huoneistolla sähköpistokepaikka. Käyttövesiputket uusittu 2011. Taloyhtiö pyrkinyt pitämään talosta ja tontista huolta säännöllisellä remontoinnilla.
Sovi oma näyttösi tero.vaahtio@op.fi, 0440158555.
Ota yhteyttä välittäjään
Lähettämällä viestin hyväksyt palvelun ehdot.
Kohteen tiedot
Perustiedot
- Kohdenumero
- 591873
- Kohdetyyppi
- Kerrostalo
- Osoite
- Kivenkatu 6 B, 38710 KANKAANPÄÄ
- Omistusmuoto
- Omistus
- Huoneluku
- 3
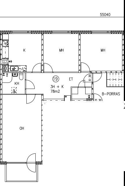
- Huoneet
- 3h, k, kph, vh, las.p
- Asuinpinta-ala
- 78 m2
- Kokonaispinta-ala
- 78 m2
- Käyttöönottovuosi
- 1977
- Yleiskunto
- Hyvä
- Kerros
- 3/4
- Hissi
- Ei
- Sauna
- Ei
- Parveke
- On, lasitettu
- Vapautuminen
- sopimuksen mukaan
Hintatiedot
Hinta
- Velaton hinta
- 54 500,00 €
- Myyntihinta
- 54 500,00 €
- Lainaosuus
- 0,00 €
- Neliöhinta
- 698,72 €/m²
Vastikkeet
- Hoitovastike
- 289,61 €/kk
- Yhtiövastike yhteensä
- 289,61 €/kk
Muut maksut
Saunamaksu 12,00 €/kk, autopaikka 6,00 €/kk.
Osuuspankin lainalaskuri
Lainasi kuukausierä olisi 230 € kuukaudessa
Varustus
- Keittiö
- Jääkaappi, erillisuuni, liesitaso keraaminen, liesituuletin, astianpesukone. Keittiö remontoitu 2010
- Pesutilat
- Kylpyhuone, suihku, peilikaappi, pesukoneliitäntä, lattialämmitys. Kylpyhuone remontoitu 2011.
- Säilytystilat
- Vaatehuone, kellari, jäähdytetty kellari
Materiaalit
Keittiö: laminaatti. Olohuone: laminaatti. Makuuhuone 1: laminaatti. Makuuhuone 2: laminaatti. Kylpyhuone: laatoitettu. Vaatehuone: laminaatti.
Taloyhtiö
- Taloyhtiön nimi
- Asunto Oy Satotuuli
- Isännöitsijä
- AR Isännöinti
- Kiinteistönhuolto
- Huoltoyhtiö
- Asuinhuoneistoja
- 34
- Taloyhtiössä on
- Sauna, kuivaushuone, jäähdytetty kellari, kellarikomerot, pyörävarasto
Rakennuksen tiedot
- Rakennusmateriaali
- Muu
- Kattotyyppi
- Harja
- Kattomateriaali
- Huopa
- Lämmitysjärjestelmä
- Kaukolämpö
- Lämmönjakojärjestelmä
- Vesikiertoinen patterilämmitys
- Ilmanvaihtojärjestelmä
- Koneellinen poisto
- Energialuokka
- Ei energiatodistusta
- Lisätietoa energiatodistuksesta
- Kohteella ei ole lain edellyttämää energiatodistusta ja sen vuoksi energialuokka ei ole tiedossa
Tehdyt korjaukset
- Vesikatteen pinnoite uusittu 1994 - Parvekkeiden vesikatot uusittu 1999. - Elementtisaumaus tehty 2003. - Taloyhtiön sauna uusittu 2003. - Taloyhtiöön on asennettu Molok syväkeräyssäiliöt 2008. - Uusi huippuimuri asennettu 2010. - Putkiremontti on tehty 2010. Käyttövesiputkisto asennettu pintaan, uusittu hanat ja WC-kalusteet. - Kaikki ikkunat ja parvekkeiden ovet tiivistetty kesällä 2011. - Ilmanvaihtokanavien puhdistus- ja säätö 2012. - Ikkunat, kuntotarkastus 2013. - Autolämmitystolppien uusiminen siten, että kaikkiin tolppiin saatiin kellokytkin ja tolppa saadaan lukkoon 2013. - Eteiskäytävien alakerran lattioiden uusiminen 2013. - Ikkunoiden huoltomaalaus ja korjaus sekä uusi alapelti 2014. - Sisäänkäyntien ovien ja ulkoseinien muuttaminen lämpölaseiksi 2015. - Porraskäytävien maalaus 2016. - Talon päätyseinän korjaus 2017. - Molok syväkeräysastian asennus biojätteelle sekä kivetys syväkeräysastioiden ympärille 2017. - Parvekkeiden maalaus 2018 - Sadevesiviemäreiden lämmityskaapelin asennus 2019 - Sadevesikourujen ja syöksyjen uusiminen 2019 - Ilmanvaihtokanavien puhdistus ja säätö, saunan korjausta 2020 - Paikoitusalueen ja piha-alueen saneeraus, salaojien tekeminen 2021 - Poistokoneen uusiminen 2021 - Kaakon puoleisen päädyn lisäeristäminen ja pinnoittaminen pellillä 2022 - Jätelajittelu uusien määräysten mukaiseksi 2024 - Palotikkaiden vaihto 01/2025. Asunnon remontit: Keittiö remontoitu 2010 Kylpyhuone 2011 Pintaremonttia tehty useampaan otteeseen Parvekkeen lattia laatoitettu
Suunnitellut korjaukset
A11 viemärivuoto, johtui lattiakaivon rikkoutumisesta. A8-asunnossa tämän johdosta katon maalausta. Nämä päätetyt remontit on jo tehty.
Asuntolaina –
Avain unelmiesi kotiin
Tutustu OP:n asuntolainaanHanki kotisi
kokoinen vakuutus
Tutustu Pohjola KotivakuutukseenPohja

Kuvat


















Sijainti
Kohdetta välittää
Pori OP Koti Länsi-Suomi Oy Mikonkatu 4, PORI
010 25 70700 Katso puheluhinnat
opkoti.lansi-suomi@op.fi
Huomaathan, että OP Kodin kohdeilmoituksessa ei ole kaikkia tietoja kohteesta.
Varmista tiedot kohteen virallisesta myyntiesitteestä.