Valtatie 21, Länsi-Tuira, Oulu
1988 valmistuneesta yhtiöstä vuokrattavana hyvät toimistotilat. Tila sijaitsee rauhallisella paikalla kiinteistön 2. kerroksessa. Kattoremontti tehty 2017 ja julkisivuremontti 2021. Siistikuntoinen ja valoisa huoneisto, jossa varusteena mm. koneellinen iv, jäähdytys, suihku, varusteltu keittiö jne. Pysäköintitilaa myös asiakkaille. 1kpl autopaikkoja vuokrattavana tilan käyttöön.
Heti vapaa vuokrattavaksi.
Esittelyt ja lisätietoa Sami Valkonen 050 310 6520 tai sami.valkonen@op.fi
Ota yhteyttä välittäjään
Lähettämällä viestin hyväksyt palvelun ehdot.
Kohteen tiedot
Perustiedot
- Kohdenumero
- 590657
- Kohdetyyppi
- Toimistotila
- Osoite
- Valtatie 21, 90500 OULU
- Huoneluku
- 2
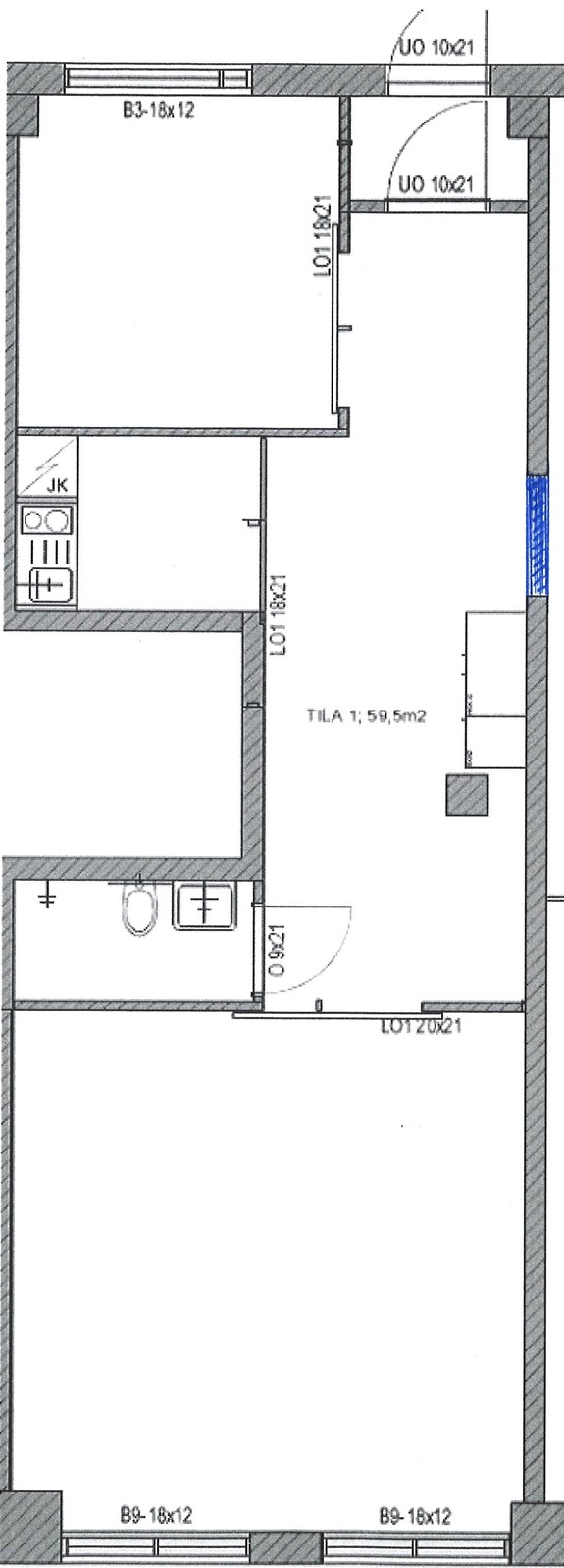
- Huoneet
- 2h, kk, wc / suihku
- Kokonaispinta-ala
- 59,5 m2
- Vapautuminen
- Heti
Hinta ja ehdot
Hinta
- Vuokra
- 590,00 €/kk
Muut maksut
Sähkö omalla sopimuksella. Vuokraan lisätään alv
Osuuspankin lainalaskuri
Lainasi kuukausierä olisi 63 € kuukaudessa
Taloyhtiö
Rakennuksen tiedot
- Energialuokka
- C 2007
- Lisätietoa energiatodistuksesta
- voimassa
Tehdyt korjaukset
Kattoremontti 2017, julkisivuremontti 2021
Pohja

Kuvat








Sijainti
Kohdetta välittää
Oulu OP Koti Pohjoinen Oy LKV Lekatie 6, OULU
Huomaathan, että OP Kodin kohdeilmoituksessa ei ole kaikkia tietoja kohteesta.
Varmista tiedot kohteen virallisesta myyntiesitteestä.