Suosmerentie 162, Suosmeri, Ulvila
Velaton myyntihinta75 000 € Myyntihinta: 75 000 €
Pinta-ala
670 m2
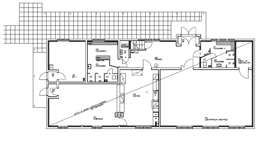
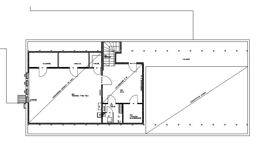
2 koulurakennustaSuosmeren vanhat koulukiinteistöt hyvien kulkuyhteyksien päässä. Kuntotutkimukset tehty, peruskorjaamalla toimivat yritys tai kerhotilat, jossa runsas pihapiiri autopaikkoineen. Heti vapaa!
Kohdetta välittää:
Ota yhteyttä välittäjään
Viesti
Etunimi *
Sukunimi *
Sukunimi *
Puhelinnumero *
Sähköposti *
Lähettämällä viestin hyväksyt palvelun ehdot.
Kohteen tiedot
Perustiedot
- Kohdenumero
- 584103
- Kohdetyyppi
- Muu toimitila
- Osoite
- Suosmerentie 162, 28450 VANHA-ULVILA
- Huoneet
- 2 koulurakennusta
- Kokonaispinta-ala
- 670 m2
- Vapautuminen
- Heti
Hintatiedot
- Muut kulut
- Lämmitetty öljyllä, arvio 7000-8000 litraa. Peruslämmön ylläpitäminen.
- Myyntihinta
- 75 000,00 €
Lämmitetty öljyllä, arvio 7000-8000 litraa. Peruslämmön ylläpitäminen.
Osuuspankin lainalaskuri
Euro
316 €/kk
Lainasi kuukausierä olisi 316 € kuukaudessa
Rakennuksen tiedot
- Energialuokka
- Ei energiatodistusta
- Lisätietoa energiatodistuksesta
- Kohteella ei ole lain edellyttämää energiatodistusta ja sen vuoksi energialuokka ei ole tiedossa
Tontti ja kaavoitus
- Tontin pinta-ala
- 8 096 m2
- Omistus
- Oma
- Kaavoitus
- Suosmeren yleiskaava. Koulurakennukset ovat sr-suojelumerkinnän alla. Rakennushistoriallisin ja/tai maisemallisin perustein suojeltava rakennusryhmä. Rakennukset kuuluvat osana Suosmeren kulttuurimaisemaan. Arvokasta rakennuskantaa ei saa ilman pakottavaa syytä purkaa. Rakennusten korjaus ja muutostyöt tulee toteuttaa siten, että säilytetään ja palautetaan rakennuksen kulttuurihistoriallisesti arvokkaita tunnuspiirteitä, joita ovat kokonaishahmo, kattomuoto, pintamateriaalit, yksityiskohdat ja ikkunoiden ruutujako. Uudisrakentaminen tulee sopeuttaa kohteen rakennushistoriallisiin ja maisemallisiin arvoihin.
Lisätiedot
Sarakon kuntotutkimusraportit saatavilla välittäjältä. Rasitustodistuksen mukaan vuokrattuna n.15 m2 tilan pinta-alasta DNA Oy. Päättyy 30.6.2034. Puhelinkeskus.
Kuvat
















Sijainti
Powered by Esri
Kohdetta välittää
Pori OP Koti Länsi-Suomi Oy
Mikonkatu 4, PORI
010 25 70700 Katso puheluhinnat
opkoti.lansi-suomi@op.fi
Huomaathan, että OP Kodin kohdeilmoituksessa ei ole kaikkia tietoja kohteesta.
Varmista tiedot kohteen virallisesta myyntiesitteestä.
Hae asuntolainaaOsuuspankista!