Hatanpään puistokuja 23 B, Hatanpää, Tampere
Löydä uusi kotisi Hatanpään Kruununvoudista!
Kun teet kaupat Kruununvoudin asunnosta nyt, maksat kaupanteossa vain 15 % huoneiston myyntihinnasta ja loput vasta kun asunto on muuttovalmis! Etu voimassa toistaiseksi!
Tampereen Hatanpään paraatipaikalle on valmistunut viime vuosien aikana viihtyisä Kartanonportin asuinkortteli, joka tarjoaa monipuolisen valikoiman laadukkaita koteja. Tämä YH Kotien rakennuttama korttelin viimeinen talo valmistuu kesällä 2026. Täällä elät Hatanpään vehreiden puistojen ja Pyhäjärven rantamaisemissa kulkevien ulkoilureittien äärellä.
Kruununvoudin monipuolisesta asuntotarjonnasta löydät helposti oman kotisi. Suurin osa asunnoista on kaksioita ja kolmioita, mutta tarjolla on myös muutamia yksiöitä ja isompia asuntoja. Asunnoissa on laadukkaat Puustellin keittiöt sekä suuret ikkunat tuomassa valoa ja avaruutta. Vesikiertoinen lattialämmitys helpottaa sisustamista ja reilun kokoinen lasitettu parveke kaikissa asunnoissa tuo kivan lisätilan oleskeluun. Osassa asunnoista on oma sauna, mutta saunoa kelpaa myös kattokerroksen upeassa talosaunassa.
Kellarikerroksesta löytyy asukkaiden käyttöön kuivaushuone sekä asuntokohtaiset irtaimistovarastot. Sisääntulokerroksessa on ulkoiluvälinevarasto, jossa on pesu- ja pyöränhuoltopiste. Lisäksi pihasta löytyy pyörävarasto. Erikseen myytävät autopaikat sijaitsevat maanalaisessa pysäköintiyhtiössä, jonne kuljet sujuvasti sisäkautta kellarikerroksesta. Tässä A-energialuokan talossa on lämmitysmuotona kaukolämpö ja katolla aurinkopaneelit tuomassa energiaa taloyhtiön käyttöön.
Keskustan kaupunkielämä, vehreät puistot kesäisine piknik-paikkoineen ja hyvät liikenneyhteydet ovat Hatanpäällä kaikki kätesi ulottuvilla. Pyöräilet reilussa viidessä minuutissa vaikkapa ostoksille Koskikeskukseen, Ratinan kauppakeskukseen ja jääkiekkopeliin tai konserttiin Nokia Arenalle. Lähivuosien suunnitelmiin kuuluu viereisen Viinikanlahden alueen uudistuminen asuinalueeksi jätevedenpuhdistamon siirtyessä Sulkavuoreen ja ratikkalinjan jatkaminen Hatanpään valtatietä pitkin aina Pirkkalaan asti.
Asunto Oy Tampereen Hatanpään Kruununvoudin arvioitu valmistuminen on 30.6.-30.8.2026. Tämän kohteen rahoittajana ja RS-pankkina toimii OP Pirkanmaa.
Kysy lisätietoja välittäjiltämme:
Isto Matalamäki p. 050 389 6804, isto.matalamaki@op.fi
Maija Hiedanniemi p.040 707 1222, maija.hiedanniemi@op.fi
Jesse Ouni p. 040 509 0296, jesse.ouni@op.fi
Ota yhteyttä välittäjään
Lähettämällä viestin hyväksyt palvelun ehdot.
Kohteen tiedot
Perustiedot
- Kohdenumero
- 561629
- Kohdetyyppi
- Kerrostalo
- Osoite
- Hatanpään puistokuja 23 B, 33900 TAMPERE
- Omistusmuoto
- Omistus
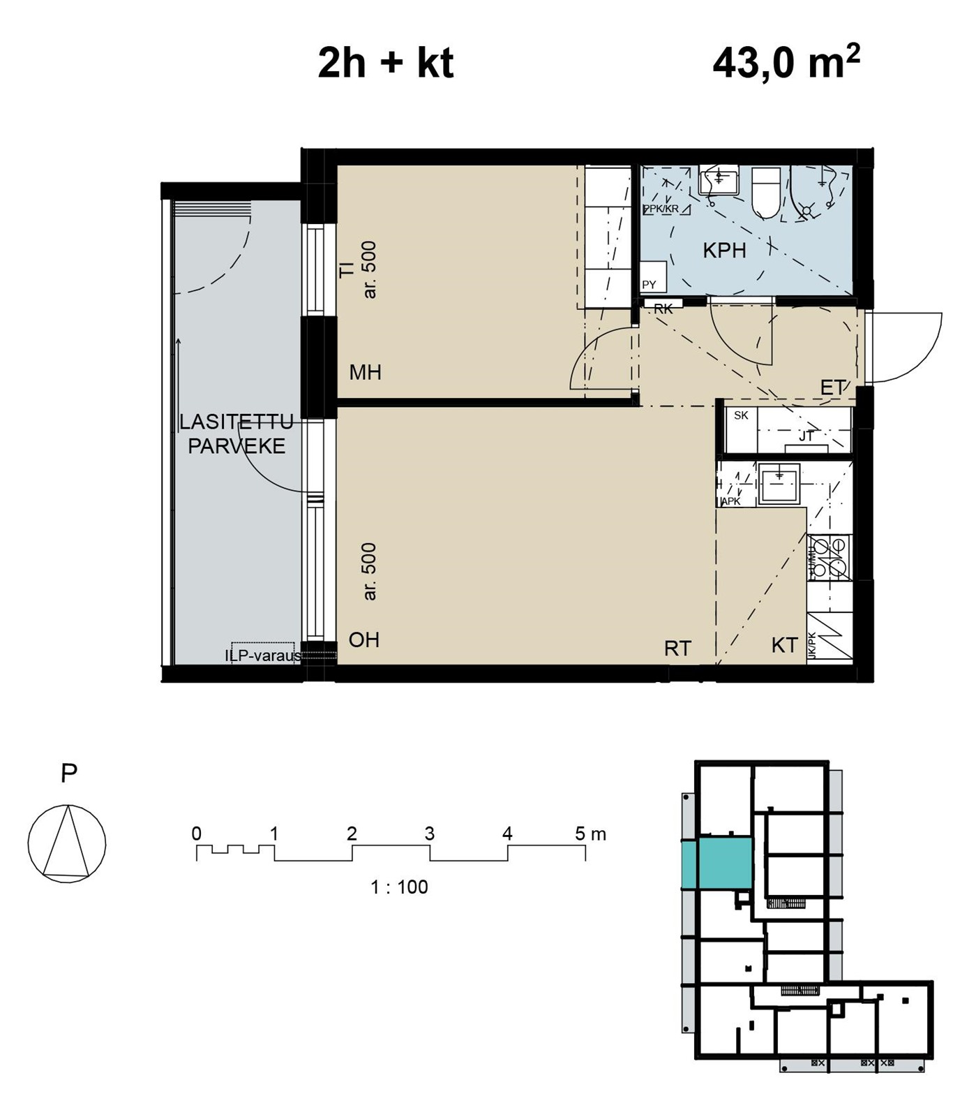
- Huoneluku
- 2
- Huoneet
- 2h, kt
- Asuinpinta-ala
- 43 m2
- Kokonaispinta-ala
- 43 m2
- Käyttöönottovuosi
- 2026
- Kerros
- 4/6
- Hissi
- Kyllä
- Sauna
- Ei
- Parveke
- On, lasitettu
- Vapautuminen
- Arvioitu valmistuminen kesällä 2026
Hintatiedot
Hinta
- Velaton hinta
- 247 700,00 €
- Myyntihinta
- 99 031,82 €
- Lainaosuus
- 148 668,18 €
- Neliöhinta
- 5 760,47 €/m²
Kohde on yhtiölainoitettu - lainaosuus 148 668,18 €
Taloyhtiölainasta on vastuussa jokainen osakas. Jos lainaa koskevia pääomavastikkeita ei saada joidenkin asuntojen osalta muutoin perittyä, maksuvelvollisuus voi langeta viime kädessä muille osakkaille.
Lisätietoa lainaosuudesta
Taloyhtiön laina on laskettu 12 kk Euriborkorolla + 0,750 % marginaalilla (yht. 3,156 %, tilanne 19.3.2025). Laina-aika valmistumisen jälkeen on 25 vuotta, josta yksi vuosi valmistumisen jälkeen on lyhennysvapaata ja lainan lyhennysaika sen jälkeen on 24 vuotta. Lainaa lyhennetään tasaerin 6 kk välein. Rahoitusvastiketta, joka sisältää lainan koron ja lyhennyksen, aletaan periä yhden vuoden kuluttua valmistumisesta. Yhtiölainan viitekoron tarkistuspäivä on vuosittain ja koron muutos vaikuttaa pääomavastikkeen suuruuteen.
Vastikkeet 01.09.2026 - 31.08.2027
- Hoitovastike
- 279,50 €/kk
- Rahoitusvastike
- 397,95 €/kk
- Yhtiövastike yhteensä
- 677,45 €/kk
Vastikkeet
- Hoitovastike
- 279,50 €/kk
- Rahoitusvastike
- 920,97 €/kk
- Yhtiövastike yhteensä
- 1 200,47 €/kk
Lisää tietoa vastikkeista
Hoitovastike on neliöperusteinen ja rahoitusvastike on osakeperusteinen.
Muut maksut
- Vesimaksu
- 20,00 €/kk/henkilö
Vesimaksu 20,00 €/hlö/kk, tietoliikenneyhteysmaksu 1,80 €/kk. Rahoitusvastikearvio lyhennysvapaan aikana on 397,95 €/kk (sis. vain koron osuuden). Rahoitusvastikearvio lyhennysvapaan jälkeen on 920,97 €/kk (sis. koron ja lyhennyksen). Vesimaksuennakko 20 €/hlö/kk, tasauslaskutus kulutuksen mukaan.
Osuuspankin lainalaskuri
Lainasi kuukausierä olisi 1 044 € kuukaudessa
Varustus
- Keittiö
- Keittiöissä on liesikupu, jääkaappipakastin tai erilliset jääkaappi ja pakastin sekä astianpesukone (leveys 450 mm tai 600 mm pohjakuvien mukaisesti). Asunnon koosta riippuen keittiössä on monitoimiuuni mikrotoiminnolla ja kahden tai neljän levyn induktioliesitaso tai vaihtoehtoisesti kalusteuuni, neljän levyn induktioliesitaso sekä kalusteeseen sijoitettava mikroaaltouuni. Työtasot ovat laminaattilevyä. Kalusteovet ja laatikostot on varustettu hidastimilla. Työtason ja yläkaappien välitilassa on valinnaisena joko välitilalevy tai laatta.
- Pesutilat
- Valtaosassa pesuhuoneita on kääntyvät lasiset suihkuseinäkkeet (yksi tai kaksi suihkuseinää pohjakuvien mukaan) sekä liitäntävaraus pyykinpesukoneelle. Pesuhuoneissa on pesuallas, allaskaappi tai -laatikosto ja valaisinpeilikaappi. Kylpyhuoneiden lattiat ja seinät laatoitetaan ja katto paneloidaan.
Materiaalit
Olohuoneen, makuuhuoneiden, keittiöiden ja eteisten lattiat ovat parkettia ja seinät maalattuja.
Taloyhtiö
- Taloyhtiön nimi
- Asunto Oy Tampereen Hatanpään Kruununvouti
- Kiinteistönhuolto
- Huoltoyhtiö
- Asuinhuoneistoja
- 65
- Taloyhtiössä on
- Kaapeli-TV, tietoliikenneyhteys
Rakennuksen tiedot
- Rakennusmateriaali
- Betoni. Perustukset tehdään teräsbetonianturoille geo- ja rakennesuunnitelmien mukaan. Alapohjat ovat pääosin maata vasten valettuja teräsbetonilaattoja ja osa alapohjasta on tuulettuva. Asuntojen välipohjat ovat paikalla valettuja teräsbetonilaattoja. Yläpohja on teräsbetonirakenteinen. Julkisivut ovat korttelin ulkokehän osalla pääosin paikalla muuratut. Sisäpihan puoli on pääosin valkobetonia, parvekkeiden taustaseinät maalattua betonia.
- Kattotyyppi
- Tasa
- Kattomateriaali
- Muu
- Lämmitysjärjestelmä
- Kaukolämpö
- Lämmönjakojärjestelmä
- Lattialämmitys vesi. Asuntojen pesuhuoneiden lattiassa on sähköllä toimiva mukavuuslämmitys, jonka sähkönkulutus mitataan asunnon sähköstä.
- Ilmanvaihtojärjestelmä
- Keskitetty tulo-poistoilmanvaihto lämmöntalteenotolla
- Energialuokka
- A 2018
- Lisätietoa energiatodistuksesta
- E-luku 75 kWhE/m2 vuosi. Energiatodistus on voimassa 17.2.2035 asti.
Tontti ja kaavoitus
- Tontin pinta-ala
- 1 940 m2
- Omistus
- Vuokrattu
- Vuokralleantaja
- YH Kodit Oy
- Tontin vuokra-aika
- Vuokrasopimus päättyy 30.9.2076
- Kaavoitus
- Asemakaava. Tampereen kaupunki
Asuntolaina –
Avain unelmiesi kotiin
Tutustu OP:n asuntolainaanHanki kotisi
kokoinen vakuutus
Tutustu Pohjola KotivakuutukseenKuvat





















Sijainti
Kohdetta välittää
Tampere OP Koti Sisä-Suomi Oy LKV Hämeenkatu 12, TAMPERE
010 254 6800 Katso puheluhinnat
opkoti.pirkanmaa@op.fi
Huomaathan, että OP Kodin kohdeilmoituksessa ei ole kaikkia tietoja kohteesta.
Varmista tiedot kohteen virallisesta myyntiesitteestä.