Kauppakatu 25, Keskusta, Äänekoski
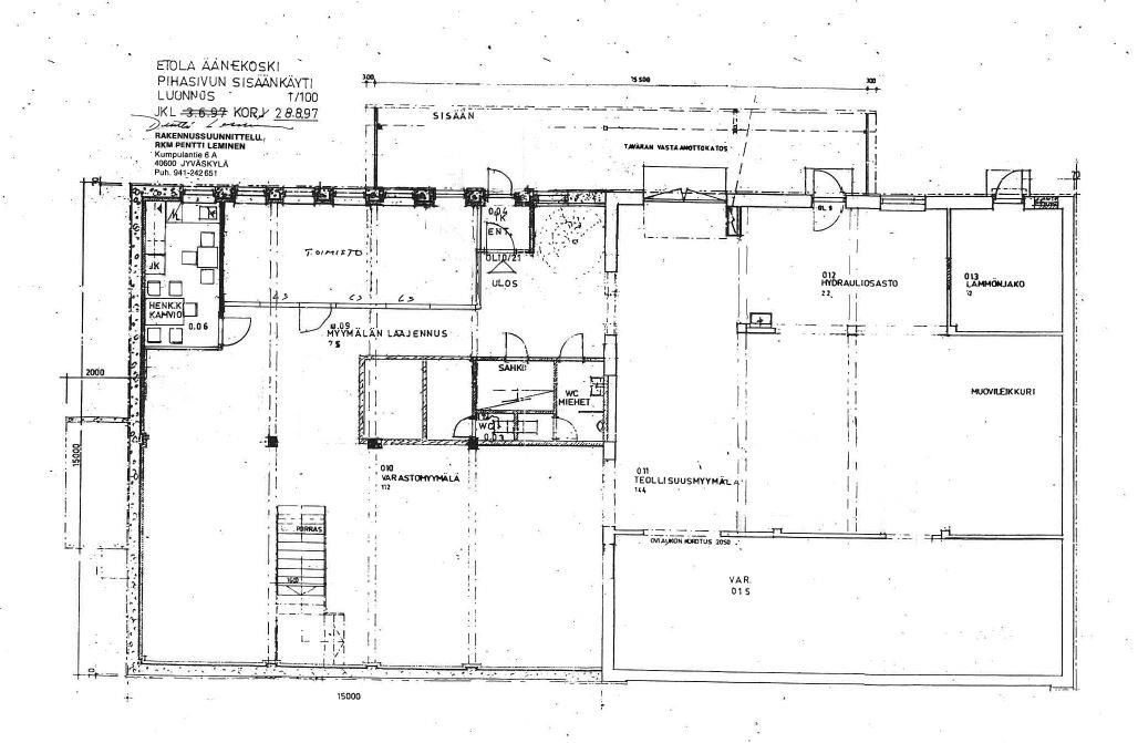
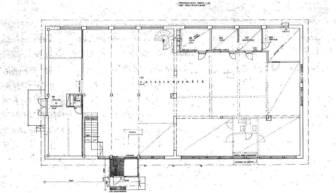
Äänekosken keskustassa tarjolla omalla 2374 m2 tontilla alunperin 1966 rakennettu ja 1976 laajennettu myymälärakennus. Tiloissa on toiminut aiemmin Etola. Tilat rinneratkaisuna kahdessa kerroksessa siten että yläkerrassa myymälätilaa sekä toimistot. Alakerrassa myymälä- ja varastotilaa, sos.tilat ja lastaus. Kaukolämpö. Tästä toimivat tilat yrityksellesi tai sitten vaihtoehtoisesti kiinteistökehittäjälle/rakennusliikkeelle n. 1450 k-m2 rakennusoikeudella tarjolla AL4 kaavassa oleva tontti. Sovi esittely
Kohdetta välittää:
Ota yhteyttä välittäjään
Lähettämällä viestin hyväksyt palvelun ehdot.
Kohteen tiedot
Perustiedot
- Kohdenumero
- 553125
- Kohdetyyppi
- Liiketila
- Osoite
- Kauppakatu 25, 44100 ÄÄNEKOSKI
- Huoneet
- myymälä-, varasto- ja tsto ja sos.tilat
- Kokonaispinta-ala
- 927 m2
- Vapautuminen
- Heti
Hintatiedot
- Myyntihinta
- 70 000,00 €
- Velaton hinta
- 70 000,00 €
- Lainaosuus
- 0,00 €
Kaukolämpö 9930 €/v, kiinteistövero 2826€/v, sähkö 2159 €/v, vesi 552 €/v, hulevesi 323€/v
Osuuspankin lainalaskuri
Lainasi kuukausierä olisi 295 € kuukaudessa
Rakennuksen tiedot
- Energialuokka
- Ei energiatodistusta
- Lisätietoa energiatodistuksesta
- Kohteelle ei lain mukaan tarvitse hankkia energiatodistusta
Tontti ja kaavoitus
- Tontin pinta-ala
- 2 374 m2
- Omistus
- Oma
- Kaavoitus
- AL4 eli asuin ja liikerakennusten korttelialue.
Kuvat














Sijainti
Kohdetta välittää
Jyväskylä OP Koti Keski-Suomi Oy LKV
Kauppakatu 22, JYVÄSKYLÄ
010 256 5950 Katso puheluhinnat
opkoti.keski-suomi@op.fi
Huomaathan, että OP Kodin kohdeilmoituksessa ei ole kaikkia tietoja kohteesta.
Varmista tiedot kohteen virallisesta myyntiesitteestä.