Astantie 13, Rohdainen, Pyhäranta
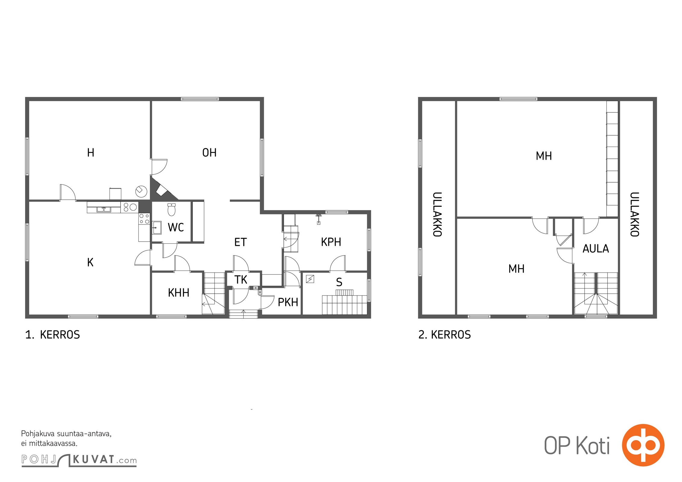
Tervetuloa tutustumaan Pyhärannan Rohdaisissa sijaitsevaan kiinteistöön, joka tarjoaa mahdollisuuden nauttia maaseudun rauhasta ja luonnon läheisyydestä. Tässä kodissa yhdistyvät klassinen 1950-luvun henki ja tilava pihapiiri, joka kutsuu viettämään rentouttavaa aikaa ulkoilmassa. Rakennus on kaksikerroksinen puutalo, jossa on rapattu ulkovuoraus. Asuinpinta-alaa on n. 119 m², ja tilat jakautuvat käytännöllisesti eri kerroksiin. Keittiöstä löytyy puuliesi, joka tuo lämpöä ja kätevyyttä ruoanlaittoon, ja ruokailu- tai TV-huoneena käytettävässä huoneessa pystyuuni antaa lämpöä viileinä iltoina ja olohuoneessa takka luo tunnelmaa. Jälkeenpäin rakennettu lisäosa sisältää saunan, pesu- ja pukuhuoneen, jotka tarjoavat rentoutumishetkiä arjen keskellä. Talossa on painovoimainen ilmanvaihto ja sähköpatterilämmitys. Rohdainen on merellinen kylä, jossa lähikauppa ja posti sijaitsevat vain 500 metrin päässä. Lähikaupunkeihin kuten Uuteenkaupunkiin, Laitilaan ja Raumalle on lyhyt ajomatka. Pyhärannan kunta tarjoaa hyvät virkistäytymisalueet, ja alueella on mahdollisuus nauttia luonnonrauhasta sekä kyläyhteisön mukavuudesta. Asuinrakennus on valmistunut vuonna 1951, ja sen materiaalit ovat osittain alkuperäisiä. Lämmitysjärjestelmä koostuu sähköstä ja puulämmityksestä, mikä mahdollistaa monipuolisen lämmönlähteiden käytön. Jätevesijärjestelmä vaatii päivitystä nykyisten säännösten mukaiseksi mikäli suorittaa kiinteistössä korjaus- ja/tai muutostöitä. Pihapiiri on vehreä omalla suurella kiinteistöllä, jossa on erillinen pihasaunarakennus, autotalli sekä tilava talousrakennus varastointiin ja harrastamiseen.
Ota yhteyttä ja varaa oma esittelyaikasi. p. 040 509 2579 tanja.nurmi@op.fi I also serve in English.
Kohdetta välittää:
Ota yhteyttä välittäjään
Lähettämällä viestin hyväksyt palvelun ehdot.
Kohteen tiedot
Perustiedot
- Kohdenumero
- 609147
- Kohdetyyppi
- Omakotitalo
- Osoite
- Astantie 13, 23950 PYHÄRANTA
- Omistusmuoto
- Omistus
- Huoneluku
- 4
- Huoneet
- 4 h, k, wc, khh, kph, sauna, pukuhuone, eteinen
- Asuinpinta-ala
- 119 m2
- Kokonaispinta-ala
- 119 m2
- Käyttöönottovuosi
- 1951
- Kerros
- Sauna
- Kyllä
- Vapautuminen
- n. 1-2 kk kaupanteosta
Hintatiedot
- Myyntihinta
- 99 000,00 €
- Velaton hinta
- 99 000,00 €
- Lainaosuus
- 0,00 €
- Neliöhinta
- 831,93 €
- Kiinteistövero
- 287,57 € / vuosi
Sähkö: taloussähkö ja lämmitys n. 280 € / kk 25000 kWh/v. Vesi ja jätevesi: kulutuksen, kunnan taksan mukaan. Puhtaanapito: jäteastian tyhjennyskerta n. 10 €. Tiemaksut: 61,00 € / vuosi. Kiinteistövero: 287,57 € / vuosi. . Kokonaissähkönkulutuskustannus n. 280 euroa/kk on viimeisen 12 kk:n keskimääräinen kustannus, sisältäen sähköenergiamaksut (5,09 c/kWh) perusmaksuineen ja sähkönsiirtomaksut perusmaksuineen sekä sähköveron. Vuotuinen sähkönkulutus on edellisellä asukkaalla 12 kk:n aikana ollut noin 25000 kWh sisältäen lämmitys- ja taloussähkön. Lämmitys on toiminut pääsääntöisesti vain sähköllä lämmittäen. Sähkönkulutus on suuresti riippuvainen muun muassa lämmityskauden pituudesta ja keskilämpötilasta, asunnon sisälämpötilasta, perheen koosta, kulutustottumuksista sekä sähkölaitteiden kunnosta, iästä ja energiatehokkuudesta.
Osuuspankin lainalaskuri
Lainasi kuukausierä olisi 417 € kuukaudessa
Varustus
- Keittiö
- Jääkaappi, sähköliesi, kaapistot. Puuliesi ei ole ollut käytössä, pakastearkku
- Pesutilat
- Sauna, puukiuas, kylpyhuone, erillinen wc, suihku, pesukoneliitäntä kylpyhuoneessa, lattialämmitys kylpyhuoneessa. Ikkunallinen sauna ja kylpyhuone. 2006 lattian laatoitus sekä asennettu lattialämmitys, saunan seiniin uudet paneelit, lauteet uusittu. Saunan pesuhuoneen vieressä pukuhuone, josta käynti ulos.
Materiaalit
- Keittiö: Lattia muovimatto, seinät lasikuitutapetti, muovilevy. Olohuone: Lattia muovimatto, seinät tapetti. Makuuhuone 1: alakerta: lattia muovimatto, seinät tapetti. Makuuhuone 2: yläkerta: lattia muovimatto, seinät tapetti. Makuuhuone 3: yläkerta: lattia laminaatti, seinät tapetti rem. 2000-luvulla. Kodinhoitohuone: Lattia muovimatto, seinät tapetti, maalattu. Sauna: Lattia laatta, seinät kaakeli ja paneli. Kylpyhuone: Lattia laatta, lattialämmitys, seinät kaakeli. Eteinen: Lattia muovimatto, seinät tapetti. Wc: Lattia muovi, seinät muovi.
Rakennuksen tiedot
- Rakennusmateriaali
- Puu. Puurunko, rapattu ulkovuoraus.
- Kattotyyppi
- Harja
- Kattomateriaali
- Pelti. Vesikatteena on hyväkuntoinen tiiliprofiilipeltikatto.
- Lämmitysjärjestelmä
- Sähkö. Puulämmitys, keittiössä puuliesi, pystyuuni, takka.
- Lämmönjakojärjestelmä
- Sähköpatterilämmitys
- Ilmanvaihtojärjestelmä
- Painovoimainen
- Energialuokka
- Ei energiatodistusta
- Lisätietoa energiatodistuksesta
- Kohteella ei ole lain edellyttämää energiatodistusta ja sen vuoksi energialuokka ei ole tiedossa
Tehdyt korjaukset
Ei tiedossa
Tontti ja kaavoitus
- Tontin pinta-ala
- 4 000 m2
- Omistus
- Oma
- Tie perille
- Kyllä
- Kaavoitus
- Rantaosayleiskaava, Rakennuslupa . www.pyharanta.fi / kaavoitus Kiinteistörekisteriotteen mukaan 1) Yleiskaava (631-171005§42) Kaavan arkistotunnus: Hyväksymis-/vahvistamispvm: 17.10.2005 Voimaantulopvm: 23.2.2006 MMLm/11042/423/2006 Pyhäranta, oikeusvaikutteinen rantayleiskaavan mukainen AT-merkintä (kyläalue) = Alueelle saa sijoittaa maatilojen talouskeskuksia ja enintään kaksiasuntoisia erillis-pientaloja sekä asumiselle tarpeellisia julkisia ja yksityisiä palveluja, liikenneväyliä ja virkistysalueita. Rakentamisen on liityttävä olemassa olevaan rakentamiseen siten, että avoimet peltoalueet säilyvät rakentamisesta vapaina. Täydennysrakentamisessa sekä korjaus- ja muutostöissä tulee kiinnittää erityistä huomiota toimenpiteiden sopeutumiseen kyläkuvaan. Rakennusten on sovelluttava muodoiltaan ja materiaaleiltaan ymp¿ristöön. Arvokkaat kyläkeskusalueet on rajattu erillisellä merkinnällä kaavaan. Kyläalueilla rakennuspaikan pinta-ala on vähintään 2000m2. Tiiviisti kyläalueen sisällä rakennuspaikan pinta-ala voi olla alle 2000m2, mikäli rakennuspaikka todetaan olevan kyläkuvan kannalta sopiva. Rakennusten julkisivuissa tulee suosia puuta. Pyhärannan kunta
- Rakennusoikeus
- 400 m2
- Lisätietoja maapohjasta
- Pyhärannan kunnan rakennusjärjestyksestä: Rakennuspaikalle saa rakentaa yhden enintään kaksi asuntoa kaksikerroksisen asuinrakennuksen. Rakennuspaikalle rakennettavan asuinrakennuksen kerrosala saa olla 10% rakennuspaikan pinta-alasta, kuitenkin enintään 450 k-m 2. Rakennuspaikalle saa lisäksi rakentaa sen käyttötarkoitukseen liittyviä talousrakennuksia. Käytetty rakennusoikeustieto perustuu Pyhärannan kunnalta saadun epävirallisen rakennus- ja huoneistorekisteriotteen tietoihin, jonka mukaisesti asuinrakennuksen kerrosala on 119 m² ja talousrakennuksen 20 m2. Kiinteistöllä olevan asuinrakennuksen asuinpinta-alaa ei ole mitattu nykyisin käytettävän huoneistoalan laskemismenetelmän mukaisesti (standardi SFS 5139) eikä asuinpinta-alaa ole sittemmin tarkistusmitattu. Tämän vuoksi asuinrakennuksen ilmoitettu asuinpinta-ala saattaa poiketa merkittävästi todellisesta huoneistoalasta.
Vesi ja viemäröinti
- Vesijohto
- Kyllä
- Käyttövesi
- Kunnan.
- Viemäri
- Kyllä
- Jätevesihuolto
- Saostuskaivo.
- Jätevesi-selvitys tehty
- Ei
- Lisätietoa kunnallistekniikasta
- Kiinteistöä ei ole liitetty jätevesiviemäriverkostoon. Kiinteistön nykyinen jätevesijärjestelmä ei ole voimassa olevien säännösten mukainen. Jätevesien käsittelyn vaatimukset kohdistuvat kiinteistöön ja kiinteistön omistaja on vastuussa niiden noudattamisesta. Kiinteistön jätevesijärjestelmä tulee saattaa voimassa olevien säännösten mukaiseksi.
Palvelut ja liikenneyhteydet
Palvelut: ruokakauppa Sale n. 500 m. Uusikaupunki n. 19 km, Laitila n. 22 km. Rauma n. 33 km, Turku n. 82 km.
Asuntolaina –
Avain unelmiesi kotiin
Tutustu OP:n asuntolainaanHanki kotisi
kokoinen vakuutus
Tutustu Pohjola KotivakuutukseenPohja

Kuvat









































Sijainti
Kohdetta välittää
Laitila OP Koti Varsinais-Suomi Oy LKV
Keskuskatu 20, LAITILA
040 5092579 Katso puheluhinnat
opkoti.varsinais-suomi@op.fi
Huomaathan, että OP Kodin kohdeilmoituksessa ei ole kaikkia tietoja kohteesta.
Varmista tiedot kohteen virallisesta myyntiesitteestä.